Large historic house with 24 acres, campsite and significant redevelopment potential..
- Grade II listed seventeenth-century stone house circa 1600
- Approximately 24 acres including campsite, lake and communal fire pit
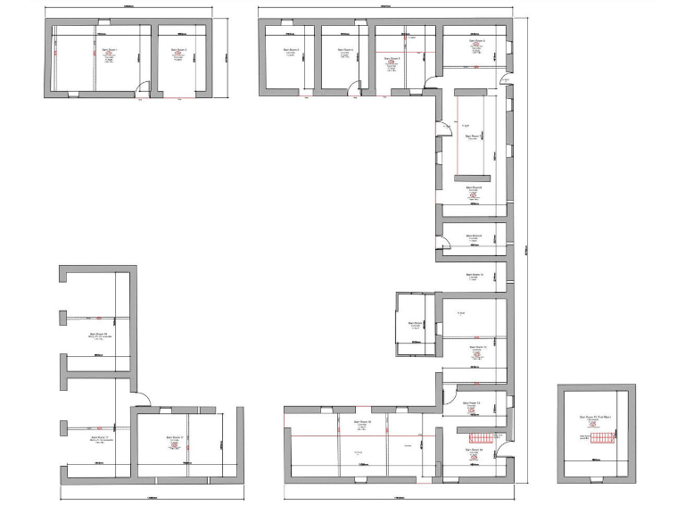
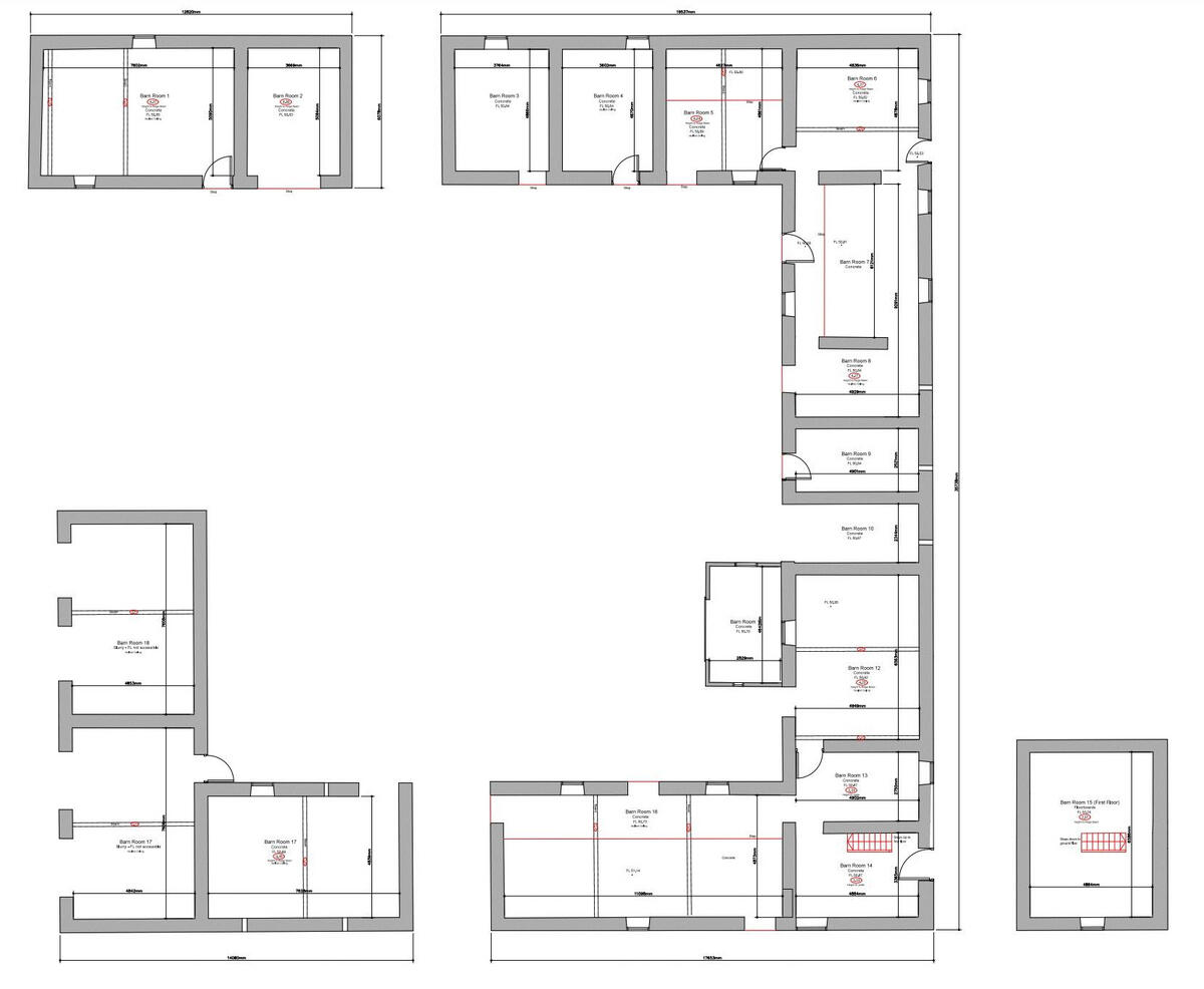
- Outbuildings and workshop; previous permission for 8 holiday cottages
- Approved plans for internal alterations to the listed main house
- Requires substantial renovation; specialist listed works likely
- EPC rating G and Council Tax Band F (expensive)
- Remote hamlet location; very deprived area may affect demand
- No flood risk; fast broadband but average mobile signal
A rare Grade II listed seventeenth-century country house with approximately 24 acres of land and an established campsite, offered freehold. The stone-built main house (circa 1600) has strong character and nine rooms across almost 1,921 sq ft, plus a range of outbuildings and a workshop — previously benefitting from permitted planning for eight self-contained holiday cottages and approved internal alteration plans for the listed house.
This is a redevelopment opportunity aimed at those able to manage listed-building constraints and renovation work. The site includes a campground area with a lake and communal fire pit, extensive fields, and multiple useful outbuildings offering scope for holiday lets, agritourism, or mixed residential/commercial use. Broadband speeds are fast and there is no flood risk, which supports year-round letting or remote working use.
Buyers should be clear-eyed about the drawbacks: the property needs significant renovation, the house’s listed status will impose restrictions and likely higher specialist costs, and the current EPC is G. Council Tax is Band F (expensive) and the area is classified as very deprived, which may affect local demand and grant availability. The setting is remote — a hamlet location with average mobile signal — so the scheme should factor in accessibility and operating costs.
For an investor or developer with experience in listed buildings and rural enterprises, Caerau offers substantial land, privacy and multiple revenue routes. For an owner-occupier prepared to restore a historic house, it provides scope to create a distinctive country residence in a striking Anglesey landscape.
3 bedroom detached house for sale in Brynsiencyn, Llanfairpwll, Sir Ynys Mon, LL61 — £975,000 • 3 bed • 2 bath • 1369 ft²
5 bedroom detached house for sale in Lon Cefn, Llannerch-y-medd, Anglesey, LL71 — £1,795,000 • 5 bed • 4 bath • 2766 ft²
6 bedroom detached house for sale in Paradwys, Bodorgan, Anglesey, LL62 — £699,950 • 6 bed • 3 bath • 2185 ft²
6 bedroom detached house for sale in Valley, Holyhead, Isle Of Anglesey, LL65 — £900,000 • 6 bed • 7 bath • 5810 ft²
4 bedroom detached house for sale in Llanddeusant, Holyhead, Isle of Anglesey, LL65 — £765,000 • 4 bed • 3 bath • 4223 ft²
4 bedroom detached house for sale in Llaneilian, Amlwch, Isle of Anglesey, LL68 — £750,000 • 4 bed • 2 bath • 2700 ft²






























































































































































































































































































