Chain-free four-bedroom house with great parking and low-upkeep garden.
No onward chain — immediate vacant possession available.
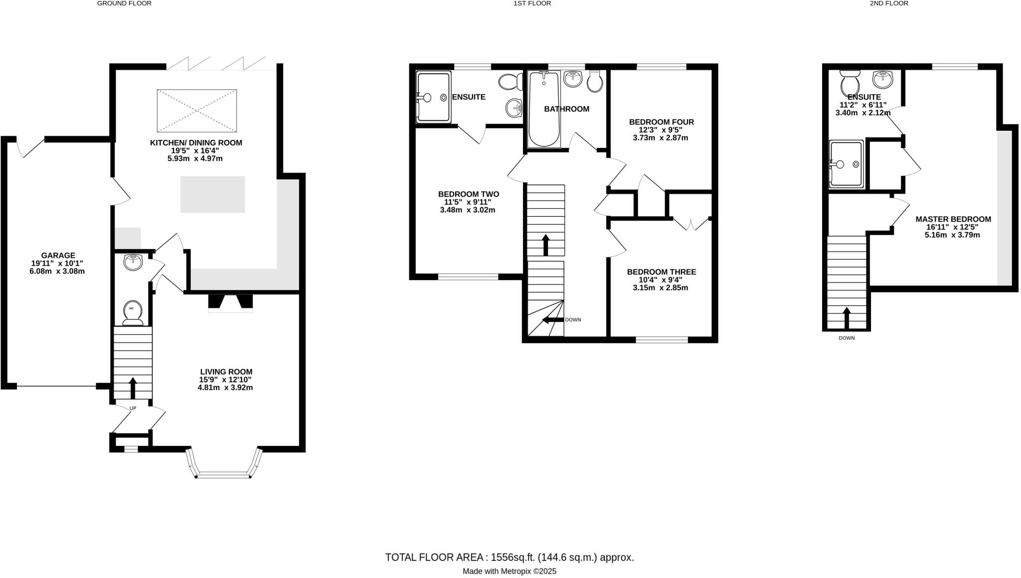
Four generous bedrooms, master bedroom with en-suite and storage.
Open-plan kitchen/diner with skylight and bi-fold doors to deck.
Large driveway for multiple vehicles plus integral garage.
Low-maintenance rear garden with extensive decking area.
Constructed 1950s; cavity walls filled, double glazing present.
Very high local crime rate — important safety consideration.
Multi-storey layout may be unsuitable for limited mobility buyers.
This four-bedroom end-of-terrace offers practical family living across three floors, presented chain-free and ready for immediate occupation. The ground floor features a bay-fronted living room and an open-plan kitchen/diner with bi-fold doors and a skylight that flood the space with natural light. The kitchen links to the integral garage and a convenient cloakroom for everyday use.
Sleeping accommodation includes three first-floor bedrooms and a second-floor master with en-suite and built-in storage, plus a family bathroom — well suited to a growing household. Externally there is a larger-than-average driveway for multiple vehicles and a low-maintenance rear garden with a substantial deck, ideal for low-upkeep outdoor time.
Practical details: the property is freehold, about 1,556 sq ft, warmed by a mains-gas boiler and double glazed. It was constructed in the 1950s with filled cavity walls and presents a modernised kitchen and neutral finishes throughout. There is no flooding risk and council tax is described as affordable.
Important considerations: the local crime level is very high for the area, which buyers should factor into their decision. The home is arranged over multiple floors and so may not suit those needing level access; some buyers may wish to update stylistic elements or inspect services given the property's age. Overall, the house suits families seeking generous space, strong parking, and low garden maintenance near well-regarded schools.
4 bedroom terraced house for sale in Priestwood Avenue, Bracknell, Berkshire, RG42 — £500,000 • 4 bed • 1 bath • 1215 ft²
4 bedroom detached house for sale in Stoney Road, Bracknell, Berkshire, RG42 — £900,000 • 4 bed • 2 bath • 1308 ft²
3 bedroom end of terrace house for sale in Hawthorn Close, Bracknell, Berkshire, RG42 — £525,000 • 3 bed • 1 bath • 1087 ft²
4 bedroom terraced house for sale in Arncliffe, Bracknell, RG12 — £375,000 • 4 bed • 1 bath • 1014 ft²
3 bedroom terraced house for sale in Kibble Green, Bracknell, Berkshire, RG12 — £375,000 • 3 bed • 1 bath • 818 ft²
4 bedroom end of terrace house for sale in Anneforde Place, Bracknell, Berkshire, RG42 — £475,000 • 4 bed • 2 bath • 845 ft²


























































