Tidy three-bed mid-terrace, ideal for first-time buyers and commuters..
Chain-free — ready for immediate sale
A tidy, mid-terrace home offered chain-free — ideal for first-time buyers wanting a straightforward move. The house is presented in good order throughout with neutral finishes, ready for immediate occupation without major works.
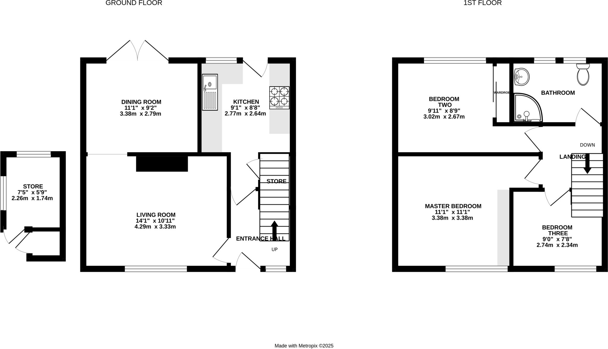
The ground floor provides a practical layout: entrance hall with storage, living room, dining area and kitchen, both opening onto a low-maintenance rear garden with two brick outbuildings for extra storage. Upstairs are three bedrooms (two good-sized doubles) and a single three-piece family bathroom — sensible accommodation within 818 sq ft.
Parking for one car on a paved driveway and side access add everyday convenience. Commuters will appreciate direct links to the M3 and M4 and proximity to Bracknell town centre amenities, leisure facilities and supermarkets. Good local schools nearby including several rated Good and one Outstanding.
Notable limitations are clear and factual: the plot is small, there is only one bathroom for three bedrooms, and the property is an average-sized mid-terrace rather than a larger detached home. Buyers seeking a larger garden, multiple bathrooms or off-street parking for more than one vehicle should note these constraints. Overall, this is a practical, well-kept starter home in a convenient Bracknell location.
3 bedroom end of terrace house for sale in Uffington Drive, Harmans Water, Bracknell, Berkshire, RG12 — £425,000 • 3 bed • 1 bath • 1045 ft²
3 bedroom terraced house for sale in Statham Court, Amen Corner, Binfield, Berkshire, RG42 — £350,000 • 3 bed • 1 bath • 656 ft²
3 bedroom terraced house for sale in Kibble Green, Bracknell, Berkshire, RG12 — £400,000 • 3 bed • 1 bath • 823 ft²
3 bedroom terraced house for sale in Chisbury Close, Bracknell, Berkshire, RG12 — £450,000 • 3 bed • 2 bath • 822 ft²
3 bedroom end of terrace house for sale in Keldholme, Bracknell, Berkshire, RG12 — £300,000 • 3 bed • 1 bath • 565 ft²
4 bedroom town house for sale in Tebbit Close, Bracknell, Berkshire, RG12 — £400,000 • 4 bed • 1 bath • 1339 ft²














































