Spacious family home near top schools and transport links.
Seven bedrooms across four floors with flexible layout
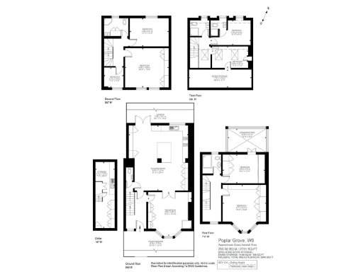
A substantial seven-bedroom Victorian terraced home arranged over four floors, combining period detail with a recent top-floor extension. High ceilings, bay windows and ornate plasterwork sit alongside a full-width modern kitchen/breakfast room and an ensuite bedroom from a 2017 addition. Practical spaces include a cellar and separate utility room.
Set on the south side of Poplar Grove in Brook Green, the house is close to excellent state and independent schools, local shops and strong transport links. A well-maintained rear garden provides outdoor space despite the property’s small plot size. Broadband is fast and mobile signal is excellent, useful for home working.
The house offers flexible layout potential for a large family or multi-generational living, with reception rooms, media space and multiple bedrooms that could include home offices. The building is freehold and has very low flood risk.
Buyers should note the terrace is an older solid-brick Victorian build (pre-1900) and walls are assumed uninsulated, so thermal upgrades and insulation may be required. Council tax is described as quite expensive. The property sits in an inner-city area with average crime and average area deprivation, but benefits from a well-served local high street and nearby amenities.
5 bedroom house for sale in Caithness Road, London W14 — £3,500,000 • 5 bed • 4 bath • 2772 ft²
5 bedroom end of terrace house for sale in Lakeside Road, London, W14 — £3,450,000 • 5 bed • 3 bath • 3121 ft²
7 bedroom terraced house for sale in Batoum Gardens, London, W6 — £2,975,000 • 7 bed • 5 bath • 3394 ft²
3 bedroom terraced house for sale in Ceylon Road, London, W14 — £1,395,000 • 3 bed • 2 bath • 1405 ft²
2 bedroom terraced house for sale in Bute Gardens, Brook Green, Hammersmith, W6 — £1,250,000 • 2 bed • 2 bath • 905 ft²
4 bedroom house for sale in Bolingbroke Road, London W14 — £2,400,000 • 4 bed • 3 bath • 2120 ft²






































































































