Spacious two-bedroom terrace with private patio and strong school catchment nearby.
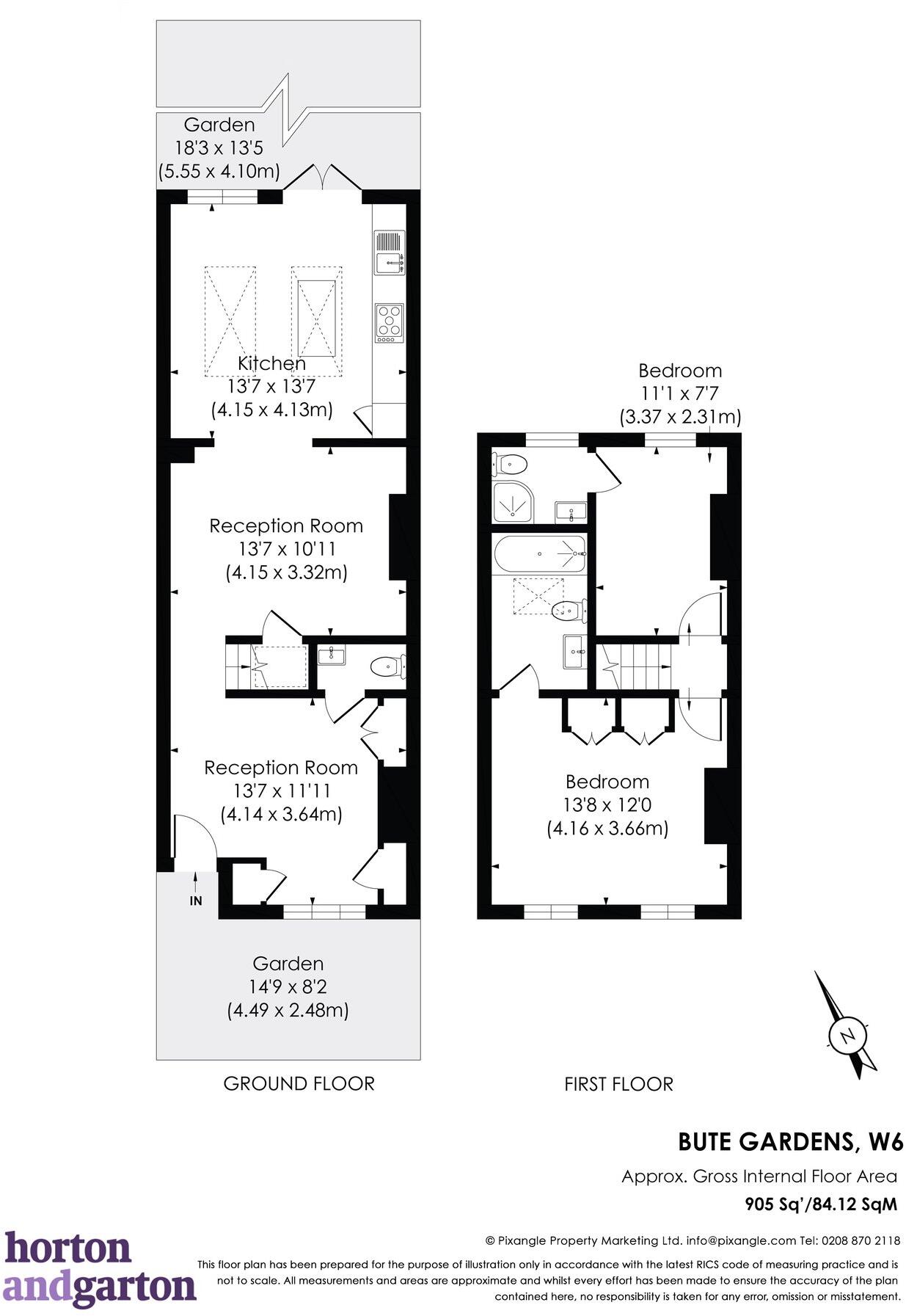
- Freehold Victorian mid-terrace, circa 905 sq ft
- Two double bedrooms, each with ensuite bathroom
- Kitchen/dining opens to private walled patio garden
- Two reception rooms; period features and modernised fireplace
- EPC rating D; solid brick walls likely uninsulated
- Council Tax Band G — quite expensive
- Very high local crime rate — consider security measures
- Excellent transport links and close to top schools
This Victorian mid-terrace offers 905 sq ft of well-proportioned living in central Brook Green, close to Hammersmith Broadway and excellent transport links. The ground floor provides two reception rooms and a kitchen/dining space that opens onto a private, walled patio garden — a rare outdoor space for the area.
Upstairs are two double bedrooms, each with an ensuite, giving flexible family or sharer accommodation. The property is freehold and retains period character such as arched windows and a modernised fireplace, while benefitting from secondary glazing and a standard ceiling height throughout.
Practical considerations include an EPC rating of D and solid brick walls assumed to have no insulation, so energy efficiency improvements would be recommended. Council Tax is Band G and local crime rates are very high; both are material factors for budgeting and security planning.
This home will suit buyers seeking central location, nearby top-rated schools and period character with scope to improve energy performance and update parts of the interior. For a family or owner-occupier wanting a spacious terrace with a private garden in Brook Green, this represents clear potential.
5 bedroom terraced house for sale in Batoum Gardens, London W6 — £2,200,000 • 5 bed • 4 bath • 2239 ft²
3 bedroom flat for sale in Westwick Gardens, West Kensington, W14 — £1,500,000 • 3 bed • 3 bath • 1700 ft²
5 bedroom end of terrace house for sale in Lakeside Road, London, W14 — £3,000,000 • 5 bed • 3 bath • 3121 ft²
3 bedroom flat for sale in Phoenix Lodge Mansions, London W6 — £1,150,000 • 3 bed • 2 bath • 1152 ft²
3 bedroom apartment for sale in Addison Gardens, W14 - Split level apartment with private terrace, W14 — £1,350,000 • 3 bed • 2 bath • 1212 ft²
2 bedroom apartment for sale in Netherwood Road, London, W14 — £500,000 • 2 bed • 1 bath • 482 ft²


















































