Large shell-condition flat with high ceilings — excellent value for hands-on investors.
- Large 71 sqm ground-floor flat with high ceilings and period features
- Sold at auction Guide Price £115,000; vacant possession
- Property in shell condition; full refurbishment required
- 106 years remaining on lease; peppercorn ground rent
- Buyers' premium £1,200 (inc VAT) plus other charges — read legal pack
- Council Tax Band A; EPC rating D
- Fast broadband, excellent mobile signal; no flood risk
- Area classified as deprived; average crime levels
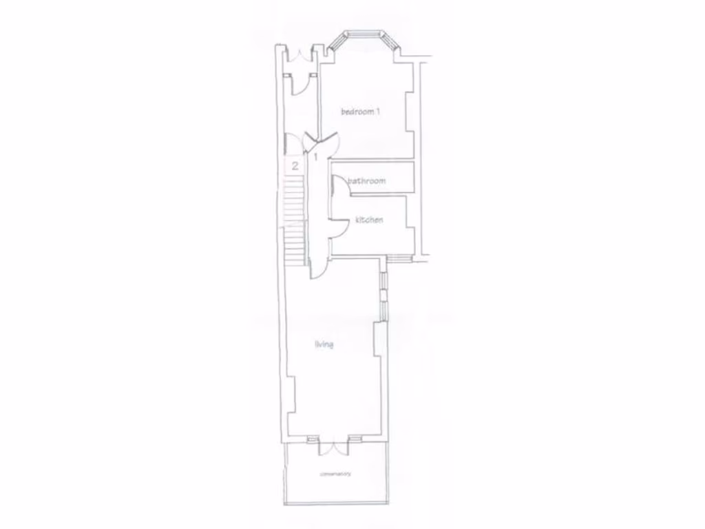
A spacious ground-floor one-bedroom flat in a period terrace, offered at auction with a guide price of £115,000. The 71 sqm (764 sq ft) layout includes a large living room, separate dining room, kitchen, bedroom and shower room — all set within an early 20th-century convert with high ceilings and period character.
The property is in shell condition: all kitchen and bathroom fittings have been removed and the flat requires full refurbishment. This creates clear scope to design a modern one-bedroom or convert back to a two-room layout, but buyers should budget for comprehensive works, including cosmetic repairs and services checks.
Practical details: the flat is leasehold with approximately 106 years remaining, peppercorn ground rent, council tax Band A and an EPC rating D. It is vacant, has fast broadband and excellent mobile signal, and carries no flood risk. Note the auction special conditions: a buyers’ premium of £1,200 (inc. VAT) and other charges apply — please read the legal pack carefully before bidding.
Location strengths include walking distance to local shops, dining, and bus routes, with Portsmouth International Port and mainline stations just over a mile away. The wider area is classed as deprived, with average crime levels; the building offers investment potential for landlords or developers prepared to refurbish for the rental or resale market.
 2 bedroom apartment for sale in First Floor Flat, 144 Laburnum Grove, Portsmouth, City of Portsmouth, PO2 0ET, PO2 — £110,000 • 2 bed • 1 bath • 615 ft²
 2 bedroom apartment for sale in First Floor Flat, 144 Laburnum Grove, Portsmouth, City of Portsmouth, PO2 0ET, PO2 — £110,000 • 2 bed • 1 bath • 615 ft² 1 bedroom apartment for sale in Flat 6, 34 Alhambra Road, Southsea, PO4 0RT, PO4 — £95,000 • 1 bed • 1 bath • 528 ft²
 1 bedroom apartment for sale in Flat 6, 34 Alhambra Road, Southsea, PO4 0RT, PO4 — £95,000 • 1 bed • 1 bath • 528 ft² 1 bedroom apartment for sale in Flat 5, 8 Nightingale Road, Southsea, PO5 3JL, PO5 — £60,000 • 1 bed • 1 bath • 409 ft²
 1 bedroom apartment for sale in Flat 5, 8 Nightingale Road, Southsea, PO5 3JL, PO5 — £60,000 • 1 bed • 1 bath • 409 ft² 2 bedroom apartment for sale in Flat 2, 139-141 Havant Road, Drayton, Portsmouth, Hampshire, PO6 2AA, PO6 — £115,000 • 2 bed • 1 bath • 327 ft²
 2 bedroom apartment for sale in Flat 2, 139-141 Havant Road, Drayton, Portsmouth, Hampshire, PO6 2AA, PO6 — £115,000 • 2 bed • 1 bath • 327 ft² 1 bedroom apartment for sale in London Road, Portsmouth, Hampshire, PO2 9AA, PO2 — £75,000 • 1 bed • 1 bath • 1241 ft²
 1 bedroom apartment for sale in London Road, Portsmouth, Hampshire, PO2 9AA, PO2 — £75,000 • 1 bed • 1 bath • 1241 ft² 2 bedroom apartment for sale in Northern Parade, Portsmouth, Hampshire, PO2 — £100,000 • 2 bed • 1 bath • 752 ft²
 2 bedroom apartment for sale in Northern Parade, Portsmouth, Hampshire, PO2 — £100,000 • 2 bed • 1 bath • 752 ft²














































