Spacious two-bedroom in need of full refurbishment, ideal for value-focused buyers.
Guide price £110,000; sold at auction on 23 Oct 2025
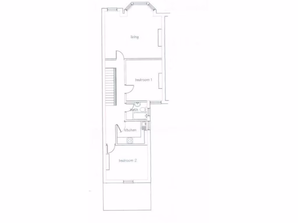
A two-bedroom first-floor flat in a period conversion, offered at auction with a guide price of £110,000. The apartment provides generous room proportions and high ceilings typical of 1930s conversions, plus a private garden — a rare outdoor asset for a flat. It’s sold in shell condition: all kitchen and bathroom fittings have been stripped out, so it’s best suited to buyers prepared to refurbish.
Practical points for bidders: the legal pack records a 125-year lease from 2007 (around 106 years remaining) and a buyer’s premium of £1,200 (inc VAT) plus other charges — please read the special conditions before bidding. The property has an EPC rating of E, cavity walls assumed without added insulation, and heating via mains gas boiler and radiators.
This is a clear renovation opportunity for investors or hands-on buyers seeking value-add in Portsmouth. It’s walking distance to local shops, transport links and Portsmouth International Port; nearby schools are mostly rated Good. The area shows signs of deprivation, so prospective owners should factor local market conditions into plans.
If you want a spacious flat with period character and garden access at a low entry price, and you can manage a full refurbishment, this lot could deliver strong uplift post-renovation. Conversely, it is not suitable for buyers seeking a move-in ready home without significant works.
1 bedroom apartment for sale in Ground Floor Flat, 144 Laburnum Grove, Portsmouth, City of Portsmouth, PO2 0ET, PO2 — £115,000 • 1 bed • 1 bath • 599 ft²
2 bedroom apartment for sale in Flat 2, 139-141 Havant Road, Drayton, Portsmouth, Hampshire, PO6 2AA, PO6 — £115,000 • 2 bed • 1 bath • 327 ft²
2 bedroom apartment for sale in Northern Parade, Portsmouth, Hampshire, PO2 — £100,000 • 2 bed • 1 bath • 752 ft²
2 bedroom apartment for sale in Northern Parade, Portsmouth, Hampshire, PO2 — £100,000 • 2 bed • 1 bath • 752 ft²
1 bedroom apartment for sale in Flat 6, 34 Alhambra Road, Southsea, PO4 0RT, PO4 — £95,000 • 1 bed • 1 bath • 528 ft²
1 bedroom apartment for sale in Flat 5, 8 Nightingale Road, Southsea, PO5 3JL, PO5 — £60,000 • 1 bed • 1 bath • 409 ft²










































