Small, long-lease investment near transport, shops and seafront.
Top-floor 1-bed flat in central Southsea, minutes from seafront
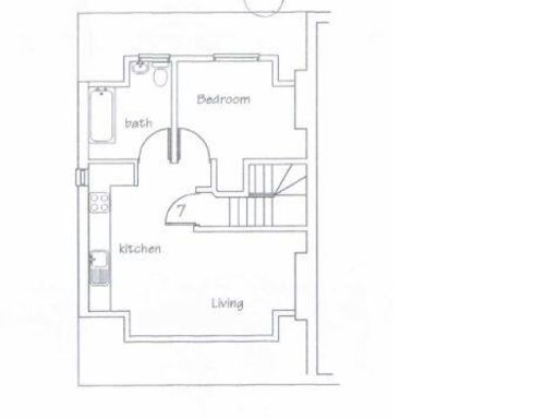
This vacant one-bedroom top-floor flat sits in a period conversion in central Southsea, minutes from the seafront, Southsea Common and Palmerston Road. The open-plan living area provides flexible space and large windows bring natural light; the property is offered with vacant possession and a long lease of 107 years remaining.
Suited to investors or someone seeking a low-entry seaside pied-à-terre, the flat needs modernisation throughout—an opportunity to add value through refurbishment. Note the bedroom has reduced head height in parts (maximum 2.0m, down to 0.6m), so usable floor area is limited and storage or structural alterations may be needed.
Buyers should factor in extra acquisition costs: sale by auction with a buyers’ premium of £1,200 (inc. VAT) and other legal pack charges. The leasehold terms include a £150pa ground rent that doubles every 25 years; check the legal pack for full special conditions. Broadband is very slow here despite excellent mobile signal.
Practical advantages include low council tax (Band A), no flood risk, and vacancy that simplifies immediate letting or refurbishment. EPC rated D and double glazing already installed, but heating is electric via boiler and radiators and the property will benefit from energy and cosmetic upgrades.
1 bedroom apartment for sale in Flat 6, 34 Alhambra Road, Southsea, PO4 0RT, PO4 — £95,000 • 1 bed • 1 bath • 528 ft²
1 bedroom apartment for sale in Flat 3 Marlboro House, 18 Malvern Road, Southsea, Hampshire, PO5 2NB, PO5 — £45,000 • 1 bed • 1 bath • 463 ft²
1 bedroom apartment for sale in Ground Floor Flat, 144 Laburnum Grove, Portsmouth, City of Portsmouth, PO2 0ET, PO2 — £115,000 • 1 bed • 1 bath • 599 ft²
1 bedroom flat for sale in Landport Terrace, Portsmouth, PO1 — £130,000 • 1 bed • 1 bath • 560 ft²
1 bedroom apartment for sale in 55 Waverley Road, Southsea, Hampshire, PO5 2PJ, PO5 — £115,000 • 1 bed • 1 bath • 356 ft²
2 bedroom apartment for sale in Osborne Road, Southsea, Hampshire, PO5 3LU, PO5 — £130,000 • 2 bed • 1 bath • 686 ft²


































