Five-home redevelopment with plans in place for an investor prepared to renovate.
Freehold site with planning permission for five town houses
Very large plot with communal parking and gardens planned
Estimated completion cost for approved scheme approx £180,000
Currently vacant and derelict; windows boarded and needs full refurbishment
Medium flood risk; mitigation likely required for insurance and finance
High local crime and very deprived area impact lettability and value
Excellent mobile signal and fast broadband support modern living needs
Proximity to schools, shops and coastal attractions (local amenities)
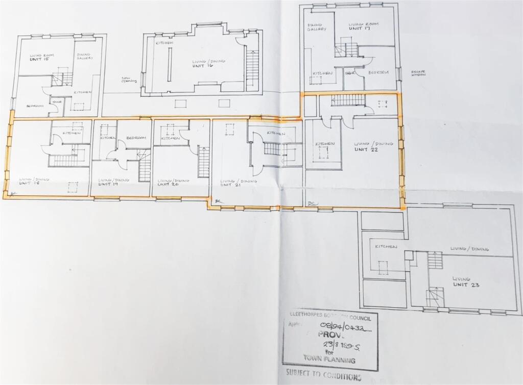
An unusual investment opportunity in Valentine Court, Cleethorpes: a derelict red-brick property offered freehold with planning permission to create five town houses with communal parking and gardens. The site sits on a very large plot, has off-street parking allocation, and services for drainage, water, gas and telecoms brought up to the individual properties—practical advantages for a conversion project.
The buildings are vacant and require full refurbishment: windows and openings are boarded and the fabric shows typical Victorian/industrial age wear. Estimated completion costs for the approved scheme are approximately £180,000; buyers should budget for additional contingencies for structural works, compliance, and finishes. There is a medium flooding risk and the area records higher crime and very high deprivation, all factors that affect lettability and resale value and must be considered in appraisals.
For the right purchaser—an investor or developer familiar with refurbishment—this site offers clear upside. Planning permission for five town houses is already in place and plans are available, shortening the route to delivery. Good digital connectivity (excellent mobile signal and fast broadband) and nearby schools, shops and local amenities support future residents once works are complete.
This is a value-led project rather than a turnkey purchase: the property suits buyers prepared to manage renovation, community risks and flood mitigation. Solicitor checks should confirm tenure details and the planning timetable. With the right budget and risk management, the site can be transformed into a small modern residential scheme in a seaside town setting.
Land for sale in North Street, Cleethorpes , DN35 — £50,000 • 1 bed • 1 bath
Plot for sale in Willingham Street, Grimsby, Lincolnshire, DN32 — £59,950 • 1 bed • 1 bath
Commercial development for sale in Fairlawn 1a Pelham Road, Grimsby, DN34 4SU, DN34 — £300,000 • 1 bed • 1 bath • 4500 ft²
Land for sale in Former Clifton Bingo Hall, Grant Street, Cleethorpes, DN35 , DN35 — £2,000,000 • 1 bed • 1 bath
Detached house for sale in Weelsby Road, Grimsby, Lincolnshire, DN32 — £299,950 • 1 bed • 1 bath • 3639 ft²
3 bedroom terraced house for sale in Brereton Avenue, Cleethorpes, DN35 — £90,000 • 3 bed • 1 bath • 1237 ft²


















