**Standout Features:**
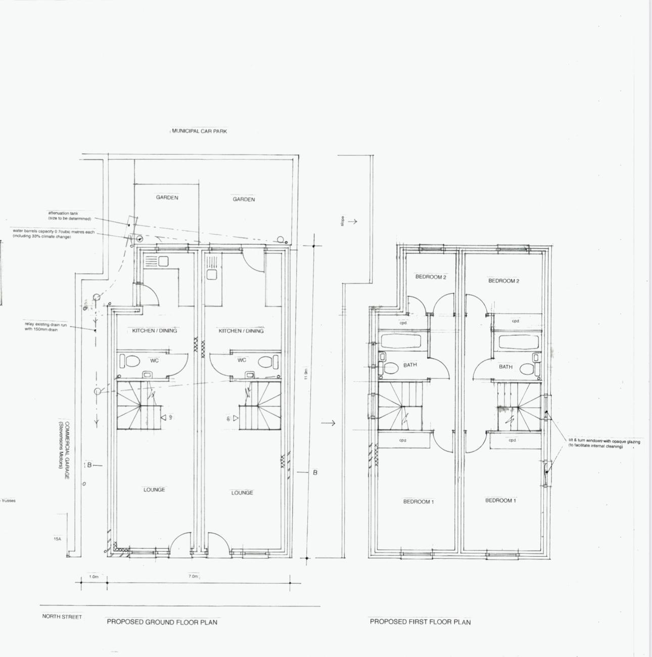
- **Planning Permission:** Approved for two semi-detached houses (ref: DM/1155/23/FUL).
- **Prime Location:** Just off Cleethorpes seafront, a rare opportunity for land in this area, ensuring high interest.
- **Investment Potential:** Attractive for builders and investors looking to capitalize on the local housing demand.
- **Freehold Tenure:** Ownership simplicity and stability.
**Potential Concerns:**
- **Condition of the Site:** The land is described as derelict and neglected, indicating redevelopment is necessary.
- **Auction Sale:** Conditions apply, including a non-refundable reservation fee of 4.5% of purchase price, which may require careful budgeting.
This unique piece of land presents an invaluable opportunity for investment, situated in a highly sought-after area near Cleethorpes seafront, poised for development into two semi-detached homes. With excellent mobile and broadband connectivity, this site offers not just a strategic investment but a chance to contribute to the housing market in a vibrant coastal community. While the current condition of the land requires attention, the potential for profit and future development makes this a compelling option for savvy investors and builders alike. Don’t miss out—high levels of interest are expected in this exclusive offering, so act quickly to secure your stake in this prime location!
Land for sale in Former Clifton Bingo Hall, Grant Street, Cleethorpes, DN35 , DN35 — £2,000,000 • 1 bed • 1 bath
Shop for sale in 40 St. Peters Avenue, Cleethorpes, Lincolnshire DN35 8HL, DN35 — £150,000 • 1 bed • 1 bath
Land for sale in Ainslie Street, Grimsby, DN32 — £110,000 • 1 bed • 1 bath
Land for sale in Mill Road, Cleethorpes, Lincolnshire, DN35 — £190,000 • 1 bed • 1 bath
Land for sale in Weelsby Road, Grimsby, DN32 0PY, DN32 — £50,000 • 1 bed • 1 bath • 3229 ft²
Plot for sale in Bentley Street, Cleethorpes, Lincolnshire, DN35 — £130,000 • 1 bed • 1 bath


















