**Standout Features:**
- Full planning permission for the construction of two three-storey townhouses (Ref: DM/0517/21/FUL)
- Located on Willingham Street, Grimsby with decent access to town center
- Existing structure: a Victorian outbuilding/garage with renovation potential
- Freehold tenure, making it an attractive investment opportunity
**Concerns:**
- High crime rate in the area
- Limited external space; the site lacks a significant garden or green area
- Current structure may require substantial renovation work
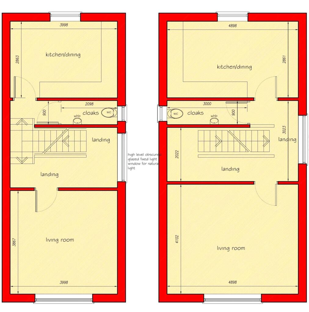
Discover a unique development opportunity on Willingham Street, Grimsby, where the potential for two newly designed townhouses awaits you. With full planning permission secured for two spacious three-storey homes, each featuring modern layouts including a garage, utility room, and generous living spaces, this property is ideally suited for developers or investors looking to make their mark in a well-established area.
While the site currently consists of a Victorian outbuilding that offers some charm and can be revitalized, prospective buyers should be aware of its modest plot size, providing limited outdoor space. The local amenities and excellent access to Grimsby town center enhance its appeal, catering to future occupants' convenience.
Positioned in an area characterized by high crime rates and significant deprivation, this project offers a chance to contribute positively to the neighborhood landscape, while offering a potentially lucrative return on investment. Experience the satisfaction of bringing this vision to life—opportunities like this don't stay on the market for long!
Plot for sale in Macaulay Street, Grimsby, Lincolnshire, DN31 — £460,000 • 1 bed • 1 bath
Land for sale in Weelsby Road, Grimsby, DN32 0PY, DN32 — £50,000 • 1 bed • 1 bath • 3229 ft²
5 bedroom property for sale in Cleethorpe Road, Grimsby, DN31 — £175,000 • 5 bed • 4 bath • 2014 ft²
5 bedroom terraced house for sale in Cleethorpe Road, Grimsby, DN31 — £175,000 • 5 bed • 4 bath • 1640 ft²
Land for sale in Ainslie Street, Grimsby, DN32 — £110,000 • 1 bed • 1 bath
Property for sale in Development And Refurbishment Opportunity, Waltham Road, Scartho, Grimsby, DN33 — £600,000 • 1 bed • 1 bath • 1459 ft²






















