Huge rural plot with conversion consent and immediate income potential.
Planning reference Torridge 1/0927/2024/AGMB (Class Q conversion consent referenced)
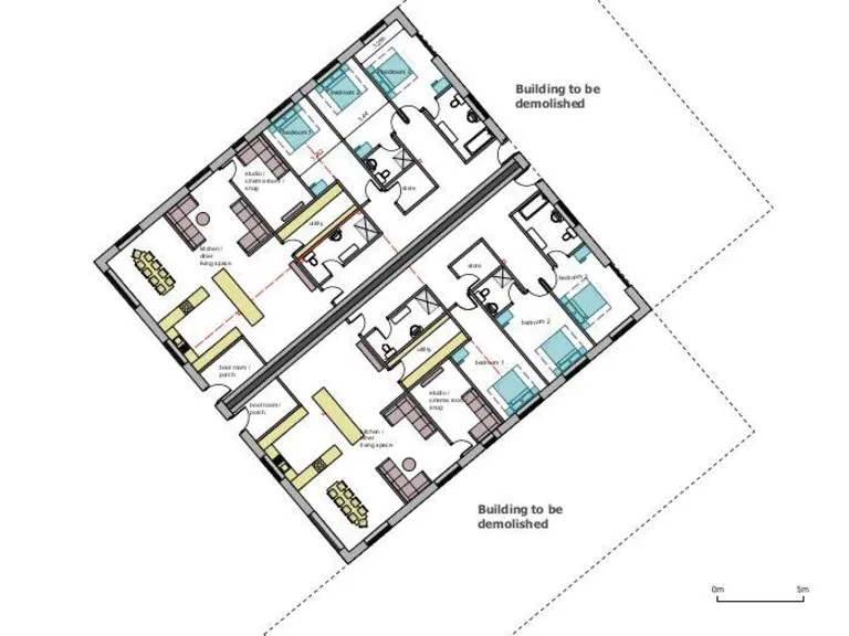
A rare brownfield opportunity on approximately 7.6 acres positioned between Dartmoor and the North Devon/Cornwall coast. The site is centred on large steel‑framed agricultural barns with open internal spans and concrete floors, and benefits from a Planning reference (Torridge 1/0927/2024/AGMB) for Class Q conversion to create substantial residential accommodation. Existing outbuildings include an income‑producing Brook Hut and joined timber mobile homes, offering immediate letting potential while larger conversion works proceed.
The existing footprint is extremely large (circa 11,026 sq ft overall) and currently configured as flexible agricultural/industrial space suitable for conversion into multiple dwellings or a single large development, subject to permissions. Parking for two vehicles exists with scope to create further parking and development (STP). The location is rural and private, with village amenities in Black Torrington a short drive away and good road links to the A30; Exeter is about 37 miles, London Paddington journeys from around 2h10.
Important practical points: the property is effectively off‑grid, broadband speeds are very slow and mobile signal is average. The buildings require conversion works and services installation to realise residential use; some demolition of adjacent structures is shown in proposed plans. The setting is remote with low local services and an area classified as deprived — suitable buyers should budget for construction, services, and ongoing maintenance costs.
This holding will appeal to developers or investor‑buyers seeking substantial land value, rural holiday/glamping or multi‑unit residential potential. It combines immediate small‑scale income (Brook Hut/timber units) with significant longer‑term uplift if conversion or further development is progressed subject to planning.
Land for sale in West Chilla, Beaworthy, Devon, EX21 — £400,000 • 3 bed • 1 bath • 594 ft²
Plot for sale in Pyworthy, Holsworthy, Devon, EX22 — £425,000 • 1 bed • 1 bath
Land for sale in Petrockstowe, Okehampton, EX20 — £250,000 • 1 bed • 1 bath
Land for sale in Petrockstowe, Okehampton, EX20 — £120,000 • 1 bed • 1 bath
Land for sale in Shebbear, EX21 — £300,000 • 1 bed • 1 bath • 1350 ft²
Land for sale in Petrockstowe, Okehampton, EX20 — £130,000 • 1 bed • 1 bath






















































