Chain free two-bedroom cottage with two bathrooms
A practical, accessible two-bedroom cottage in Ashdown Court, offered chain free and designed for independent later-life living. The property includes a stair lift and bath accessibility aid and benefits from communal support facilities and a monitored 24-hour emergency alarm.
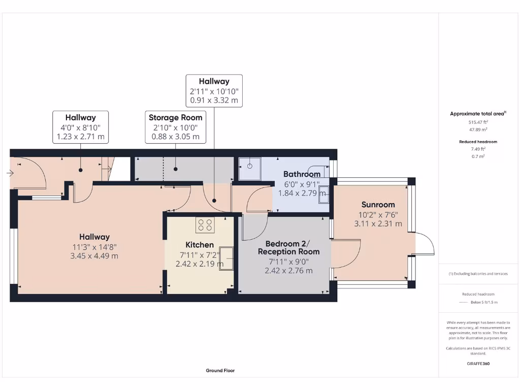
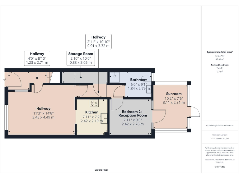
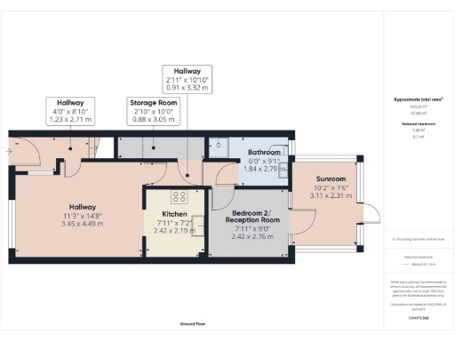
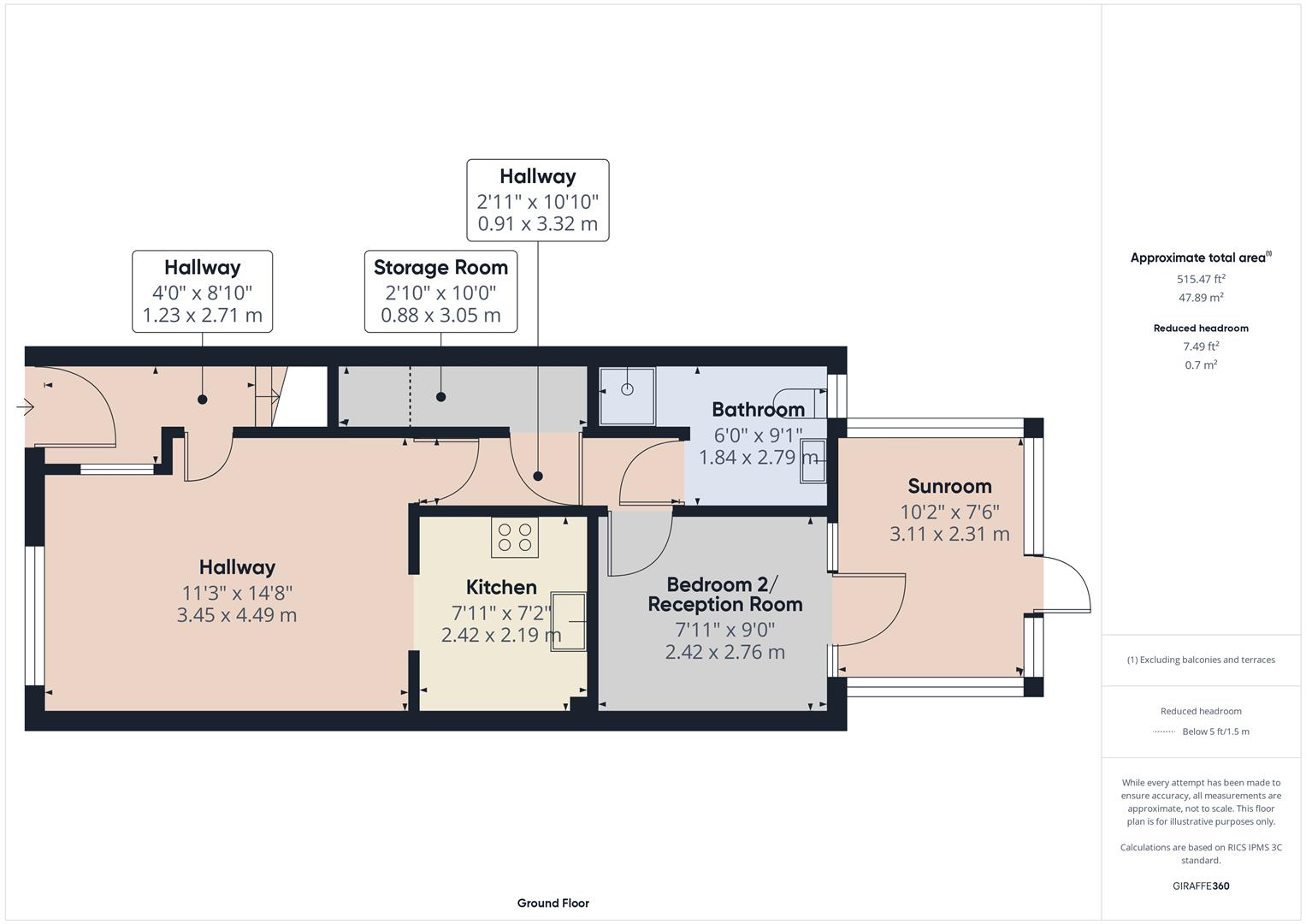
Ground-floor living flows through a sitting room, compact kitchen and a sunroom that opens onto a private enclosed garden — a useful outside space for relaxing or light gardening. The home has two bathrooms, built-in storage, and double glazing; the site also provides on-site management, laundry, guest accommodation and regular communal activities.
Important leasehold facts are straightforward: the lease has about 66 years remaining, which may restrict mortgage availability and reduce some buyers’ purchasing options. The annual maintenance charge is relatively high at £4,269.25 (covers water, exterior maintenance and buildings insurance), plus a ground rent of £245.66.
This cottage is best suited to older buyers seeking a supportive, social complex near Cromer town centre, beach and local medical services. The accommodation is tidy but dated in parts, offering scope for cosmetic updating to create a refreshed, comfortable home.
2 bedroom retirement property for sale in Ashdown Court, Cromer, NR27 — £180,000 • 2 bed • 2 bath • 797 ft²
2 bedroom detached house for sale in Cromer, NR27 — £200,000 • 2 bed • 2 bath • 920 ft²
2 bedroom retirement property for sale in Ashdown Court, Cromer, NR27 — £155,000 • 2 bed • 2 bath • 859 ft²
2 bedroom ground floor flat for sale in Ashdown Court, Cromer, NR27 — £175,000 • 2 bed • 1 bath • 668 ft²
1 bedroom apartment for sale in Ashdown Court, Cromer, NR27 — £119,000 • 1 bed • 1 bath • 467 ft²
2 bedroom retirement property for sale in Ashdown Court, Cromer, NR27 — £175,000 • 2 bed • 1 bath • 667 ft²






















































































































































