Spacious period house with parking and outdoor space for family living.
Large south-facing rear garden with open countryside views
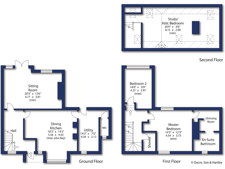
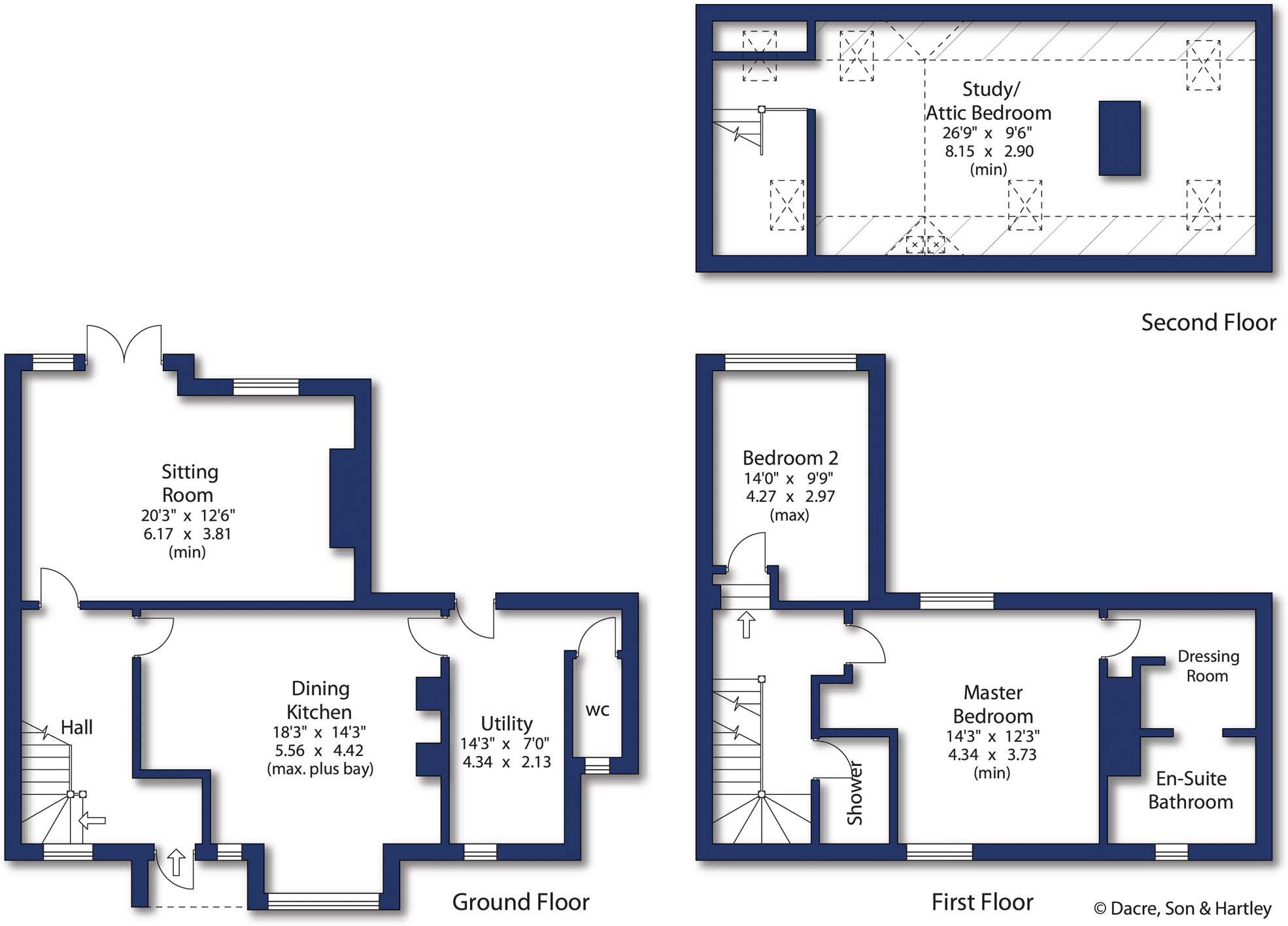
Set on the rural edge of Long Preston, this Victorian semi-detached home offers generous living spaces, a large south-facing garden and off-street parking for three cars. Original stone walls, high-quality finishes and period details combine with practical rooms — a farmhouse dining kitchen, sitting room with gas stove, utility and cloakroom — to create comfortable family living. The property is sold chain-free and sits in an attractive group of homes with open countryside views and easy access to the village station and local amenities.
Accommodation spans three floors and includes two principal bedrooms, a master en-suite with both bath and shower, a separate house shower room and a sizeable attic room suitable as an occasional bedroom or home office. The plot and room proportions give clear potential for reconfiguration or extended family use, while the south-facing rear garden provides sheltered outdoor living and strong gardening potential.
Buyers should note several practical considerations: broadband speeds are slow, drainage connects to a shared sewage treatment plant and water is from a private supply. The stone walls are likely uninsulated, the slate roof shows moss and may need inspection, and the area records a medium flood risk. Council Tax sits above average (Band E). These factors affect running costs and may require maintenance or upgrade work.
3 bedroom end of terrace house for sale in Greenbank, Long Preston, Skipton, North Yorkshire, BD23 — £390,000 • 3 bed • 2 bath • 2005 ft²
2 bedroom terraced house for sale in Main Street, Long Preston, Skipton, North Yorkshire, BD23 — £225,000 • 2 bed • 2 bath • 807 ft²
3 bedroom detached house for sale in Town Head Farm house, Long Preston, BD23 — £550,000 • 3 bed • 1 bath • 2304 ft²
3 bedroom terraced house for sale in Hartley Green, Long Preston, Skipton, BD23 — £295,000 • 3 bed • 2 bath • 1126 ft²
4 bedroom house for sale in Tranmere Cottage & Carn Cottage, Hoyle Hill, Long Preston, Skipton, BD23 — £500,000 • 4 bed • 2 bath • 1197 ft²
2 bedroom end of terrace house for sale in May Cottage, 4 The Green, Long Preston, Skipton, BD23 4PQ, BD23 — £185,000 • 2 bed • 1 bath • 509 ft²






















































































