Character home with garage, garden and village convenience.
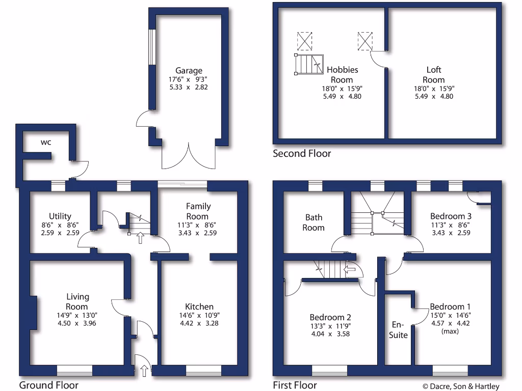
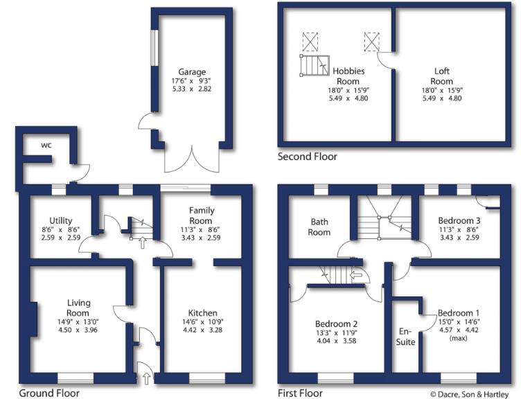
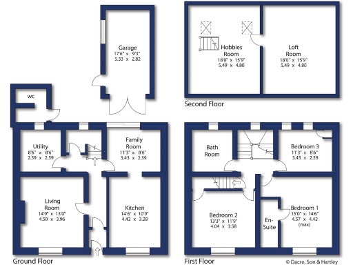
Three double bedrooms, master with ensuite
A handsome stone-built cottage set in the heart of Long Preston, finished to a high standard and arranged over three floors. The house offers generous room sizes for a village property, with two reception rooms, a well-equipped dining kitchen and a useful hobby/loft room on the top floor. The garden, drive and single garage add practical outside space and secure parking.
The accommodation will appeal to families or buyers seeking a character home with modern conveniences: three good double bedrooms, a master ensuite, a separate house bathroom with freestanding bath, and a recently fitted kitchen with integrated appliances and an Electric Aga. Heating is mains gas with boiler and radiators, and glazing is double (install date unknown).
There are a few practical points to note. Water is supplied from the Long Preston private supply rather than a mains public water connection. The building is pre-1900 stone construction and walls are assumed to have no cavity insulation, so buyers should consider potential upgrading for thermal performance and future running costs. Broadband speeds are average for the area.
Positioned within the Yorkshire Dales National Park, this cottage benefits from village amenities, a primary school, and a rail link to Leeds and Carlisle, while Settle and Skipton are within easy reach. Internal viewing is recommended to appreciate the balance of period character and recent renovations on offer.
3 bedroom terraced house for sale in Hartley Green, Long Preston, Skipton, BD23 — £295,000 • 3 bed • 2 bath • 1126 ft²
3 bedroom terraced house for sale in Main Street, Long Preston, Skipton, North Yorkshire, BD23 — £259,950 • 3 bed • 1 bath • 807 ft²
2 bedroom end of terrace house for sale in May Cottage, 4 The Green, Long Preston, Skipton, BD23 4PQ, BD23 — £185,000 • 2 bed • 1 bath • 509 ft²
2 bedroom terraced house for sale in Main Street, Long Preston, Skipton, North Yorkshire, BD23 — £225,000 • 2 bed • 2 bath • 807 ft²
4 bedroom terraced house for sale in Pendle View, Long Preston, Skipton, North Yorkshire, BD23 — £425,000 • 4 bed • 2 bath • 1680 ft²
4 bedroom semi-detached house for sale in Main Street, Long Preston, Skipton, North Yorkshire, BD23 — £675,000 • 4 bed • 3 bath • 2928 ft²










































































































