**Standout Features:**
- Chain free
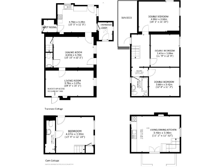
- Spacious 3 double bed house and a 2-storey double bed holiday cottage
- Traditional period features with stonework
- Single garage and driveway parking
- Enclosed garden with scenic countryside views
- Proximity to local amenities: train station, bus, pub, and well-stocked Post Office
- Located in the Yorkshire Dales National Park
**Summary Description:**
Discover this exceptional detached period home in the charming village of Long Preston, Skipton, featuring a rare combination of a 3-bedroom main residence and a lucrative 2-storey holiday cottage included in the sale.
Perfect for families or investors, the house showcases four reception rooms, a light-filled breakfast-kitchen with rustic wood details, a cozy dining room with a coal effect gas fire, and a welcoming living room with an open fire, elevating comfort and character. Upstairs, you’ll find three generously-sized double bedrooms and a beautifully appointed bathroom, capped off by a secret south-facing sun terrace that offers delightful countryside views.
The property boasts a single garage and ample parking, while the enclosed garden provides a tranquil sanctuary for relaxation and outdoor activities. Enjoy convenient access to local amenities including schools with strong ratings, making this property not only a charming home but an ideal investment for those seeking a lifestyle in a picturesque setting. Don’t miss this unique opportunity to secure a chain-free property with excellent rental potential in a vibrant village atmosphere. Act quickly; such gems don't stay on the market for long!
2 bedroom terraced house for sale in Main Street, Long Preston, Skipton, North Yorkshire, BD23 — £225,000 • 2 bed • 2 bath • 807 ft²
3 bedroom terraced house for sale in Main Street, Long Preston, Skipton, North Yorkshire, BD23 — £259,950 • 3 bed • 1 bath • 807 ft²
4 bedroom end of terrace house for sale in Main Street, Long Preston, Skipton, North Yorkshire, BD23 — £410,000 • 4 bed • 2 bath • 1414 ft²
2 bedroom end of terrace house for sale in May Cottage, 4 The Green, Long Preston, Skipton, BD23 4PQ, BD23 — £185,000 • 2 bed • 1 bath • 509 ft²
4 bedroom semi-detached house for sale in Main Street, Long Preston, Skipton, North Yorkshire, BD23 — £675,000 • 4 bed • 3 bath • 2928 ft²
5 bedroom house for sale in Main Street, Long Preston, Skipton, North Yorkshire, BD23 — £550,000 • 5 bed • 3 bath • 2100 ft²










































































































