Character home with large garden and parking near Alderley Edge village.
Three bedrooms with period features and high ceilings
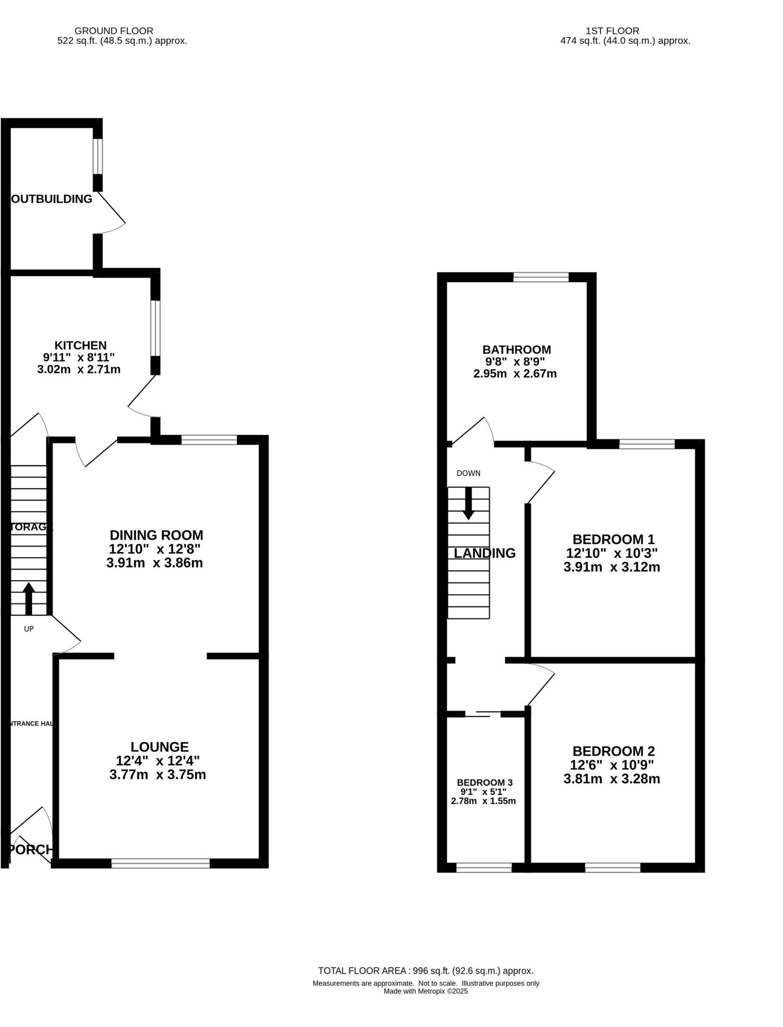
This attractive three-bedroom mid-terrace sits in a highly sought Alderley Edge location, close to the village and top-rated schools. The house retains period character—bay window, coving and a gas living flame fire—presented in tidy, move‑in condition for buyers wanting character with immediate use.
Outside, the property benefits from off‑street parking, a large enclosed rear garden and useful outbuilding storage. The very sizeable plot and typical terrace footprint offer realistic scope to add value by rear extension or loft conversion, subject to the necessary consents.
Buyers should note the sale is a probate transaction and is offered chain free; interested parties must allow time for probate to be granted. Construction is solid brick with assumed no wall insulation and heating currently provided by room heaters with mains gas—modernisation of central heating and insulation would improve comfort and running costs.
There is a recorded above‑average local crime level and a possible damp risk noted in parts; a buyer survey is recommended. Overall, the house suits a small family or professional couple seeking character close to amenities, with clear potential for refurbishment and enlargement to increase space and value.
3 bedroom terraced house for sale in Orchard Green, Alderley Edge, SK9 — £515,000 • 3 bed • 1 bath • 1238 ft²
3 bedroom terraced house for sale in Lydiat Lane, Alderley Edge, SK9 — £550,000 • 3 bed • 2 bath • 1243 ft²
2 bedroom terraced house for sale in Heyes Lane, Alderley Edge, SK9 — £550,000 • 2 bed • 2 bath • 1130 ft²
2 bedroom terraced house for sale in Heyes Lane, Alderley Edge, SK9 — £550,000 • 2 bed • 2 bath • 1130 ft²
3 bedroom terraced house for sale in Duke Street, Alderley Edge, SK9 — £585,000 • 3 bed • 2 bath • 1259 ft²
3 bedroom terraced house for sale in Moss Lane, Alderley Edge, SK9 — £675,000 • 3 bed • 2 bath • 1435 ft²






















































