Large blank‑canvas property with planning approval close to Angel Station.
Approximately 2,500 sq ft first-floor Victorian commercial space
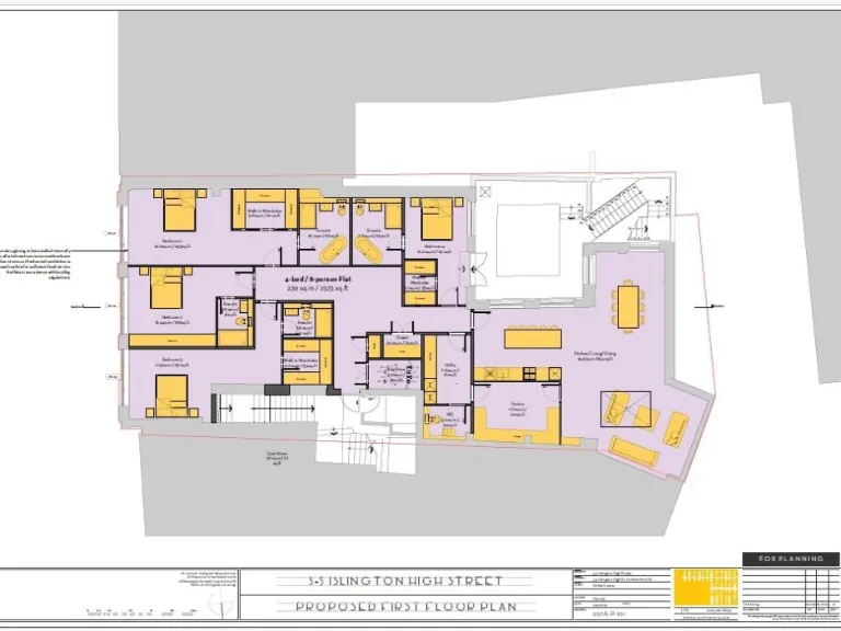
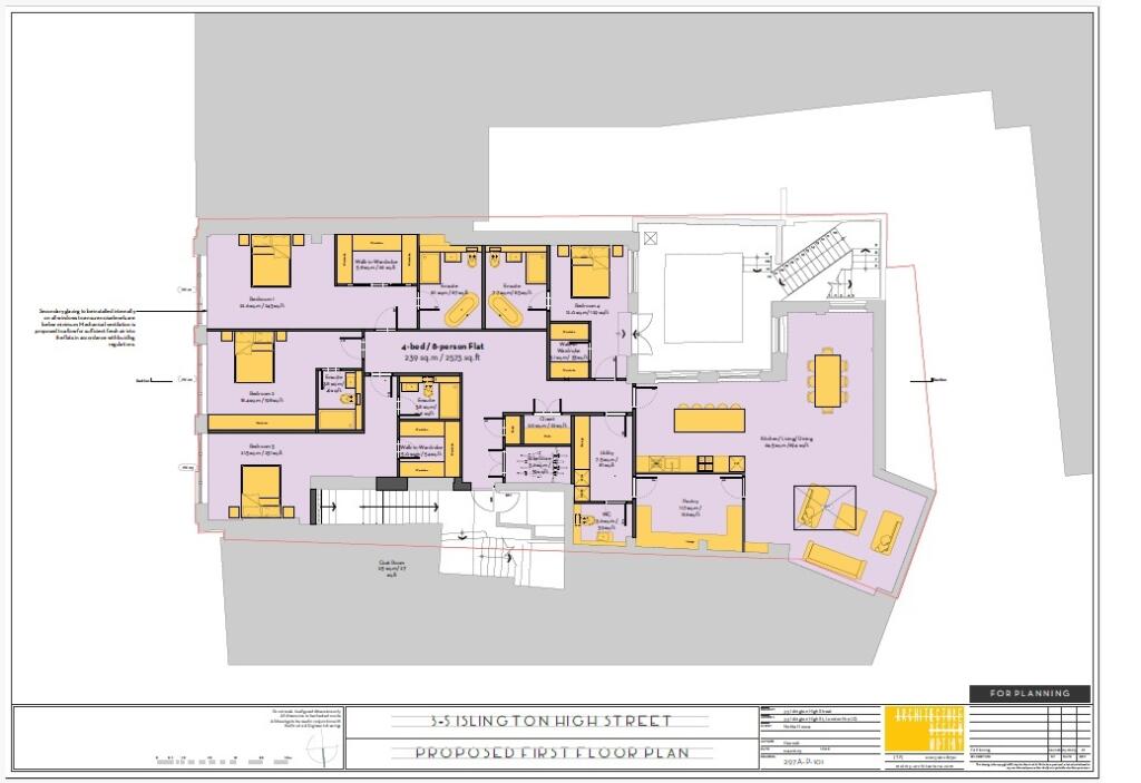
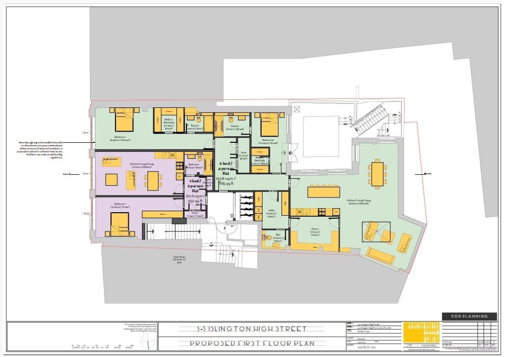
A rare central N1 development opportunity directly opposite Angel Underground Station. The first-floor Victorian commercial space extends to around 2,500 sq ft, with high ceilings and a roof terrace, and comes with long leasehold security (999 years). Planning approval already in place for conversion to residential: either a single 4‑bedroom apartment or a split 1‑bed + 2‑bed layout, saving early-stage planning time.
This building is a blank‑canvas conversion: exposed period features and generous ceiling heights are strong character assets, while the existing layout and commercial services mean a full residential fit‑out is required. Heating is currently electric room heaters and the property is of solid brick construction with no known insulation; buyers should budget for full M&E works, insulation, and internal partitioning.
Location is a clear strength — immediate access to Angel transport, plentiful amenities and fast broadband make the site attractive to professional tenants or owner-occupiers once converted. Note practical and market considerations: the surrounding area records very high crime and local deprivation indicators, which should inform security, specification and lettability assumptions. This is primarily a redevelopment play for a developer, investor or experienced converter prepared to undertake a comprehensive refit.
Office for sale in 3 Islington High Street, Islington, London, N1 9LQ, N1 — £1,300,000 • 1 bed • 1 bath • 2287 ft²
Office for sale in 3-5 Islington High Street, Angel, London, N1 9LQ, N1 — £1,375,000 • 1 bed • 1 bath • 2287 ft²
2 bedroom flat for sale in Owen Street, Clerkenwell, London, EC1V — £900,000 • 2 bed • 2 bath • 1081 ft²
House for sale in 328 City Road, 7-8 Wakley Street, London, EC1V 7LT, EC1V — £6,000,000 • 1 bed • 1 bath • 22364 ft²
28 bedroom property for sale in City Road, Angel, London, EC1V — £6,200,000 • 28 bed • 1 bath • 1316 ft²
Office for sale in 28-29 White Lion Street, London, N1 9PD, N1 — £2,250,000 • 1 bed • 1 bath • 6498 ft²














































