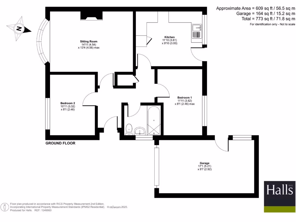
Chain-free two-bed bungalow with garden and garage — scope to modernise in a tucked-away setting.
No onward chain — available for quick purchase
Two double bedrooms; single-storey layout suits downsizers
Driveway, attached garage and enclosed rear garden
Small overall footprint (approx. 609 sq ft)
Requires renovation; heating and insulation need attention
Solid brick walls, likely no cavity insulation (assumed)
Electric storage heaters; double glazing of unknown age
Area: convenient for town and major road links (A483/A5)
Tucked off Morda Road, this two-bedroom semi-detached bungalow offers single-storey living in a private setting with front and rear gardens, driveway parking and an attached garage. The sitting room benefits from a bow window and fireplace, while the layout is compact and easy to manage for downsizers or anyone seeking a small-footprint home close to Oswestry town centre.
Offered with no onward chain, the property presents clear potential for modernisation and personalisation. The plot is decent for the property size and the private drive serves only a few homes, providing a sense of seclusion yet easy access to local amenities and main roads (A483/A5).
Buyers should note the bungalow requires renovation: the building appears to have solid brick walls with no insulation (assumed), electric storage heating, and double glazing of unknown age. These features mean upgrading heating and insulation will likely be priorities to improve comfort and running costs.
Location strengths include proximity to local schools, shops and outdoor leisure routes, plus fast broadband. However, crime levels in the immediate area are recorded as very high, so prospective purchasers should factor in security considerations when viewing.
2 bedroom detached bungalow for sale in Breidden Close, Oswestry, SY11 — £265,000 • 2 bed • 1 bath • 761 ft²
3 bedroom semi-detached bungalow for sale in Walford Road, Oswestry, SY11 — £255,000 • 3 bed • 1 bath • 942 ft²
3 bedroom detached bungalow for sale in Oak Drive, Oswestry, SY11 — £279,950 • 3 bed • 1 bath • 889 ft²
2 bedroom semi-detached bungalow for sale in Blackfriars, Oswestry, SY11 — £200,000 • 2 bed • 1 bath • 1004 ft²
2 bedroom semi-detached bungalow for sale in Upper Brook Street, Oswestry., SY11 — £199,950 • 2 bed • 1 bath • 663 ft²
2 bedroom semi-detached bungalow for sale in Whitefriars, Oswestry, SY11 — £175,000 • 2 bed • 1 bath • 916 ft²






















































