Quiet cul-de-sac home with large private garden and garage, ready to personalise.
- Generous corner plot with mature shrubs and fruit trees
- Not directly overlooked; good privacy
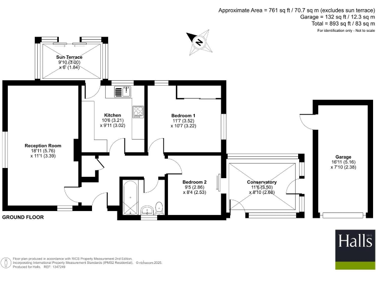
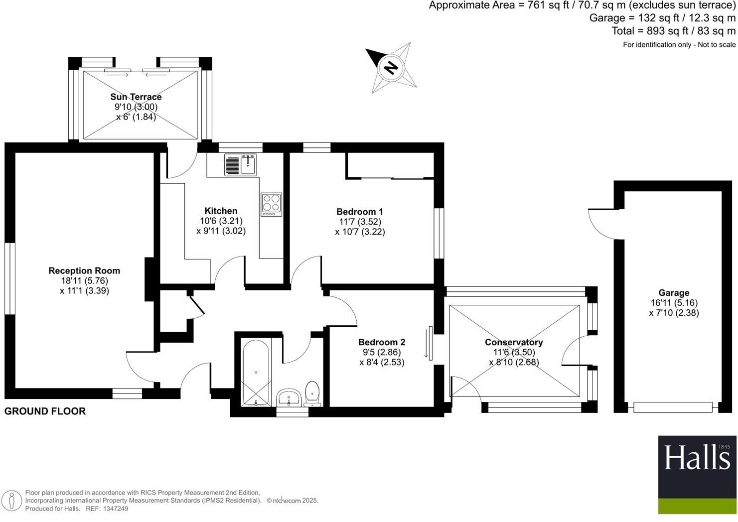
- Two bedrooms, one bathroom, 761 sq ft (approx)
- Requires full modernisation throughout
- Conservatory and sun terrace extend living space
- Driveway parking plus single garage
- Potential to extend/reconfigure subject to approvals
- Mains gas heating, double glazing, fast broadband
Set at the end of a sought-after cul-de-sac, this detached two-bedroom bungalow occupies a generous corner plot with well-established gardens, mature shrubs and fruit trees that provide privacy and limited overlooking. The single-storey layout includes a spacious reception room with a feature fireplace, kitchen, conservatory opening onto a sun terrace, two bedrooms and a family bathroom.
The property is offered as a clear renovation project and will benefit from a programme of modernisation throughout. The current accommodation provides a practical base with scope to reconfigure or extend (subject to planning and building regulations), allowing a buyer to add value and personalise finishes to taste.
Practical strengths include driveway parking, a single garage, mains gas heating with boiler and radiators, double glazing and a large wrap-around garden that is rare for a bungalow of this size. The location is well connected to Oswestry town amenities, schools and the A483/A5 corridor, with low crime, fast broadband and excellent mobile signal providing everyday convenience.
This home will suit a buyer looking for a downsize-friendly, single-level property with significant garden and extension potential, or an investor/DIY enthusiast seeking a refurbishment opportunity in a very affluent, low-risk neighbourhood.
2 bedroom bungalow for sale in Llanforda Rise, Oswestry, Shropshire, SY11 — £345,000 • 2 bed • 2 bath • 1142 ft²
2 bedroom semi-detached bungalow for sale in Morda Road, Oswestry, SY11 — £235,000 • 2 bed • 1 bath • 609 ft²
3 bedroom bungalow for sale in Walsham Avenue, Whittington, Oswestry., SY11 — £259,950 • 3 bed • 1 bath • 1048 ft²
3 bedroom bungalow for sale in Walford Road, Oswestry, Shropshire, SY11 — £210,000 • 3 bed • 1 bath • 646 ft²
3 bedroom detached bungalow for sale in Lower Hafod, Oswestry., SY11 — £410,000 • 3 bed • 3 bath • 1566 ft²
3 bedroom detached bungalow for sale in Rhewl, Gobowen, SY10 — £295,000 • 3 bed • 1 bath • 894 ft²


































































