Central retirement flat with unusually large private rear garden.
Light open-plan kitchen/living room, good for home working
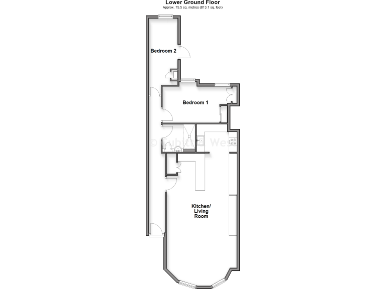
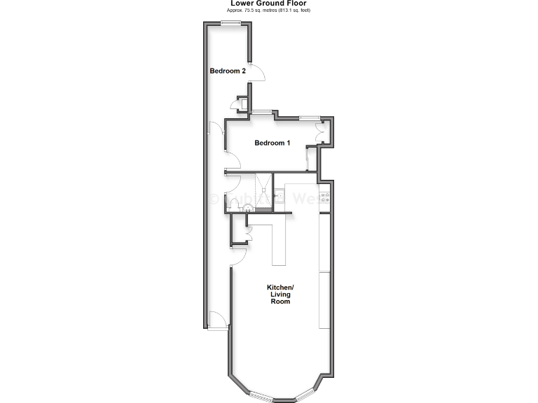
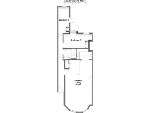
Light, bright and arranged for easy living, this two-bedroom flat sits within a Regency terrace just a short walk from central Brighton, the station and seafront. The open-plan kitchen/living room and modern fitted kitchen suit socialising or working from home, while unusually for a flat there is an exceptionally large private rear garden for outdoor dining and gentle gardening.
This property is offered as a leasehold retirement home and is being marketed with a Home for Life Lifetime Lease option for those aged 60+. The guide Lifetime Lease price shown is £264,500 (based on an average saving of 33% against the market value of £400,000) but the amount you pay depends on age, personal circumstances and any share of the value you choose to purchase. The flat has 100 years remaining on the lease and an average annual service charge of £2,040.
Practical points to note: the building dates from before 1900 and walls are likely original granite/whinstone with no insulation assumed, which may affect heating efficiency. The property is relatively small at around 492 sq ft, so it suits buyers looking to downsize or simplify rather than those needing large living spaces. Council tax is described as affordable and there is no identified flood risk.
Overall this is a conveniently located retirement-friendly flat that combines period character, a large garden and modern internal fittings. It will appeal to over-60s seeking central Brighton living with simplified ownership options, but buyers should factor in the leasehold status, service charge and potential heating/insulation works.
2 bedroom apartment for sale in Old Steine, Brighton, East Sussex, BN1 — £264,500 • 2 bed • 2 bath • 797 ft²
2 bedroom flat for sale in Belvedere Terrace, Brighton, East Sussex, BN1 — £425,000 • 2 bed • 1 bath • 492 ft²
2 bedroom ground floor flat for sale in Chichester Terrace, Brighton, East Sussex, BN2 — £330,500 • 2 bed • 1 bath • 980 ft²
1 bedroom flat for sale in Lansdowne Street, Hove, East Sussex, BN3 — £165,500 • 1 bed • 1 bath • 358 ft²
3 bedroom ground floor flat for sale in Prince Regents Close, Brighton, East Sussex, BN2 — £281,000 • 3 bed • 2 bath • 894 ft²
1 bedroom apartment for sale in Norfolk Terrace, Brighton, East Sussex, BN1 — £139,000 • 1 bed • 1 bath • 377 ft²


































































































