Spacious retirement-friendly home with private patio near seafront and station.
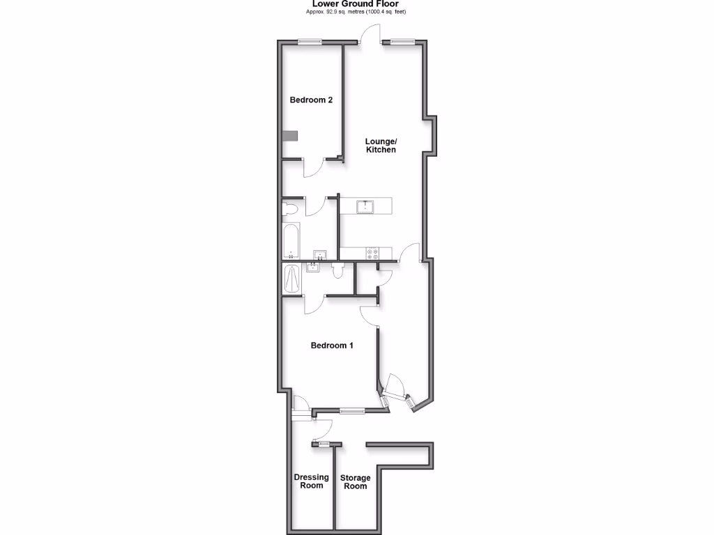
Lower-ground two-bedroom apartment with private front and rear entrances
This deceptively spacious two-bedroom lower-ground apartment sits in the heart of Brighton, just moments from the seafront, cafes and Brighton Station. With a private front and rear entrance and a sizeable paved patio, the layout suits someone seeking low-maintenance city living with outdoor space for alfresco sitting.
The property is offered as a leasehold with an exceptionally long lease (approx. 993 years) and comes with two bathrooms, generous built-in storage and an open-plan living/kitchen stretching over 27ft. For over-60s there is an option to buy a Lifetime Lease through the Home for Life plan; the guide Lifetime Lease price shown here is £264,500 (based on an illustrative 33% saving from the £400,000 market value), subject to individual circumstances.
Buyers should note material factors plainly: this is electrically heated via room heaters, the building has solid brick walls with assumed no insulation and therefore may incur higher running costs. The property lies in an area with very high reported crime and significant local deprivation which will be relevant for lifestyle choice and insurance considerations. Service charge is approximately £2,906 per year.
Overall this is a centrally located, characterful apartment offering convenience and outdoor space for someone prioritising Brighton city living or downsizing into a retirement-friendly layout. Interested buyers should verify all details, running costs and suitability for the Lifetime Lease scheme before proceeding.
2 bedroom flat for sale in West Street, Brighton, East Sussex, BN1 — £330,500 • 2 bed • 2 bath • 883 ft²
2 bedroom maisonette for sale in Regency Square, Brighton, East Sussex, BN1 — £231,500 • 2 bed • 1 bath • 416 ft²
2 bedroom flat for sale in Ditchling Road, Brighton, East Sussex, BN1 — £231,000 • 2 bed • 1 bath • 571 ft²
2 bedroom apartment for sale in Old Steine, Brighton, East Sussex, BN1 — £400,000 • 2 bed • 2 bath • 797 ft²
2 bedroom ground floor flat for sale in Chichester Terrace, Brighton, East Sussex, BN2 — £330,500 • 2 bed • 1 bath • 980 ft²
2 bedroom end of terrace house for sale in Crown Street, Brighton, East Sussex, BN1 — £330,500 • 2 bed • 1 bath • 948 ft²






















































