Compact, characterful home with sizable private garden and great transport links.
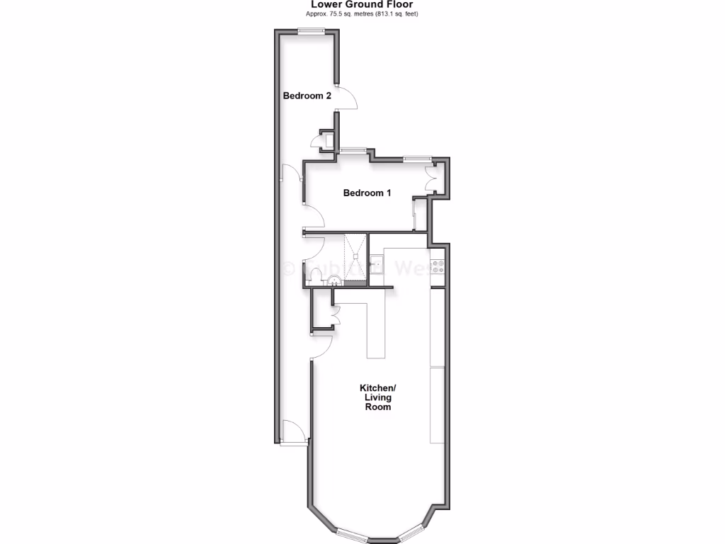
Chain-free two-bedroom flat in central Brighton location
Large private rear garden rare for flats in the area
Open-plan kitchen/living ideal for socialising and home working
Compact overall size — approximately 492 sq ft
Leasehold with around 100 years remaining; verify details
Average service charge about £2,040 per year
Older mid-terrace building; walls assumed uninsulated, consider improvements
Situated in a lively student/commuter neighbourhood, close to transport
Set on a handsome Georgian terrace just moments from Brighton town centre, this bright two-bedroom apartment offers a compact, modern living space with an unusually large private rear garden. The open-plan kitchen/living room is well-suited to socialising and home working, while good broadband and excellent mobile signal support flexible working from home.
Practical buyers will value the chain-free sale and a long lease of around 100 years. The property is in an older mid-terrace building with period features and high ceilings, which add charm but also reflect its age: walls are assumed to lack insulation and the building dates from before 1900, so buyers should consider potential energy-improvement work.
The flat suits first-time buyers or commuter couples wanting a central Brighton base with outdoor space—close to the station, seafront, shops and a range of local amenities. It is presented in largely modern style (some images are virtual-staged to illustrate potential) and offers straightforward potential to personalise and update where desired.
Buyers should note this is a leasehold apartment with an average service charge of about £2,040 and a modest overall floor area (around 492 sq ft). The neighbourhood is cosmopolitan and lively, with a mix of students and commuters; this brings convenience but can also mean busier streets at peak times. Interested parties should verify lease details, service charges and any necessary consents for alterations.
2 bedroom flat for sale in Buckingham Road, Brighton, East Sussex, BN1 — £495,000 • 2 bed • 1 bath • 706 ft²
1 bedroom apartment for sale in Sillwood Place, Brighton, BN1 — £300,000 • 1 bed • 1 bath • 425 ft²
1 bedroom flat for sale in Buckingham Street, Brighton, BN1 3LT, BN1 — £250,000 • 1 bed • 1 bath • 441 ft²
1 bedroom apartment for sale in Sillwood Place, Brighton, BN1 — £300,000 • 1 bed • 1 bath • 425 ft²
1 bedroom flat for sale in Buckingham Place, Brighton, East Sussex, BN1 — £260,000 • 1 bed • 1 bath • 473 ft²
1 bedroom apartment for sale in Buckingham Street, Brighton, BN1 — £285,000 • 1 bed • 1 bath • 419 ft²










































































