South-facing garden, conservatory and easy single-level living for simpler days.
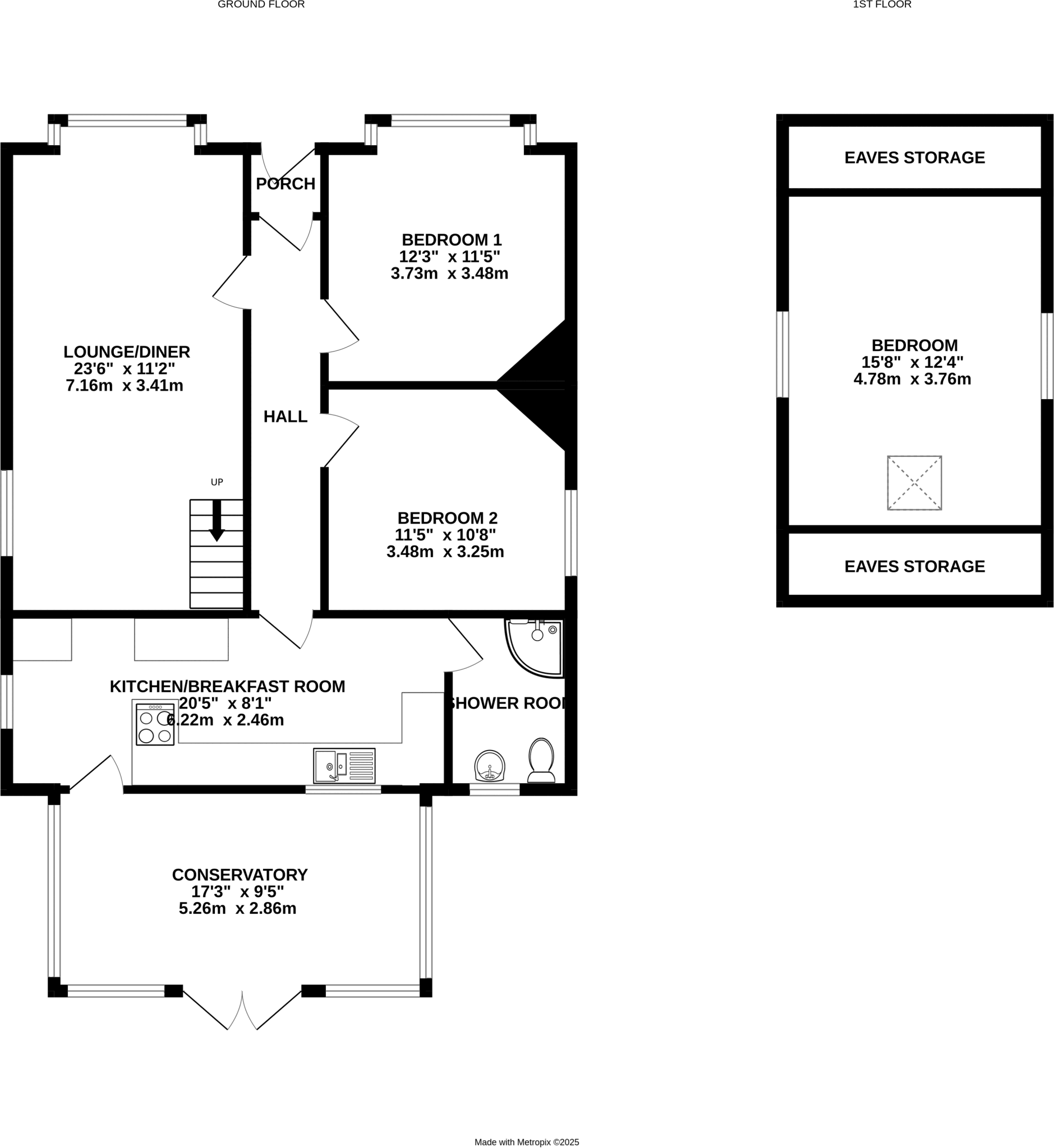
Spacious 23'6 lounge/diner for flexible living
This detached bungalow offers comfortable single-storey living on a pleasant Saltash road, suited to downsizers seeking manageable space and outside privacy. The lounge/diner stretches to 23'6, while a split-level 20'5 kitchen and a 17'3 conservatory add flexible living and dining options. A south-facing rear garden, driveway and garage make day-to-day life easy and low-hassle.
Practical systems include uPVC double glazing and a mains-gas condensing boiler serving radiators. The property is chain free and freehold, with a modest council tax band and very low local crime — helpful for simpler moves and reduced running worries. Local primary schools are rated Good and the area benefits from fast broadband and excellent mobile signal.
Buyers should note the bungalow’s age (circa 1950s–1960s) and an earlier description stating single-skin construction. Those facts can mean lower thermal performance and potential maintenance or insulation work. Internally there is a single shower room only, so families who need extra bathrooms should factor that in.
Overall, the house suits someone seeking a straightforward, characterful bungalow with garden and parking, and who is prepared to invest modestly in energy improvements or cosmetic updating to personalise the home.
3 bedroom detached bungalow for sale in Fairway, Saltash, PL12 4BA, PL12 — £325,000 • 3 bed • 1 bath • 864 ft²
3 bedroom detached bungalow for sale in Tower View, Saltash, PL12 — £360,000 • 3 bed • 1 bath • 1115 ft²
3 bedroom detached bungalow for sale in Churchtown Vale, Saltash, PL12 4AN, PL12 — £310,000 • 3 bed • 1 bath • 955 ft²
2 bedroom detached bungalow for sale in Reddington Road, Plymouth, PL3 — £275,000 • 2 bed • 1 bath • 625 ft²
4 bedroom detached bungalow for sale in Lynher Drive, Saltash, PL12 — £450,000 • 4 bed • 2 bath • 1582 ft²
3 bedroom detached bungalow for sale in Kingswear Crescent, PL6 — £325,000 • 3 bed • 1 bath • 1007 ft²


























































