Immaculate 1970s home with large private garden and excellent commuter links.
Four bedrooms across about 1,150 sq ft
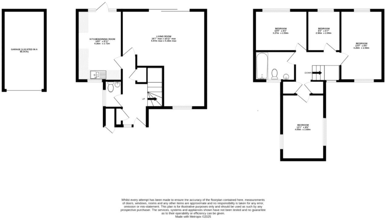
This well-presented four-bedroom mid-terrace offers comfortable, well-planned family living across approximately 1,150 sq ft. The ground floor benefits from an open-plan kitchen/dining space and a separate lounge, both opening onto a generously sized, well-established rear garden with patio and lawn — excellent for family life and outdoor entertaining. Interiors are shown in immaculate condition and feature double glazing installed post-2002.
Upstairs provides three good double bedrooms plus a flexible fourth bedroom currently used as a study, alongside a refitted family bathroom. The property dates from the late 1970s/early 1980s, is freehold and runs on mains gas with boiler-and-radiator heating. Practical extras include built-in storage, a downstairs cloakroom and rear gated access to the garden.
Location is a key strength: the house sits on the Avondale development within minutes of two mainline stations with direct trains to London Waterloo, Reading and Guildford, and close to highly regarded primary and secondary schools. Nearby open spaces such as Ash Ranges and the Basingstoke Canal offer easy access to outdoor recreation for families.
Notable points to consider: there is a single family bathroom for four bedrooms, and the garage is in a nearby block rather than attached to the house. The EPC rating is C (69) and the property sits in Council Tax Band D. Overall, this is a turnkey family home in an established, commuter-friendly neighbourhood with a strong rear garden and practical parking provision.
4 bedroom house for sale in Alder Close, Ash Vale, Guildford Surrey, GU12 — £425,000 • 4 bed • 1 bath • 1151 ft²
3 bedroom detached house for sale in Wood Street, Ash Vale, Surrey, GU12 — £550,000 • 3 bed • 2 bath • 1174 ft²
2 bedroom terraced house for sale in Cypress Grove, Ash Vale, Surrey, GU12 — £325,000 • 2 bed • 1 bath • 475 ft²
4 bedroom detached house for sale in Windsor Gardens, Ash, Surrey, GU12 — £725,000 • 4 bed • 2 bath • 696 ft²
3 bedroom semi-detached house for sale in Warwick Road, Ash Vale, Surrey, GU12 — £500,000 • 3 bed • 2 bath • 859 ft²
4 bedroom detached house for sale in Windsor Gardens, Ash, Surrey, GU12 6QT, GU12 — £725,000 • 4 bed • 2 bath • 2226 ft²






















































