Large private garden, planning consent for annex and potential two-storey extension.
Three bedroom Victorian stone cottage with recent bathroom and en-suite
A traditional stone cottage in West Haddon that mixes period charm with recent updates and clear scope for growth. The house already benefits from a recently refitted shaker kitchen, a new family bathroom and en-suite, gas central heating and secure electric gates opening onto a generous gravel driveway.
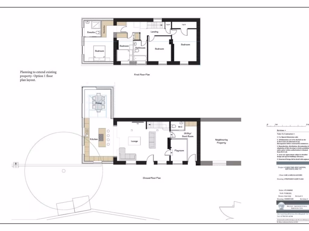
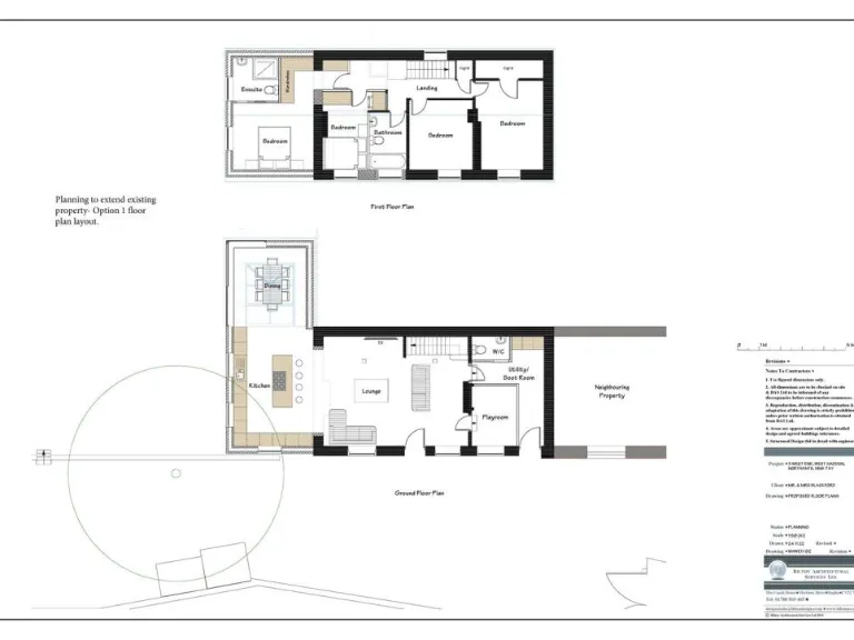
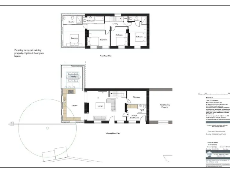
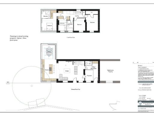
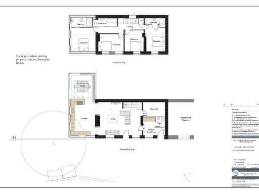
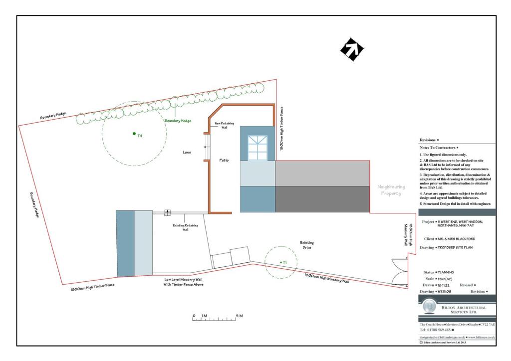
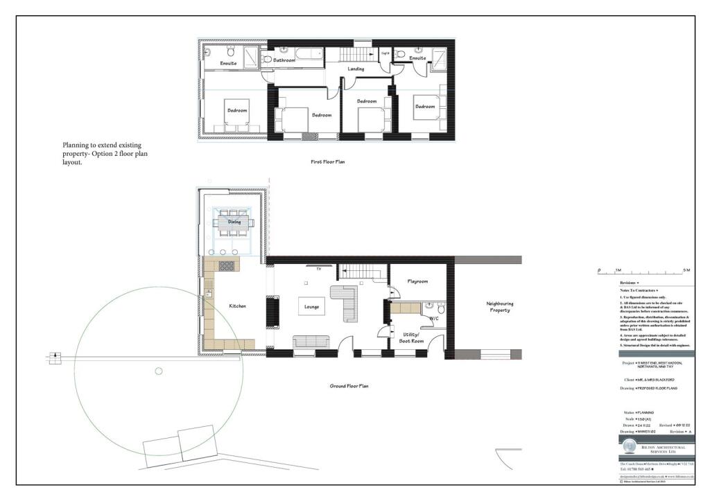
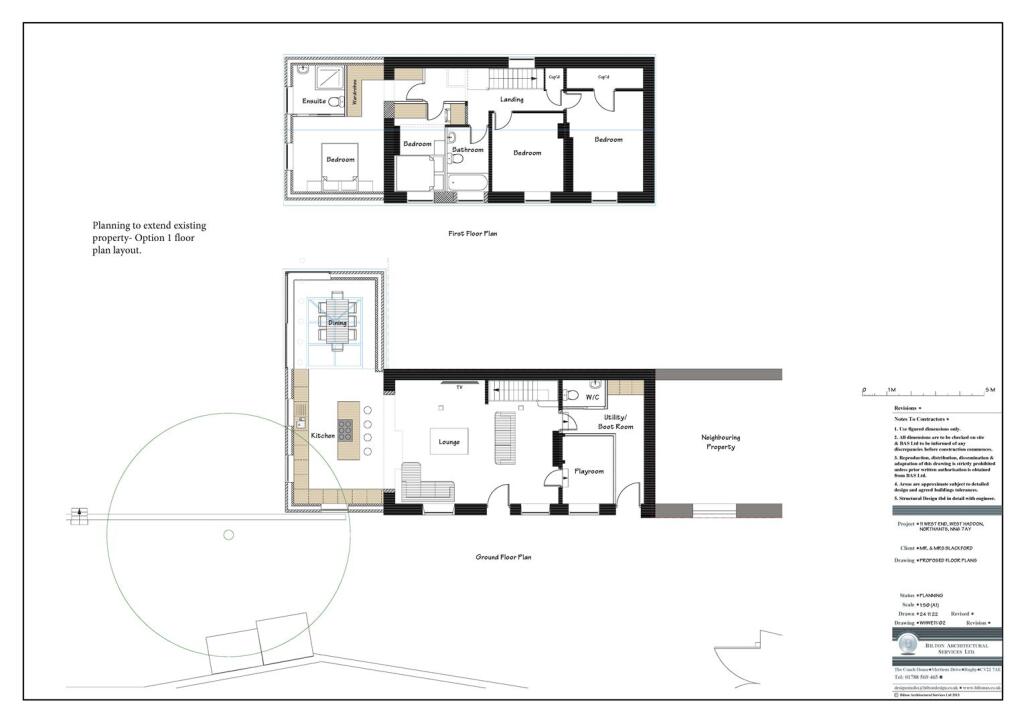
The plot is a notable asset: large, fully enclosed private gardens with a small orchard, pergola and mature planting create a peaceful country setting. Full planning consent exists to convert the former coach house into a one-bedroom annex (planning ref: 2023/6027/FULL) offering around 594 sq ft of additional accommodation; separate proposed plans would add a two-storey extension to the main house to create an open-plan kitchen/diner and an extra bedroom with en-suite.
This property suits a family seeking village life with good local schools and commuter links, or an investor/homebuyer wanting to add value by delivering the approved conversion or proposed extension. Important practical points: the cottage is relatively small internally (c.594 sq ft), the stone walls are assumed to lack insulation, and council tax is in Band E — all factors to budget for when considering further works or running costs.
Overall, the cottage offers immediate move-in convenience in key rooms plus realistic upside through permitted development. Buyers should verify services and inspect the fabric and insulation to confirm scope and costs for any planned improvements.
3 bedroom cottage for sale in West Haddon Road, East Haddon, Northamptonshire NN6 — £375,000 • 3 bed • 2 bath • 1289 ft²
3 bedroom detached house for sale in West Farndon, South Northamptonshire, NN11 — £639,000 • 3 bed • 1 bath • 1363 ft²
3 bedroom cottage for sale in Northampton Road, Yardley Hastings, Northampton, NN7 — £575,000 • 3 bed • 2 bath • 1764 ft²
4 bedroom detached house for sale in Hillside, West Haddon, Northampton, NN6 — £535,000 • 4 bed • 3 bath • 1603 ft²
4 bedroom detached house for sale in Manor Road, Grendon, Northampton, NN7 — £580,000 • 4 bed • 2 bath • 1652 ft²
3 bedroom detached house for sale in Queens Road, Wilbarston, Market Harborough, LE16 — £425,000 • 3 bed • 2 bath • 999 ft²










































































































































