Versatile five-bedroom family home with annexe, refitted kitchen and double garage..
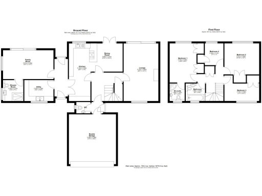
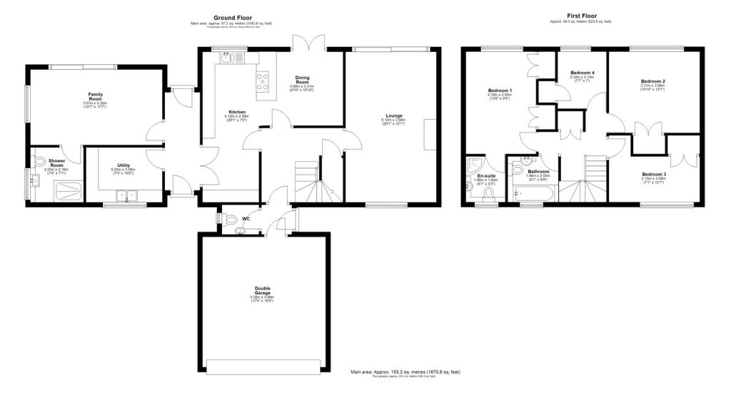
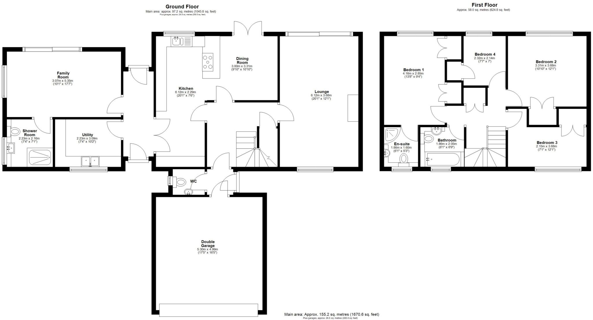
Annexe-style side extension with large utility and shower room
Recently refitted high-spec kitchen/diner
Principal bedroom with high-spec en suite
Double garage plus driveway parking for multiple cars
Private rear garden suited to families and entertaining
Medium flood risk in the area — check insurance costs
Council tax band: described as expensive
Double glazing present; install date unknown
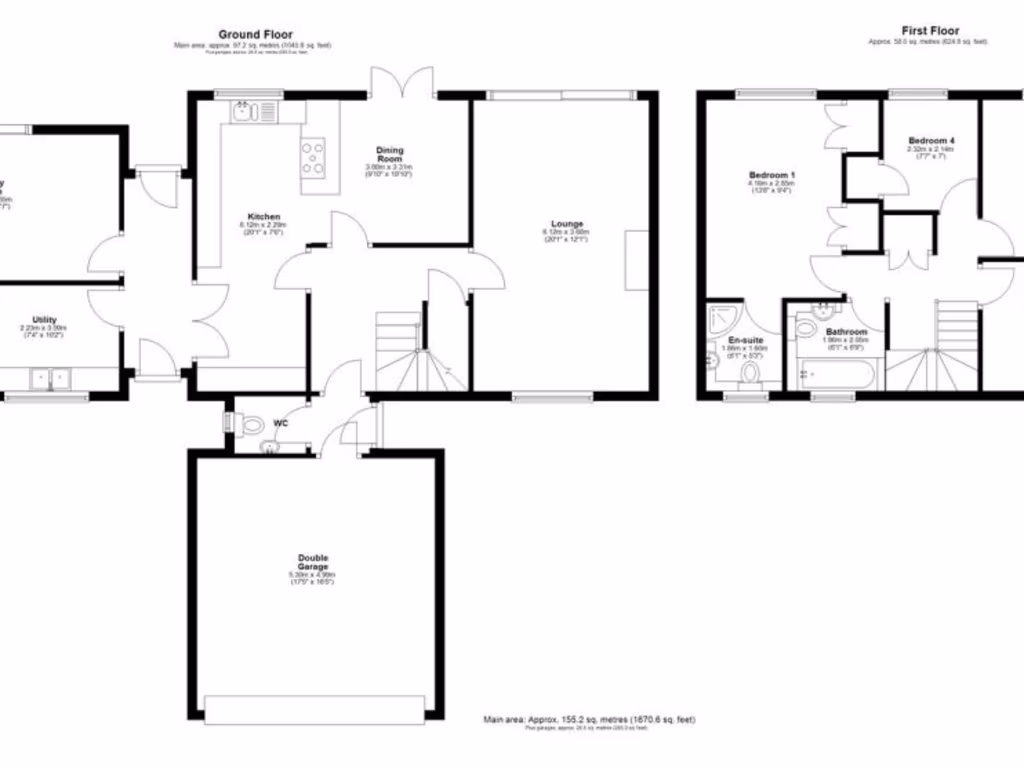
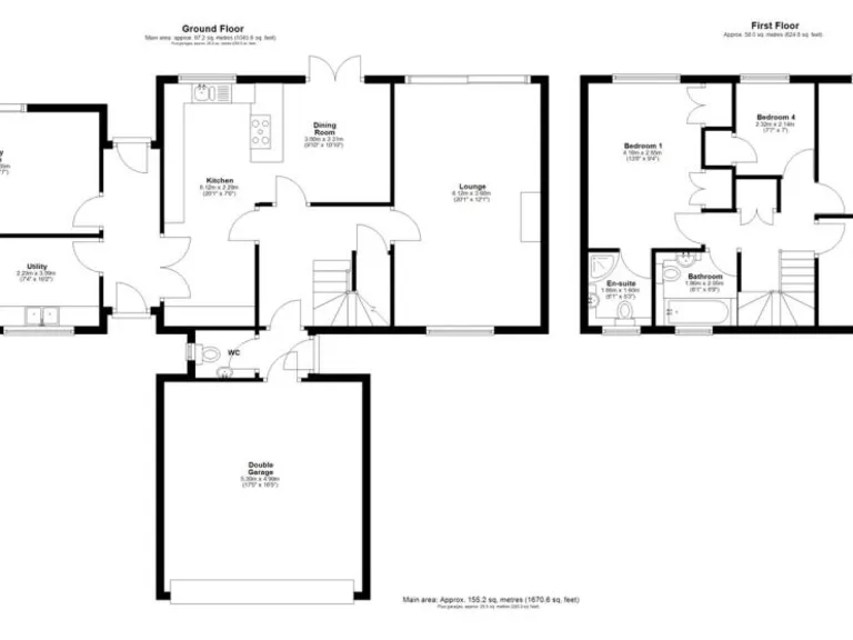
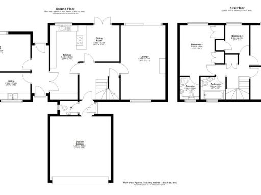
This detached five-bedroom house on Devon Close offers flexible family living with an annexe-style side extension, double garage and large driveway parking. The recently refitted kitchen/diner and principal en suite give a high-spec feel in key areas, while a generous front-to-back lounge provides comfortable everyday and entertaining space.
Set in a very low-crime, affluent neighbourhood within easy reach of shops, community amenities and several well-rated schools, the home suits growing families or multi-generational households seeking versatile accommodation. Fast broadband and excellent mobile signal support home working; the separate study/office adds privacy for work or hobbies.
Practical points to note: the property was built in the early 1990s, has double glazing (install date not recorded) and mains gas central heating. There is a medium flood risk in the area and council tax is described as expensive. While the kitchen and some bathrooms are recently updated, other parts of the house may benefit from routine modernisation or redecoration to match the new finishes.
Overall this is a well-proportioned family home with immediate usable space and further potential for adjustment to specific household needs — ideal for buyers looking for a ready-to-live-in house with scope to personalise.
5 bedroom detached house for sale in Chawton Close, Fleet, Hampshire, GU51 — £850,000 • 5 bed • 3 bath • 2154 ft²
5 bedroom detached house for sale in Hawkins Way, Fleet, GU52 — £875,000 • 5 bed • 3 bath • 1555 ft²
4 bedroom detached house for sale in Coombe Drive, Fleet, Hampshire, GU51 — £750,000 • 4 bed • 1 bath • 1150 ft²
4 bedroom house for sale in Courtmoor Avenue, Fleet, GU52 — £1,195,000 • 4 bed • 3 bath • 2898 ft²
3 bedroom link detached house for sale in Guernsey Drive, Fleet, Hampshire, GU51 — £565,000 • 3 bed • 1 bath • 1308 ft²
5 bedroom detached house for sale in Polkerris Way, Church Crookham, GU52 — £700,000 • 5 bed • 3 bath • 1844 ft²










































































































































































