**Standout Features:**
- Grade II listed Victorian townhouse with original features
- Stunning sea views of the English Channel
- Generous five-bedroom layout with ample natural light
- Beautifully maintained front garden, perfect for gardening enthusiasts
- Close proximity to Ramsgate’s Royal Harbour
**Concerns:**
- Listed status may limit renovation opportunities
- High crime rate in the local area
- Solid brick construction with no insulation (assumed)
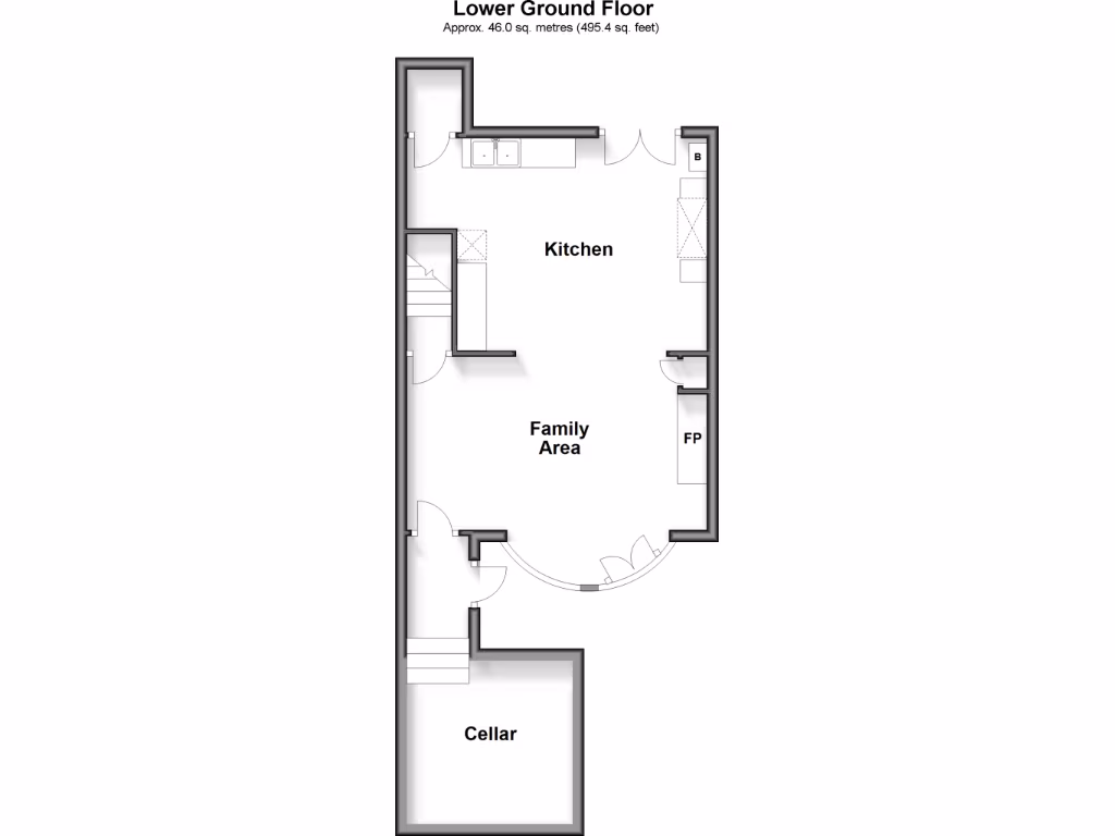
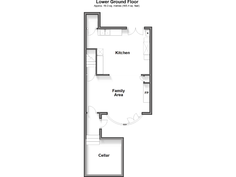
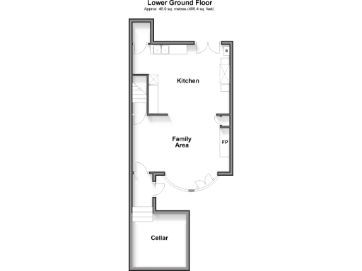
Discover a rare opportunity to own this exquisite Grade II listed Victorian townhouse, nestled just moments from the picturesque Ramsgate Royal Harbour. Boasting five spacious bedrooms and high ceilings adorned with authentic period features, this home combines classic charm with modern comfort. The generous front garden invites you to create your own floral paradise, while the stunning sea views offer a serene backdrop to daily life.
The property has been presented to a high standard, comfortably accommodating family living or investment potential. However, prospective buyers should consider the listed status, which may impose certain renovation limitations, as well as the higher crime rates in the area. Overall, this home represents an exceptional chance to embrace a piece of history with immense future potential, making it a desirable choice for families looking to settle in a vibrant community. Don’t miss out—properties like this are rarely available!
3 bedroom terraced house for sale in Prospect Terrace, Ramsgate, Kent, CT11 — £950,000 • 3 bed • 2 bath • 3062 ft²
3 bedroom house for sale in Abbots Hill, Ramsgate, CT11 — £480,000 • 3 bed • 2 bath • 1505 ft²
5 bedroom terraced house for sale in Kent Terrace, Ramsgate, Kent, CT11 — £625,000 • 5 bed • 2 bath • 2346 ft²
5 bedroom terraced house for sale in Prospect Terrace, Ramsgate, CT11 — £850,000 • 5 bed • 2 bath • 2852 ft²
5 bedroom terraced house for sale in Prospect Terrace, Ramsgate, Kent, CT11 — £950,000 • 5 bed • 4 bath • 5163 ft²
3 bedroom terraced house for sale in Abbots Hill, Ramsgate, CT11 — £450,000 • 3 bed • 1 bath • 1492 ft²


































































