Rare approved plans to transform into a substantial family home in peaceful countryside.
- Approved two-storey extension planning consent (Ref: 4236/21/HHO)
- Countryside views from an elevated, large plot
- Spacious kitchen/dining room and separate reception space
- Large stone outbuildings/workshop providing extra storage
- Ample off-street parking via gravel driveway
- Oil boiler heating, wood burner; EPC rating F
- Septic tank drainage and slow broadband speeds
- Original stone walls likely uninsulated; renovation needed
A characterful three-bedroom stone cottage set on a large plot with wide countryside views, offering peaceful rural living and immediate parking. The current accommodation includes a spacious kitchen/dining room, cosy living room with wood burner, a useful playroom/study and generous traditional stone outbuildings ideal for workshop or storage.
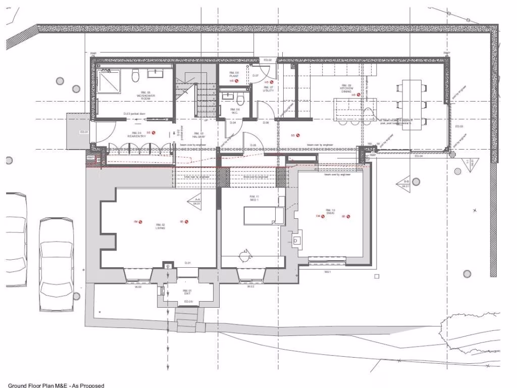
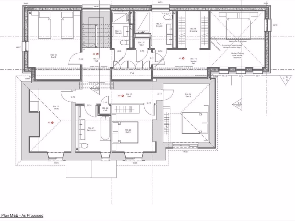
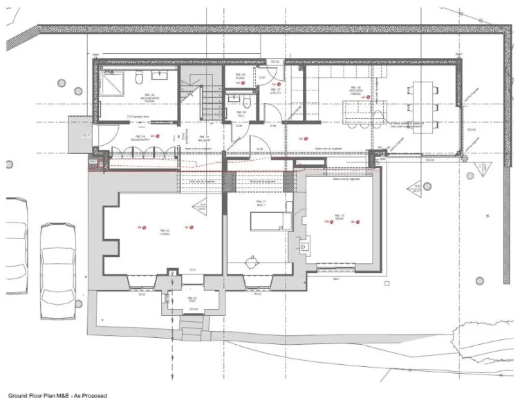
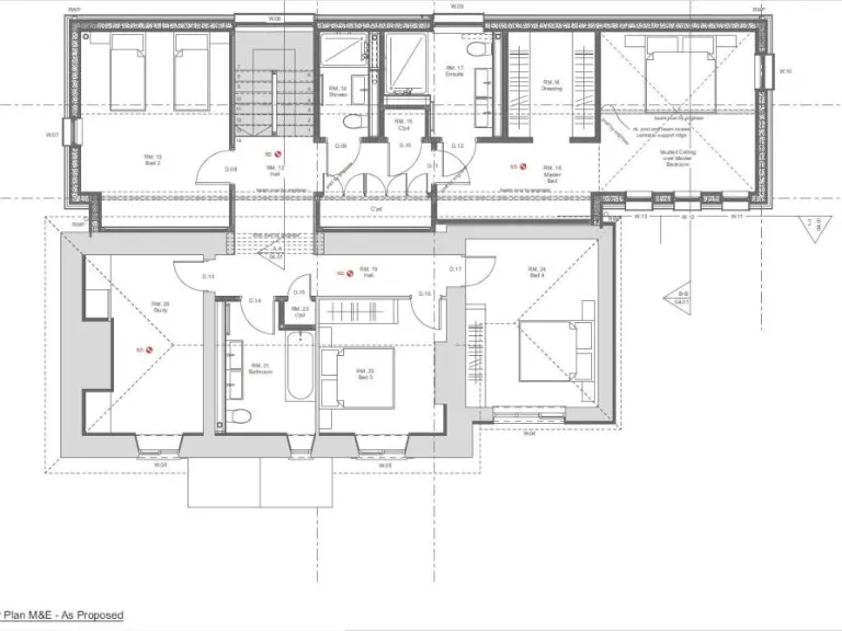
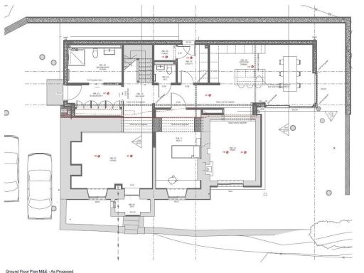
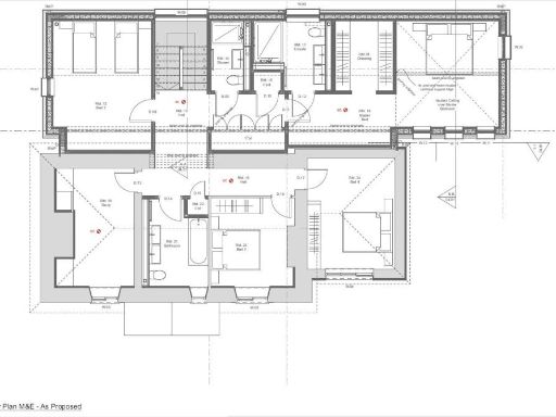
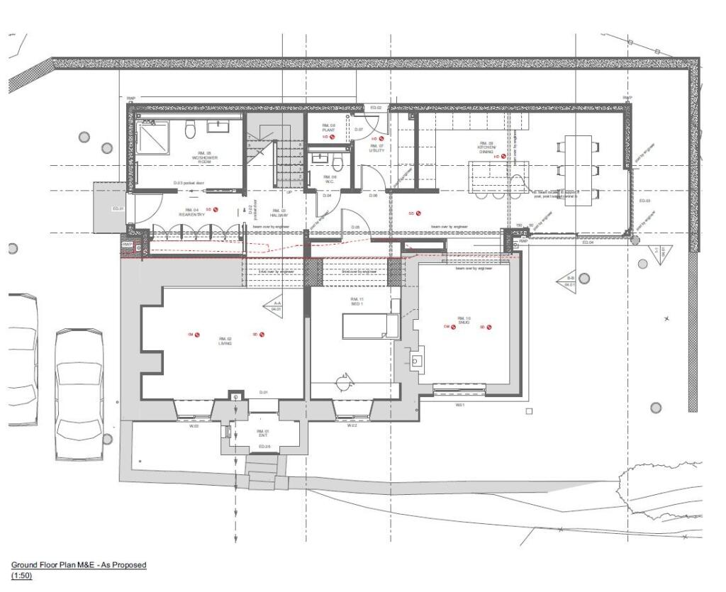
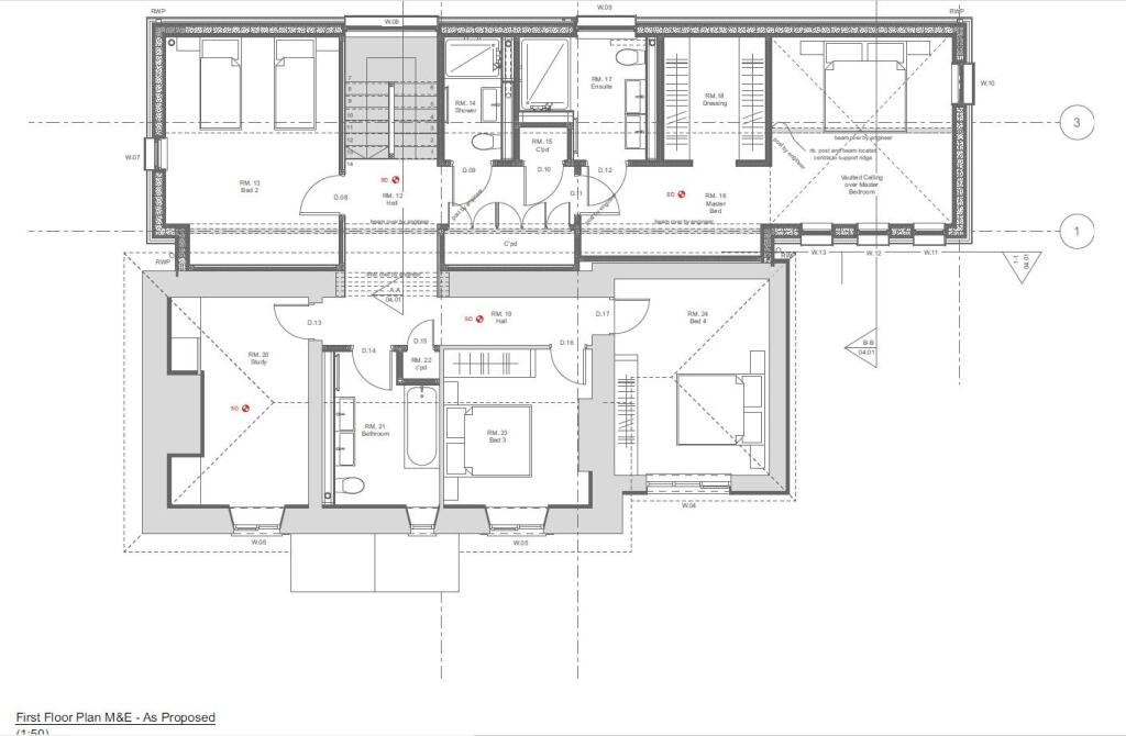
A major selling point is the approved planning consent (Ref: 4236/21/HHO) for a two-storey rear extension and landscaping. Those plans would reconfigure the ground floor and create a substantial six-bedroom home with three bath/shower rooms, a new kitchen, breakfast room and utility — a rare opportunity to significantly increase space and value.
Buyers should note practical matters plainly: the property runs on oil-fired heating with a boiler and wood burner, has an EPC rating of F, and the original granite walls are assumed uninsulated — improvement works will be needed to raise energy efficiency. Drainage is via a septic tank and broadband speeds are slow, which may affect those working from home.
Situated about a mile from East Allington with primary schooling nearby and regular bus links to Kingsbridge and Totnes, the house balances rural tranquillity with accessible amenities. The plot and approved plans offer clear scope for those wanting a character home with considerable extension potential, but expect further costs to upgrade services, insulation and energy performance.
2 bedroom cottage for sale in West Charleton, Kingsbridge, TQ7 — £295,000 • 2 bed • 2 bath • 865 ft²
5 bedroom detached house for sale in East Allington, Totnes, TQ9 — £650,000 • 5 bed • 3 bath • 3551 ft²
4 bedroom property for sale in Totnes, TQ9 — £755,000 • 4 bed • 2 bath • 2226 ft²
2 bedroom detached house for sale in Gibb Hill, Lutton, Ivybridge, Devon, PL21 — £350,000 • 2 bed • 1 bath • 844 ft²
4 bedroom semi-detached house for sale in Goveton, Kingsbridge, TQ7 — £825,000 • 4 bed • 2 bath • 2355 ft²
4 bedroom detached house for sale in Saffron Park, Kingsbridge, TQ7 — £425,000 • 4 bed • 2 bath • 1228 ft²














































































