Elevated five-bedroom home on generous grounds, ideal for family renovation project.
- Elevated position with far-reaching valley views
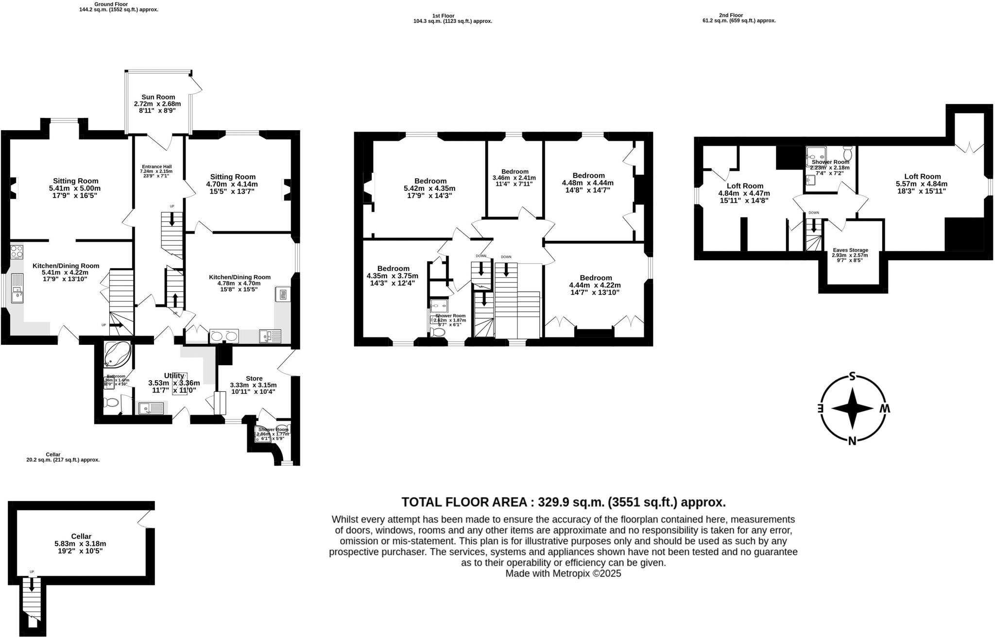
- Five bedrooms plus versatile loft space
- Three reception rooms, large overall footprint (3,551 sqft)
- Gardens and grounds approx 0.67 acres; extra 0.86 acres available separately
- Ample off-street parking and outbuildings visible
- Property requires full refurbishment throughout
- Very slow broadband; average mobile signal
- Council tax above average; hamlet location, limited immediate services
Set on an elevated plot in peaceful East Allington, this substantial five-bedroom detached home offers classic period character and far-reaching valley outlooks. The layout includes three reception rooms, generous bedroom space and a versatile loft — a solid canvas for a family seeking breathing space and rural privacy.
The property requires full refurbishment, which presents scope to modernise the interiors while retaining historic features such as slate exterior, tall ceilings and large windows. Gardens and grounds extend to about 0.67 acres with ample off-street parking; a further 0.86 acres is available separately for those wanting extra paddock or grazing land.
Practical considerations: broadband speeds are very slow and mobile signal is average, so planned upgrades may be needed for remote working. Council tax is above average and the house sits in a hamlet setting, offering tranquillity but some isolation from services. Overall this is a characterful, large family home with clear potential for value-added renovation.
5 bedroom detached house for sale in Avonwick, South Brent, TQ10 — £950,000 • 5 bed • 2 bath • 3000 ft²
4 bedroom property for sale in Totnes, TQ9 — £625,000 • 4 bed • 2 bath • 2226 ft²
3 bedroom detached house for sale in East Allington, Totnes, TQ9 — £535,000 • 3 bed • 1 bath • 1282 ft²
4 bedroom semi-detached house for sale in Goveton, Kingsbridge, TQ7 — £825,000 • 4 bed • 2 bath • 2355 ft²
4 bedroom detached house for sale in Long Lane, Shaldon, Devon, TQ14 — £750,000 • 4 bed • 2 bath • 1847 ft²
4 bedroom house for sale in South Pool, Kingsbridge, TQ7 — £2,000,000 • 4 bed • 4 bath • 2164 ft²


























































































































































