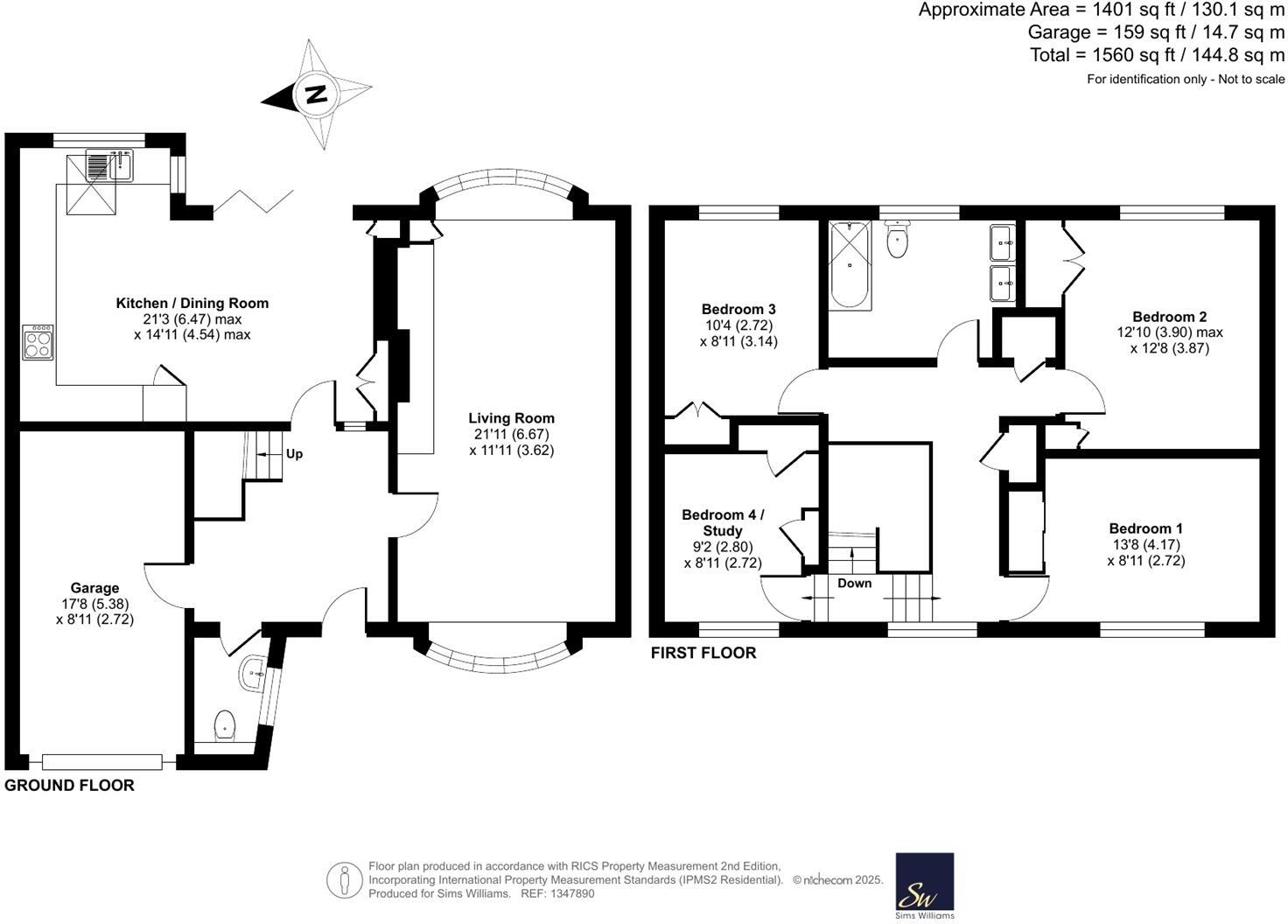
Stylish four-bedroom home with garage and private courtyard, close to shops and schools.
- Newly refurbished four-bedroom town house in central Arundel
- Open-plan kitchen/dining with bifold doors to walled courtyard
- Double-aspect sitting room with bay window
- Integral garage with power and electric roller door
- Three double bedrooms with fitted wardrobes
- One family bathroom only; may be limiting for some families
- Small plot and limited outdoor space typical of town centre
- Cavity walls assumed uninsulated; consider thermal upgrades
Set on an elevated plot in the heart of historic Arundel, this newly refurbished four-bedroom house balances contemporary living with period character. The ground-floor open-plan kitchen and dining room opens through bifold doors to a private walled courtyard, creating seamless indoor‑outdoor flow ideal for entertaining. A double-aspect sitting room with bay window brings plentiful natural light. The integral garage is practical and fitted with power and an electric roller door.
Upstairs are three double bedrooms with fitted wardrobes and a versatile fourth bedroom currently used as a study. The stylish family bathroom features twin vanity basins and a D-shaped bath with shower over. Modern radiators and double glazing have been installed throughout, and the boiler and heating run on mains gas. For families, excellent local schools and immediate access to shops, cafés and Arundel’s landmarks are major draws.
Buyers should note the plot and outdoor space are small, typical of a central town location, and there is only one family bathroom. The property is freehold and presented move‑in ready after recent refurbishment, but the cavity walls show no historic insulation (assumed), which may be a consideration for those prioritising maximum thermal efficiency. Broadband speeds are average; mobile signal is excellent.
Overall this is a stylish, well-located town home that will suit buyers seeking central convenience, characterful details and low-maintenance living. It represents a rare central Arundel opportunity with garage parking and a private courtyard — ideal for families wanting proximity to schools and amenities, or professionals seeking a smart town-centre base.
4 bedroom terraced house for sale in Nineveh Shipyard, Arundel, BN18 — £730,000 • 4 bed • 2 bath • 1290 ft²
3 bedroom semi-detached house for sale in St. Marys Gate Mews, London Road, Arundel, BN18 — £600,000 • 3 bed • 1 bath • 862 ft²
4 bedroom terraced house for sale in Nineveh Shipyard, Arundel, BN18 — £900,000 • 4 bed • 3 bath • 1477 ft²
Detached house for sale in Anne Howard Gardens, Arundel, West Sussex, BN18 — £900,000 • 1 bed • 1 bath • 1634 ft²
3 bedroom end of terrace house for sale in Crossbush Lane, Crossbush, Arundel, West Sussex, BN18 — £375,000 • 3 bed • 1 bath • 921 ft²
3 bedroom end of terrace house for sale in Brewery Hill, Arundel, BN18 — £660,000 • 3 bed • 2 bath • 970 ft²


























































