Move-in ready three-bed with parking and cathedral views, moments from Arundel High Street.
Recently refurbished throughout, move-in ready
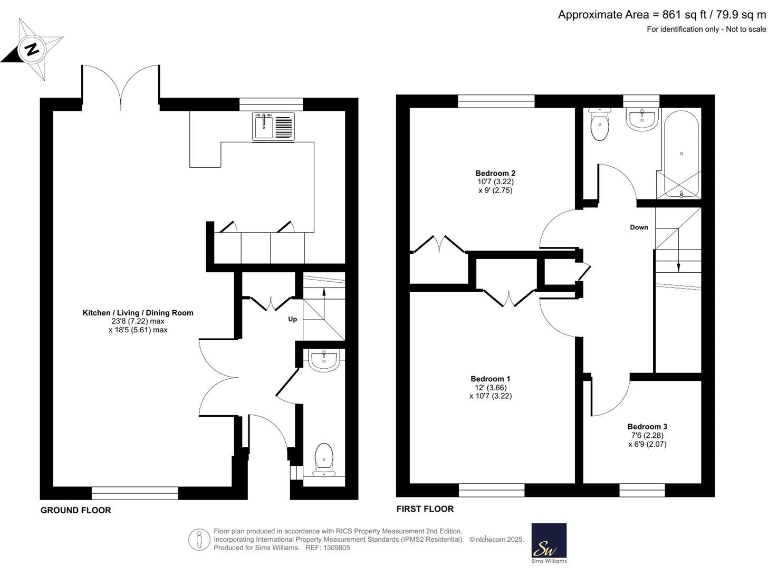
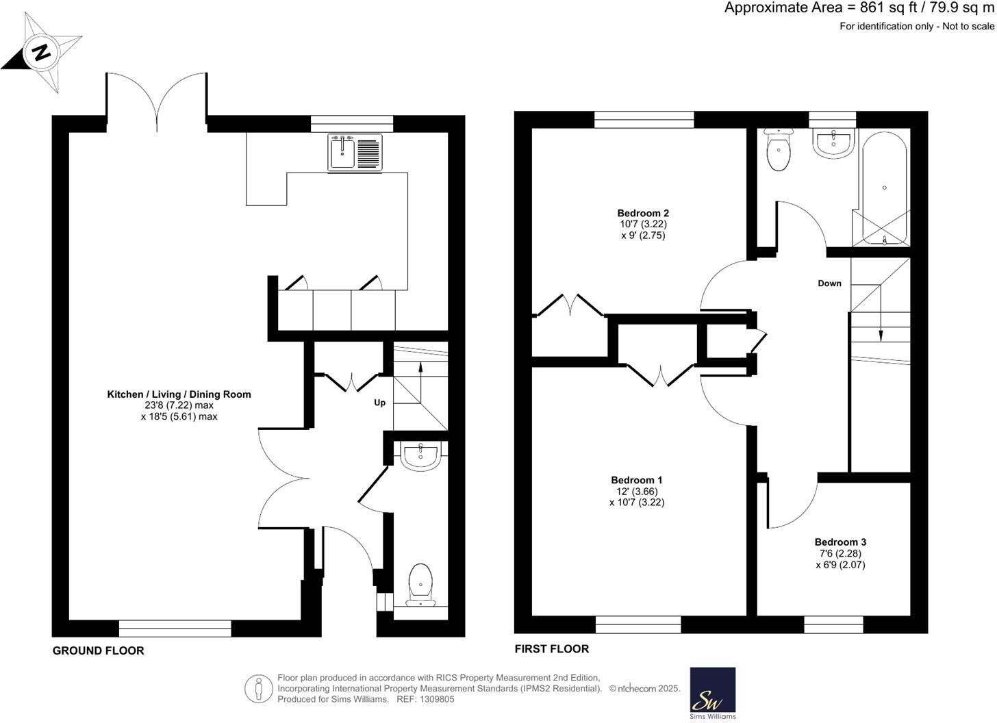
A bright, recently refurbished three-bedroom end-of-terrace in central Arundel, ideal for families who value town-centre convenience and characterful views. The ground floor’s open-plan living, dining and bespoke kitchen opens via bifold doors onto a landscaped courtyard, creating easy indoor–outdoor flow for everyday life and entertaining.
Upstairs offers two generous double bedrooms with fitted wardrobes and a third single bedroom suited to a child, home office or guest room. The modern family bathroom is practical and well presented. Outside, there’s a wrap-around garden, low-maintenance paved areas and off-street parking — a rare convenience in this location.
The property is freehold and chain free, recently renovated throughout with modern fixtures, double glazing and gas central heating. Its town-centre location places schools, shops, cafés and transport links within easy reach, while cathedral views add a distinctive local charm.
Buyers should note there is one family bathroom only and broadband speeds in the immediate area are slow. Council tax is above average. Overall, this home suits families or buyers seeking a move-in ready, low-maintenance town house with parking and strong local amenities.
3 bedroom end of terrace house for sale in Brewery Hill, Arundel, BN18 — £660,000 • 3 bed • 2 bath • 970 ft²
4 bedroom house for sale in King Street, Arundel, BN18 — £725,000 • 4 bed • 1 bath • 1401 ft²
2 bedroom end of terrace house for sale in Mount Pleasant, Arundel, BN18 — £375,000 • 2 bed • 1 bath • 749 ft²
3 bedroom terraced house for sale in Surrey Street, Arundel, West Sussex, BN18 — £525,000 • 3 bed • 2 bath • 1200 ft²
2 bedroom end of terrace house for sale in Orchard Place, Arundel, BN18 — £465,000 • 2 bed • 1 bath • 953 ft²
3 bedroom end of terrace house for sale in Surrey Wharf, Arundel, BN18 — £500,000 • 3 bed • 2 bath • 965 ft²


















































































