Walk to beach, schools and town from a well-located three-bedroom home..
Private entrance and spacious reception rooms
Modern kitchen and double glazing installed post-2002
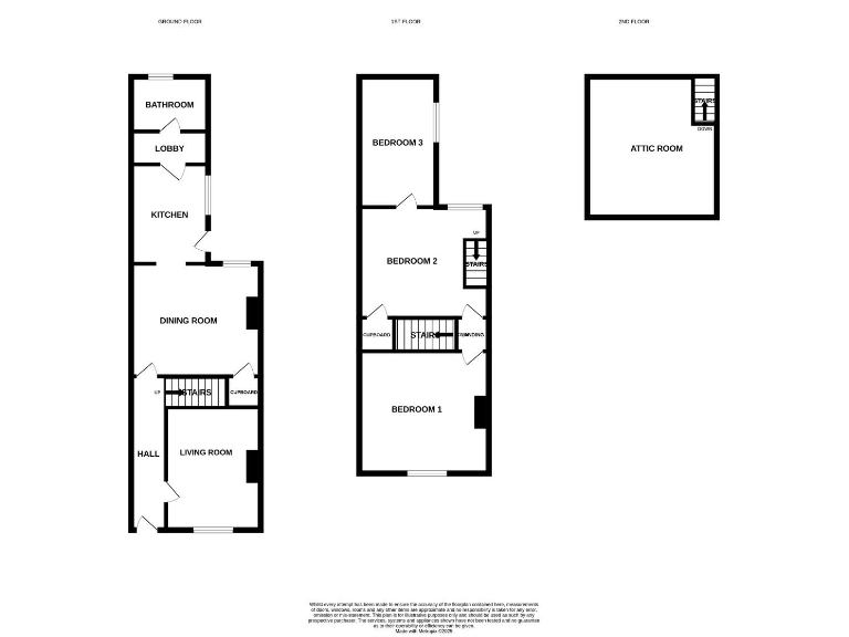
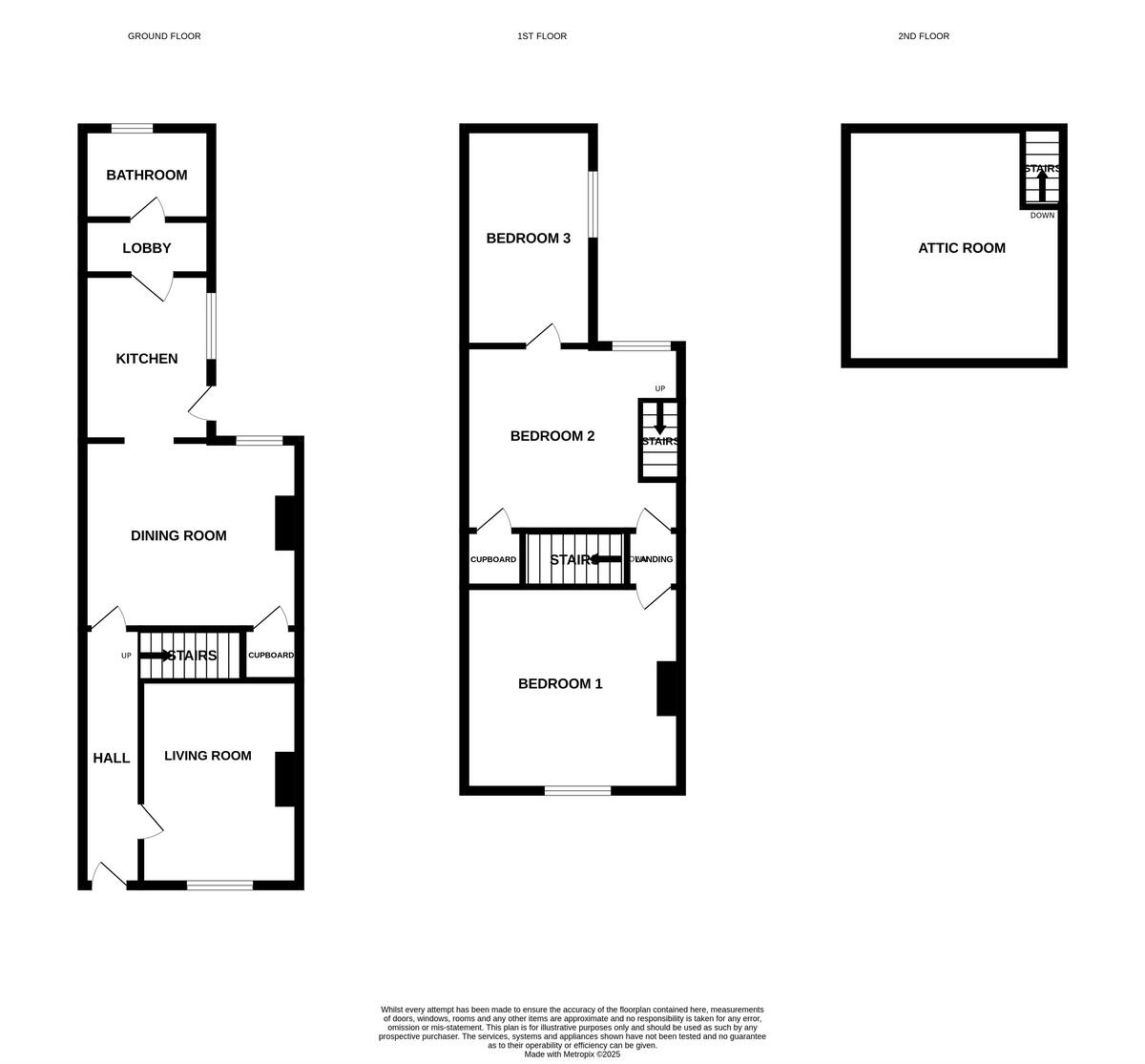
Three bedrooms plus converted attic (possible restricted headroom)
West-facing courtyard garden, small plot
Single ground-floor bathroom for three bedrooms
Solid brick walls likely without cavity insulation
Very deprived area with high local crime rates
Fast broadband, excellent mobile signal, very low council tax
This mid-terrace Victorian property offers spacious reception rooms, a modern kitchen and three bedrooms, including a converted attic. Its west-facing courtyard provides a sunny outdoor space and the house sits within easy walking distance of Great Yarmouth town centre, beach and several good-rated primary and secondary schools.
Practical positives include double glazing installed after 2002, mains gas central heating, fast broadband and excellent mobile signal — useful for families and those who work from home. Council tax is very low, and the overall size (about 1,012 sq ft) feels generous for an average-sized terrace.
Buyers should note material issues frankly: the property sits in a very deprived area with high local crime rates, which may affect resale or rental prospects. The party walls are solid brick with no known cavity insulation (as built), so the house will benefit from improved wall insulation; the converted attic may have restricted headroom and could need formal Building Regulation sign-off.
Accommodation is functional but not luxurious: there is only one bathroom on the ground floor for three bedrooms, and the small plot limits garden expansion. For buyers willing to accept location realities and invest in targeted upgrades, this house offers good value and clear potential to add comfort and energy efficiency.
3 bedroom terraced house for sale in Alderson Road, Great Yarmouth, NR30 — £150,000 • 3 bed • 2 bath • 1012 ft²
2 bedroom terraced house for sale in Victoria Street, Great Yarmouth, NR30 — £140,000 • 2 bed • 1 bath • 582 ft²
3 bedroom terraced house for sale in Hammond Road, Great Yarmouth, NR30 — £180,000 • 3 bed • 2 bath • 991 ft²
3 bedroom terraced house for sale in Palgrave Road, Great Yarmouth, NR30 — £160,000 • 3 bed • 2 bath • 883 ft²
3 bedroom end of terrace house for sale in Palgrave Road, Great Yarmouth, NR30 — £175,000 • 3 bed • 2 bath
3 bedroom terraced house for sale in Elsie Road, Great Yarmouth, NR31 — £130,000 • 3 bed • 1 bath • 637 ft²


























































