Move-in-ready period house with sunny garden and two bathrooms.
Three bedrooms plus separate dressing room adaptable as nursery or office
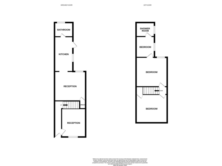
This three-bedroom end-of-terrace in North Great Yarmouth offers straightforward, family-friendly living across an average-sized 937 sqft layout. The ground floor provides a welcoming hall, a modern living room with wooden flooring and recessed lighting, plus a downstairs bathroom. Upstairs are two double bedrooms and a separate dressing room that would work well as a nursery or home office, plus an upstairs shower room.
Practical features include mains gas central heating with a boiler and radiators, double glazing installed before 2002, and a west-facing rear garden that catches afternoon sun. The property is freehold and constructed around 1900–1929, giving it period character while recent renovations to windows and interior finishes create a move-in-ready feel.
Notable negatives are plain and important: the area is very deprived with a high local crime rate, and the solid brick walls are assumed uninsulated which may affect running costs and comfort. The plot is small and the house is compact for growing families; further insulation or energy-efficiency work may be needed. Broadband is fast and transport and local amenities are nearby, with several Good-rated primary and secondary schools within reach.
This home suits buyers seeking an affordable, character-filled property near local services and schools, and who are comfortable with modest outdoor space and some likely improvement work to boost energy efficiency.
3 bedroom terraced house for sale in Alderson Road, Great Yarmouth, NR30 — £160,000 • 3 bed • 1 bath • 1012 ft²
3 bedroom terraced house for sale in Gatacre Road, Great Yarmouth, NR31 — £130,000 • 3 bed • 1 bath • 716 ft²
2 bedroom terraced house for sale in Victoria Street, Great Yarmouth, NR30 — £140,000 • 2 bed • 1 bath • 582 ft²
3 bedroom terraced house for sale in Palgrave Road, Great Yarmouth, NR30 — £160,000 • 3 bed • 2 bath • 883 ft²
3 bedroom end of terrace house for sale in Fisher Avenue, Great Yarmouth, NR30 — £300,000 • 3 bed • 1 bath
3 bedroom end of terrace house for sale in Russell Road, Great Yarmouth, NR30 — £160,000 • 3 bed • 2 bath • 1051 ft²


























































