Entry-level home with garden and renovation potential for hands-on buyers.
Chain free three-bedroom Victorian mid-terrace
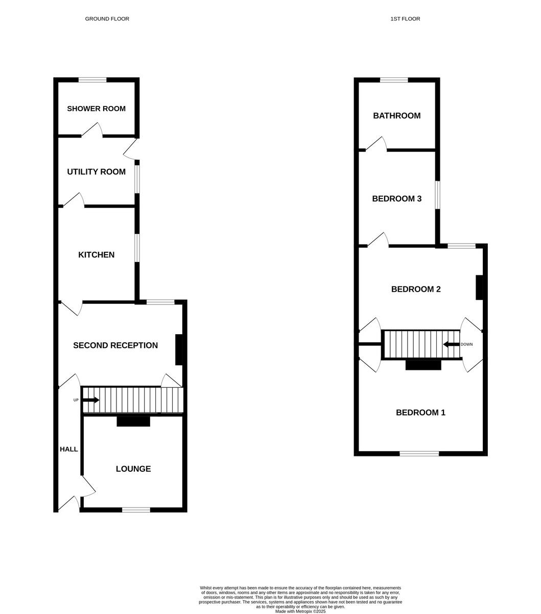
A surprisingly spacious Victorian mid-terrace offering three bedrooms, two reception rooms and a good-sized rear garden — an attractive entry-level home for first-time buyers. The property is chain free and comes with practical extras including a boarded and insulated loft, double glazing installed since 2002, and two bathrooms (including a modern downstairs shower).
The house requires modernisation and cosmetic updating throughout, presenting an opportunity to add value and personalise the space. Construction is solid brick with no wall insulation assumed, so consider energy-efficiency improvements. The street-level rooms are comfortable in size and the layout supports flexible living: separate lounge and dining or a home office setup.
Location and local conditions are important to note. The property lies in a very deprived area with a high recorded crime rate and a transitional neighbourhood profile. These factors may affect long-term rental demand and resale values, though local schools and a wide range of amenities are nearby.
For an owner-occupier stepping off the rental ladder or an investor looking for a renovation project, this house offers practical bones, useful storage and garden space in a compact, inner-town plot. Be realistic about refurbishment costs and local market considerations before proceeding.
3 bedroom end of terrace house for sale in Olive Road, Cobholm, NR31 — £130,000 • 3 bed • 1 bath • 1145 ft²
3 bedroom terraced house for sale in Isaacs Road, Great Yarmouth, NR31 — £130,000 • 3 bed • 1 bath • 972 ft²
3 bedroom terraced house for sale in Alderson Road, Great Yarmouth, NR30 — £170,000 • 3 bed • 1 bath • 1055 ft²
3 bedroom terraced house for sale in Ordnance Road, Great Yarmouth, NR30 — £100,000 • 3 bed • 3 bath • 722 ft²
3 bedroom end of terrace house for sale in Alderson Road, Great Yarmouth, NR30 — £160,000 • 3 bed • 2 bath • 842 ft²
3 bedroom end of terrace house for sale in East Road, Great Yarmouth, NR30 — £140,000 • 3 bed • 1 bath • 765 ft²


















































