Character-filled four-bedroom with extended garden and unique railway caravan.
Late-Victorian semi with strong period features and large sash windows
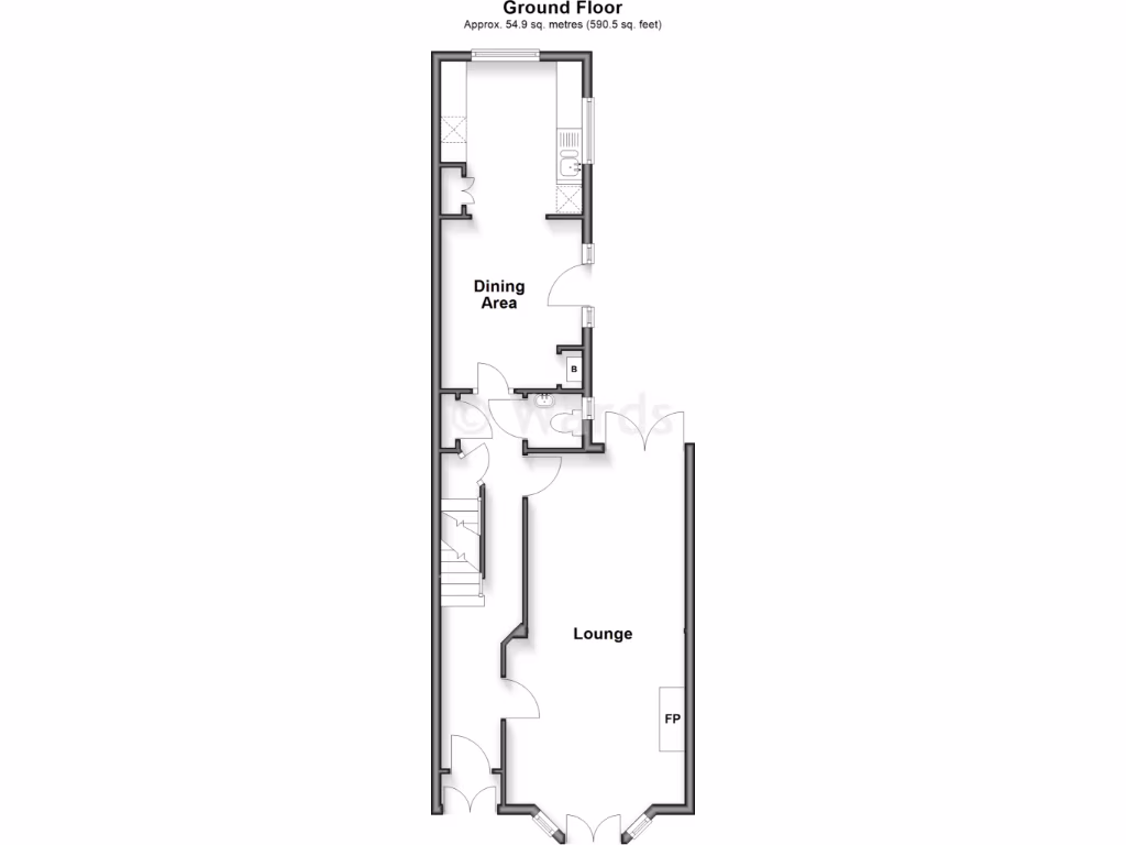
This late-Victorian semi offers authentic period character with practical family space across four bedrooms. A spacious lounge with a brick fireplace and French doors opens onto a long rear garden, while the open-plan kitchen/diner provides a bright hub for everyday living and entertaining. The main bedroom includes an en-suite and the top-floor room serves well as a home office, hobby room or occasional fourth bedroom.
The property sits on a modest overall footprint (approximately 754 sq ft) but benefits from an extended rear plot acquired from the neighbouring church, creating generous outdoor space and a distinctive old railway caravan that adds charm and wildlife appeal. There is also a cellar that presents storage or conversion potential, subject to necessary works and approvals.
Practical considerations: the house retains double glazing installed before 2002, cavity walls assumed without insulation and the cellar and older elements will likely need modernising. Buyers should factor in potential upgrade costs (insulation, windows, any cellar works) and check planning/building approval history for prior extensions. Freehold tenure, mains gas boiler heating and very low local crime make this a sensible family purchase in a calm, well-served area close to schools and local amenities.
4 bedroom semi-detached house for sale in Ethelbert Road, Birchington, Kent, CT7 — £297,500 • 4 bed • 2 bath • 754 ft²
4 bedroom semi-detached house for sale in Ellington Road, Ramsgate, Kent, CT11 — £400,000 • 4 bed • 2 bath • 1091 ft²
3 bedroom terraced house for sale in London Road, Deal, Kent, CT14 — £305,000 • 3 bed • 1 bath • 829 ft²
2 bedroom semi-detached house for sale in Stanley Place, Ramsgate, Kent, CT11 — £280,000 • 2 bed • 1 bath • 712 ft²
4 bedroom detached house for sale in Manston Road, Ramsgate, Kent, CT11 — £475,000 • 4 bed • 1 bath • 1077 ft²
3 bedroom semi-detached house for sale in Mays Road, Ramsgate, Kent, CT11 — £300,000 • 3 bed • 1 bath • 958 ft²










































































