Newly refurbished terrace with large private garden and characterful interiors near schools and transport.
Large, well-established rear garden with deck, pond and summerhouse
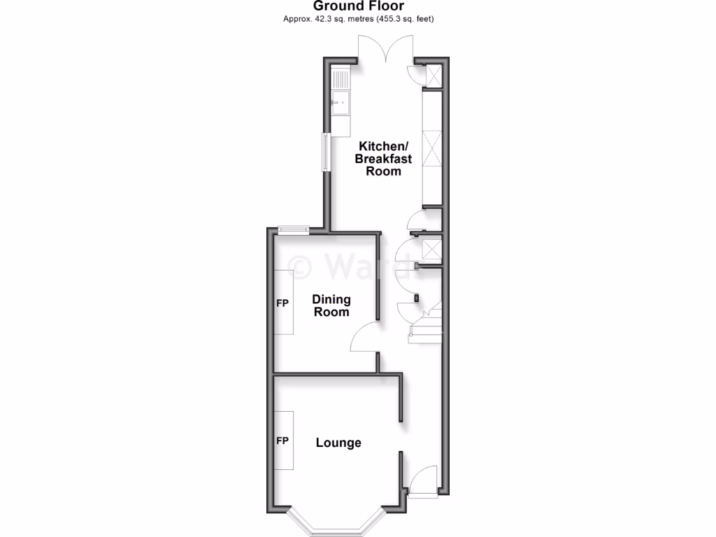
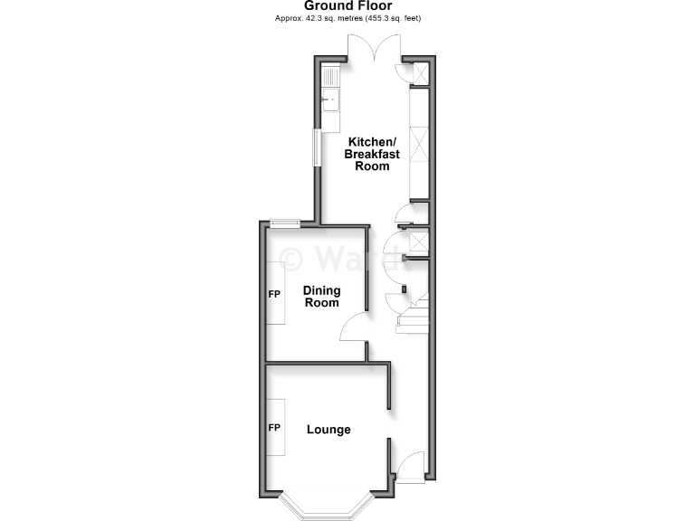
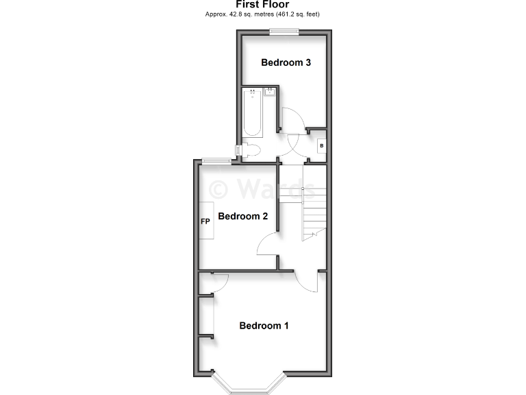
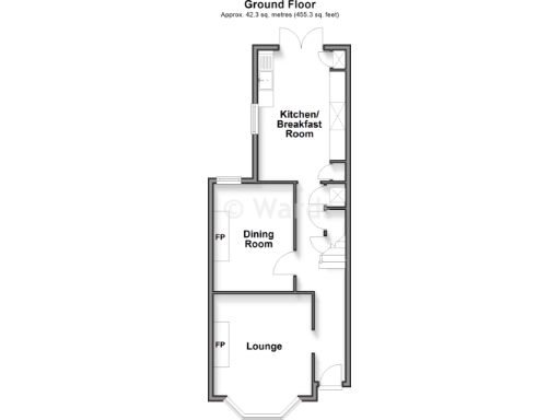
This newly refurbished three-bedroom end-terrace blends Victorian character with contemporary finishes, making it ideal for growing families. Exposed brickwork, restored floorboards and cast-iron radiators give strong period charm, while the shaker kitchen with stone floors and a modern bathroom provide everyday comfort.
The rear garden is a standout: well-established, divided into destination seating areas with a large deck, pond and summerhouse — great for children and outdoor entertaining. The property’s room sizes are practical, with a generous principal bedroom and an open living/dining flow suited to family life.
Practicalities to note: the home is compact overall (approx. 754 sq ft) and has just one bathroom. Parking is on-street and the area scores as more deprived than average. Construction suggests cavity walls without confirmed insulation, which may present future energy-efficiency improvement opportunities. Public transport is excellent, with a major bus route on London Road.
This house offers immediate move-in quality with scope for further improvement to boost comfort and savings. It suits buyers wanting character, a sizeable private garden and a convenient town location close to primary schools and transport links.
3 bedroom detached house for sale in Station Drive, Deal, Kent, CT14 — £325,000 • 3 bed • 1 bath • 586 ft²
3 bedroom terraced house for sale in Margate Road, Ramsgate, Kent, CT12 — £300,000 • 3 bed • 2 bath • 1314 ft²
3 bedroom terraced house for sale in The Grove, Deal, Kent, CT14 — £420,000 • 3 bed • 1 bath • 625 ft²
3 bedroom end of terrace house for sale in London Road, Deal, Kent, CT14 9PS, CT14 — £305,000 • 3 bed • 1 bath
3 bedroom terraced house for sale in Dane Park Road, Ramsgate, CT11 7LR, CT11 — £340,000 • 3 bed • 1 bath • 1126 ft²
3 bedroom terraced house for sale in The Grove, Deal, Kent, CT14 — £375,000 • 3 bed • 1 bath • 923 ft²














































