Spacious garden, cellar and Lifetime Lease saving potential for over-60s.
Victorian character with high ceilings and period bay windows
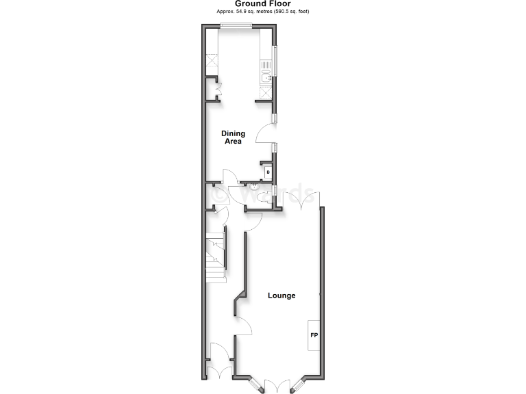
Built in the late 1800s, this Victorian semi-detached home delivers period character, high ceilings and a generous lounge with a brick fireplace and French doors to the garden. The property includes an open-plan kitchen/dining area, cellar for storage or conversion, and four rooms laid out over three floors — flexible space for guests, hobbies or a home office.
The rear garden is a standout for the area, extended by an additional plot acquired from the neighbouring church and featuring an old railway caravan that adds character and wildlife interest. Practical benefits include mains gas central heating, double glazing (installed before 2002) and a freehold tenure. Council tax is described as affordable and the location sits in a low-crime, well-served town with good transport links and nearby amenities.
This house is offered through the Homewise Home for Life Lifetime Lease example: a guide Lifetime Lease price of £297,500 (typical saving around 33%) is shown for applicants aged 60+, compared with the full market price of £450,000. The actual Lifetime Lease price varies by age, circumstances and any share purchased (up to 50%). If not buying via Lifetime Lease the full market route remains available.
Practical drawbacks to note: the overall internal size is small (approximately 754 sq ft) for a four-bedroom property, decor is dated in places and the cavity walls are assumed to be uninsulated, so energy-efficiency improvements may be needed. Double glazing is older and some updating or redecoration will be required to restore or enhance original features. Buyers should verify all details, and check planning/consents where conversion potential is considered.
4 bedroom semi-detached house for sale in Ethelbert Road, Birchington, Kent, CT7 — £450,000 • 4 bed • 2 bath • 754 ft²
3 bedroom terraced house for sale in St. Luke's Avenue, Ramsgate, Kent, CT11 — £152,500 • 3 bed • 1 bath • 926 ft²
2 bedroom terraced house for sale in Mill Row, Birchington, Kent, CT7 — £165,500 • 2 bed • 1 bath • 636 ft²
2 bedroom terraced house for sale in St. Peter's Footpath, Margate, Kent, CT9 — £165,000 • 2 bed • 1 bath • 568 ft²
3 bedroom terraced house for sale in Nash Court Gardens, Margate, Kent, CT9 — £165,500 • 3 bed • 2 bath • 980 ft²
4 bedroom chalet for sale in Osborne Gardens, Herne Bay, Kent, CT6 — £264,500 • 4 bed • 2 bath • 1787 ft²










































































