Large 1930s family house with gardens, four-car parking and excellent schools nearby.
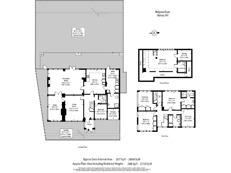
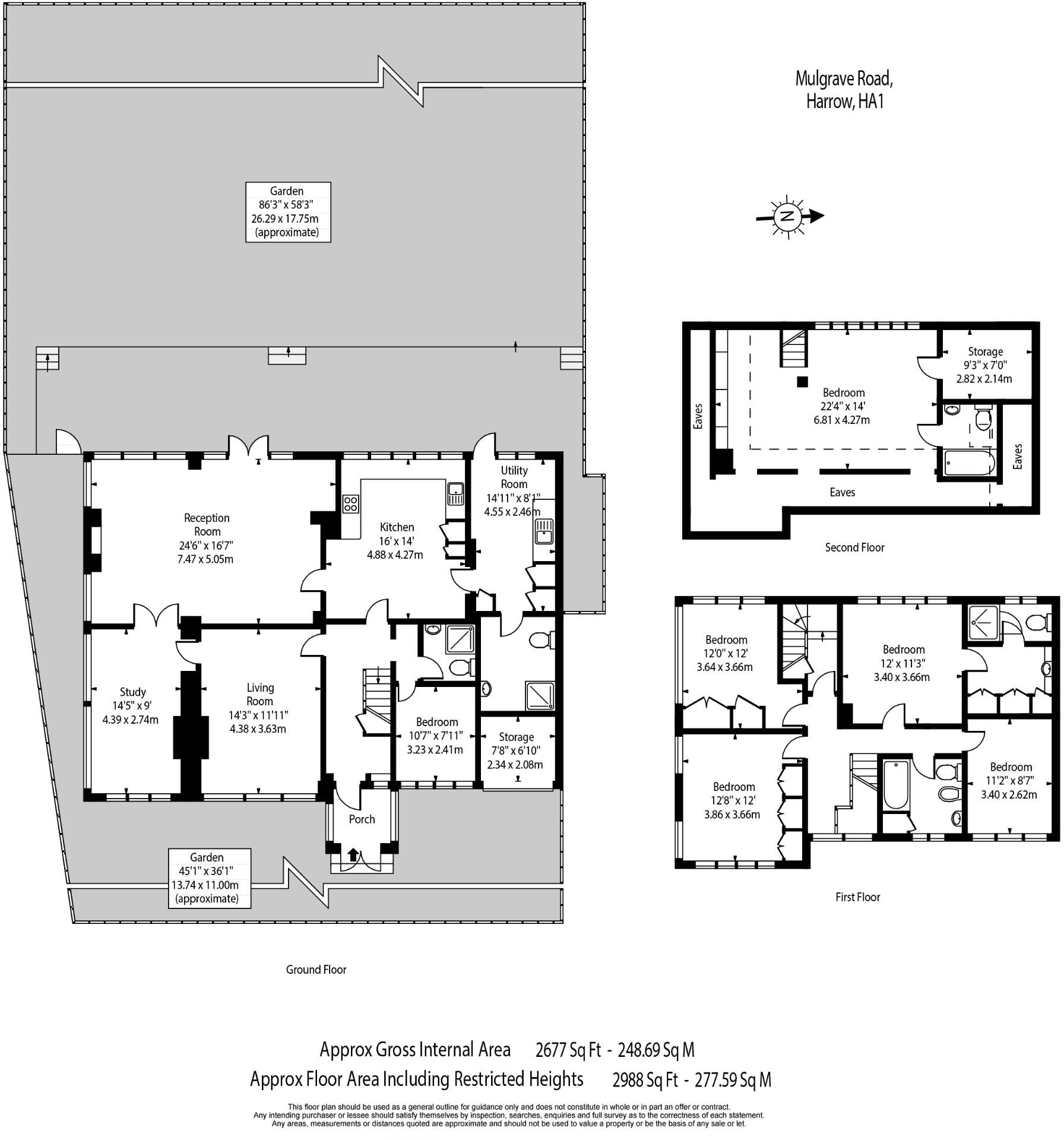
Six bedrooms including ground-floor bedroom
Five bathrooms, two ensuites and ground-floor wet room with underfloor heating
Approx. 2,677 sq ft (248 sqm) of flexible family accommodation
Large front and rear gardens; driveway parking for four cars
Detached 1930s character home with modern heating system
Excellent local schools and direct walks to Harrow on the Hill
Good transport links: Piccadilly, Bakerloo, Metropolitan and Overground
Double glazing install dates unknown; some areas may need updating
Set on the sought-after Pebworth Estate, this detached 1930s family house offers generous accommodation across three floors and a large private plot. The layout includes six bedrooms (one on the ground floor), three reception rooms plus a study option, and five bathrooms — two ensuite and a ground-floor wet room with underfloor heating. Off-street parking for four cars and well-kept front and rear gardens add practical family convenience.
The home balances period character with later upgrades: a gabled roof, fireplaces and double-glazed windows combine with modern heating (mains gas boiler and radiators). The top-floor principal bedroom benefits from elevated garden and neighbourhood views. At approximately 2,677 sq ft (248 sqm) gross internal area and freehold tenure, the house suits growing families who need flexible space and a large plot.
Location is a strong selling point. Public footpaths through Harrow School playing fields give direct green routes towards Harrow on the Hill. Good transport links include Sudbury Hill, South Kenton and Harrow on the Hill stations (Piccadilly, Bakerloo, Metropolitan and Overground connections). Several highly regarded schools are within reach, making the property attractive to families.
Notable practical points: the property dates from 1930 so some areas may benefit from updating or redecoration to suit contemporary tastes. The age and installation dates of double glazing are not confirmed, and buyers should verify specification and condition. Overall the house offers a rare combination of size, layout flexibility and location on a quiet road in an affluent, low-crime area.
7 bedroom detached house for sale in Littleton Road, Harrow, HA1 — £1,700,000 • 7 bed • 2 bath • 3000 ft²
6 bedroom detached house for sale in Sudbury Hill, Harrow on the Hill, Harrow, HA1 — £1,300,000 • 6 bed • 4 bath • 2460 ft²
5 bedroom house for sale in Georgian Way, Harrow, HA1 — £1,450,000 • 5 bed • 2 bath • 2723 ft²
4 bedroom detached house for sale in Mulgrave Road, Harrow, HA1 — £1,075,000 • 4 bed • 1 bath • 1754 ft²
4 bedroom detached house for sale in Amery Road, Harrow, HA1 — £1,150,000 • 4 bed • 1 bath • 2072 ft²
6 bedroom detached house for sale in Sudbury Hill, Harrow, HA1 — £1,345,000 • 6 bed • 4 bath • 2286 ft²






































































































































