Large family home with garage, gardens and strong school links.
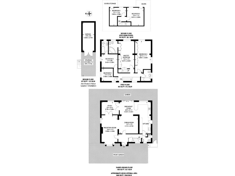
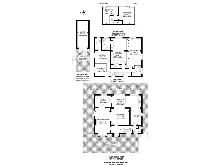
Six bedrooms across three floors, including two en-suites
Perched on the summit of Harrow on the Hill, this six-bedroom detached house offers generous family living across three floors with front and rear gardens, a garage and off-street parking for several cars. The bright fitted kitchen opens to a dining area and the home includes two en-suite bedrooms, an upstairs bathroom and a downstairs shower room — convenient for multi-generational or flexible family use.
Set on a large plot of roughly 2,460 sq ft and built in the mid-20th century, the property retains traditional character while offering scope for modernisation. Double glazing and mains gas central heating are in place, and the wide layout provides clear potential to reconfigure or extend (subject to planning).
Location is a key draw: Sudbury Hill station and Harrow on the Hill’s cafes and amenities are within easy reach, and a mix of well-regarded state and independent schools nearby suits families. The area is very affluent with excellent mobile and fast broadband speeds, and the site has no flood risk.
Practical points to note: the kitchen is dated and will likely need updating to match contemporary expectations, and some cosmetic works may be required across the house. The home offers strong long-term family potential for those prepared to invest in refurbishment.
6 bedroom detached house for sale in Kenton Road, Harrow, HA1 — £1,100,000 • 6 bed • 3 bath • 2595 ft²
5 bedroom detached house for sale in Peterborough Road, Harrow on the Hill, Harrow, HA1 — £4,000,000 • 5 bed • 5 bath • 2285 ft²
6 bedroom detached house for sale in Sudbury Hill, Harrow on the Hill, HA1 — £1,200,000 • 6 bed • 4 bath • 2531 ft²
6 bedroom detached house for sale in Watford Road, Harrow, London, HA1 — £1,200,000 • 6 bed • 4 bath • 3166 ft²
6 bedroom house for sale in Mulgrave Road, Harrow, Middlesex, HA1 — £1,450,000 • 6 bed • 5 bath • 2669 ft²
5 bedroom detached house for sale in Cavendish Avenue, Harrow, HA1 — £950,000 • 5 bed • 3 bath • 2416 ft²














































































































































































































































































































































































































































































































































































