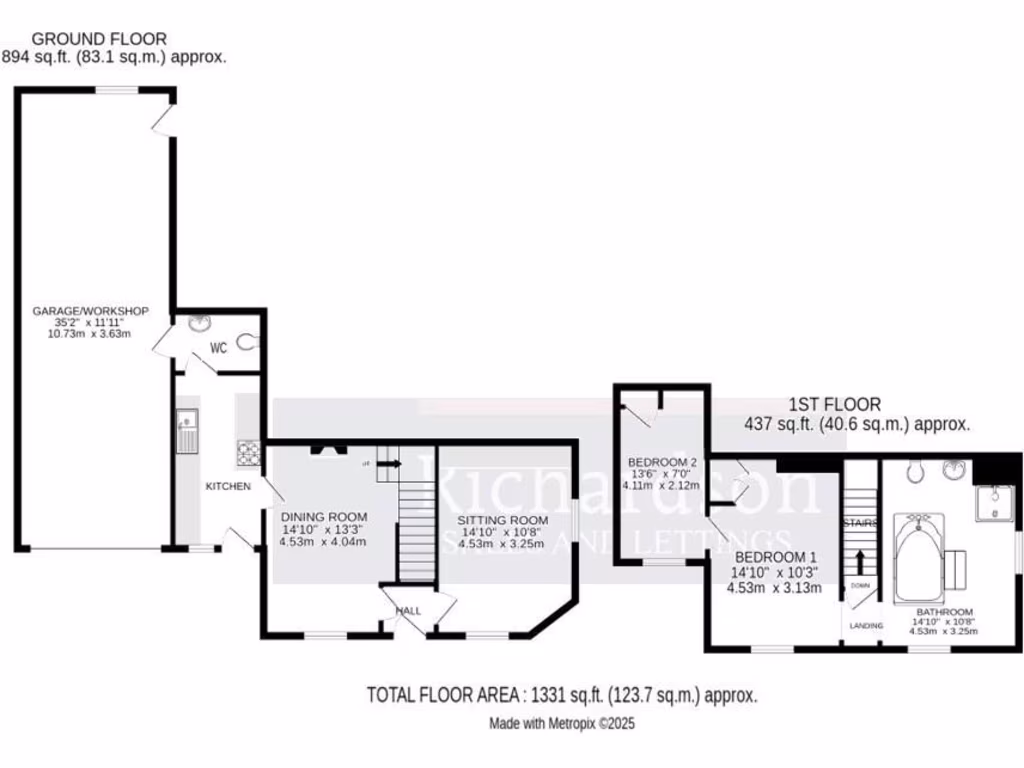
Spacious interior with huge garage and clear renovation potential.
- Short stroll to Stamford town centre
- Chain free; immediate vacant possession potential
- Large double-length garage with powered roller door
- Two reception rooms; period panelling in one room
- First floor can be reconfigured to 2 beds + ensuite (subject to planning)
- Property needs updating and modernisation throughout
- Solid brick walls likely without cavity insulation
- Small plot; limited visible external garden space
Set just a short stroll from Stamford town centre, this established two-bedroom semi offers immediate convenience and strong scope for improvement. The property comes chain free and benefits from a rare double-length garage with powered roller door and private driveway — excellent for storage, a workshop or secure parking in the town centre.
Interiors are spacious for the typology with two reception rooms (one with original panelling), a kitchen, cloakroom and a large first-floor bathroom. The current layout provides a double bedroom plus a single/box room; the first floor could be reconfigured to create two proper bedrooms and an ensuite, subject to planning, making this attractive for growing households or buyers seeking added rental value.
The house requires updating throughout: cosmetic refurbishment and potential modernisation are needed to maximise value. Construction is older solid brick with assumed no cavity insulation in the walls, so buyers should plan for energy-efficiency works. Practical positives include gas central heating, double glazing (fitted post-2002) and fast full-fibre broadband availability.
This property suits a buyer wanting a town-centre home they can improve, or an investor/DIY buyer looking for rooms for reconfiguration and a large garage asset. Note the small plot and limited visible external amenity; rear garden size is not clear and may be modest. All redevelopment or extension work would require planning consent.
4 bedroom terraced house for sale in St. Pauls Street, Stamford, PE9 — £500,000 • 4 bed • 2 bath • 1129 ft²
2 bedroom terraced house for sale in Redcot Gardens, Stamford, PE9 — £200,000 • 2 bed • 1 bath • 767 ft²
3 bedroom semi-detached house for sale in Holland Road, Stamford, PE9 — £290,000 • 3 bed • 1 bath • 1002 ft²
3 bedroom semi-detached house for sale in Newham Road, Stamford, PE9 — £290,000 • 3 bed • 1 bath • 571 ft²
2 bedroom semi-detached house for sale in Rock Road, Stamford, PE9 — £265,000 • 2 bed • 1 bath • 503 ft²
2 bedroom link detached house for sale in Star Lane Mews, Stamford, PE9 — £355,000 • 2 bed • 2 bath • 799 ft²






































