Affordable, low-maintenance home with long lease and parking.
Ground-floor two-bedroom open-plan apartment with Juliet balcony
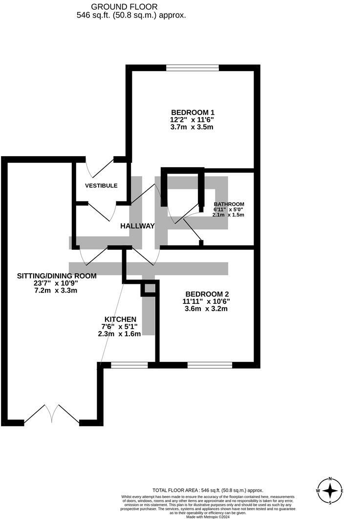
A bright, ground-floor two-bedroom apartment offering efficient open-plan living across approximately 546 sq ft. The layout includes an open-plan living/dining/kitchen with a Juliet balcony, two double bedrooms (one with fitted wardrobes) and a three-piece bathroom. Its size and simple, modern finishes make it well suited to first-time buyers seeking a manageable, low-maintenance home.
Practical running costs are a selling point: mains gas central heating, double glazing, a long lease (842 years remaining), a modest service charge (£900 pa) and a small ground rent (£150 pa). Allocated and visitor parking plus wrap-around communal gardens add convenience uncommon for many flats at this price point.
Location delivers transport links, local shops and several nearby schools rated Good or Outstanding. That connectivity supports commuting and daily errands, and the property’s open-plan living gives flexible space for home working or socialising.
Be clear about the trade-offs: the apartment sits in a very deprived local area, the overall internal floorplate is compact, and outdoor/communal spaces are shared. It is a leasehold property, so prospective buyers should review the lease details. For a first-time buyer seeking an affordable, low-upkeep home with clear rental or resale potential, this offers genuine value.
2 bedroom flat for sale in Reed Close, Farnworth, Bolton, BL4 — £110,000 • 2 bed • 1 bath
2 bedroom apartment for sale in Barton Street, Farnworth, BL4 — £110,000 • 2 bed • 1 bath • 578 ft²
2 bedroom apartment for sale in Newbridge Close, Radcliffe, M26 — £110,000 • 2 bed • 1 bath • 657 ft²
2 bedroom flat for sale in Reed Close, Farnworth, Bolton, BL4 7EF, BL4 — £110,000 • 2 bed • 1 bath
2 bedroom flat for sale in Hartford Drive, Brandlesholme, Bury, Greater Manchester, BL8 — £140,000 • 2 bed • 2 bath • 636 ft²
2 bedroom flat for sale in Kilmaine Avenue, Manchester M9 7FN, M9 — £120,000 • 2 bed • 1 bath • 493 ft²






























































































































































