ME7 1PH - 4 bed versatile victorian townhouse in Milburn Road, ME7 1PH

View on Property Piper

4 bedroom terraced house for sale in Milburn Road, Gillingham, Kent, ME7

Summary - 3 MILBURN ROAD GILLINGHAM ME7 1PH

4 bed 2 bath Terraced

Spacious four-bed terrace near station and university, ideal for families or investors.
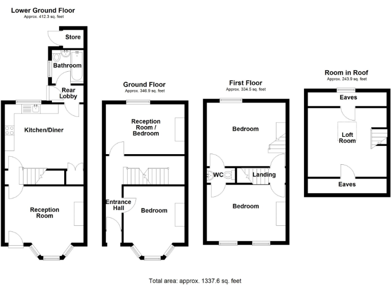
Approximately 1,338 sq ft across three floors
This Victorian end-terrace offers generous family accommodation across three floors, totalling about 1,338 sq ft. Period features such as a bay-windowed lounge and decorative mouldings sit alongside a modern kitchen, giving immediate liveability with scope to personalise.

The flexible layout — four bedrooms, two bathrooms (one on the lower ground and a cloakroom on the upper floor) and two reception rooms — works well for a growing family or as a buy-to-let HMO. Its location is practical: roughly 0.47 miles from Gillingham train station and within walking distance of the university, making commuting and student lets straightforward.

Buyers should note the local context: the ward records very high crime and higher area deprivation indicators. The property is of solid brick construction with no known wall insulation, so energy-efficiency improvements and insulation work may be worthwhile investments. The plot is small with a modest rear outdoor area.

Sold freehold with mains gas central heating, double glazing and a relatively low council tax band, this house gives clear potential for owners or landlords prepared to carry out targeted upgrades. Viewing is recommended to judge the layout and scope for improvement in person.

Property Details

Brochure Descriptions

Image Descriptions

Floorplan Description

Rooms

Textual Property Features

Target Audience

AI Tags

Detected Visual Features

EPC Details

Nearby Schools

Nearest Bars And Restaurants

,,,,}

Nearest General Shops

,,}

Nearest Grocery shops

,,}

Nearest Supermarkets

,,}

Nearest Religious buildings

,,}

Nearest Medical buildings

,,,}

Nearest Airports

,}

Nearest Leisure Facilities

,,,,}

Nearest Tourist attractions

,,}

Nearest Train stations

,,,,}

Nearest Bus stations and stops

,,,,}

Nearest Hotels

,,}

Tags

Local Market Stats

AirBnB Data

Similar Properties

Meta

High Res Images

Compatible Images

Low res Images

Thumbnails

Raw Images

High Res Floorplan Images

Compatible Floorplan Images

Low res Floorplan Images

FloorplanImages Thumbnail

Raw Floorplan Images