ME7 2NN - 3 bed victorian bay home in Cavendish Avenue, ME7 2NN

View on Property Piper

3 bedroom terraced house for sale in Cavendish Avenue, Gillingham, Kent, ME7

Summary - 35 CAVENDISH AVENUE GILLINGHAM ME7 2NN

3 bed 1 bath Terraced

Move-in-ready three-bedroom terrace near trains and good schools.
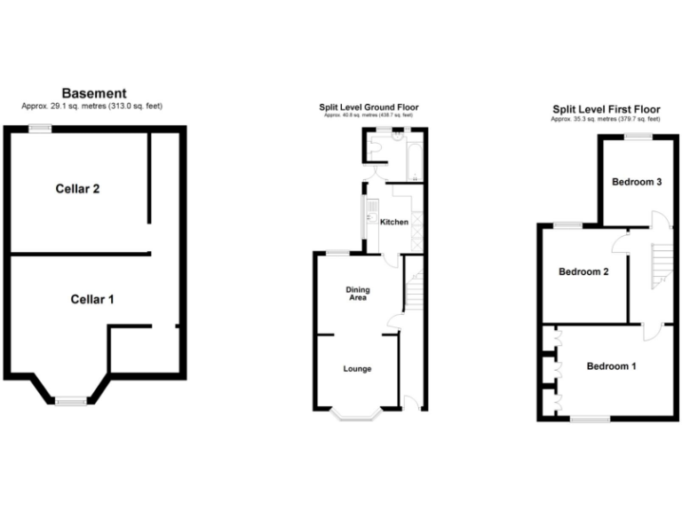
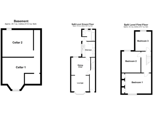
Freehold mid-terrace Victorian bay-front house, approx. 1,131 sq ft
This mid-terraced Victorian bay-front house offers three bedrooms across a practical split-level layout and presents as newly renovated internally, ready for immediate occupation. Large windows and a front bay provide generous natural light, and contemporary finishes—double glazing, new kitchen units and gas central heating—reduce immediate maintenance for buyers seeking a move-in-ready home.

Positioned 0.5 miles from Gillingham station and close to Medway Maritime Hospital, the location suits commuters and families; a range of well-rated primary schools sits nearby and local shops and parks are within easy reach. The freehold tenure and no forward chain make transaction straightforward for first-time buyers or investors.

Buyers should note material negatives: the rear garden is small, partly overgrown and requires clearance; external paintwork and some cleaning are needed. The area records above-average crime and higher local deprivation indices, which may affect long-term resale values. Parking is on-street without a permit, and the solid-brick walls are assumed uninsulated, which could influence energy efficiency despite modern glazing and a mains gas boiler.

Overall this property suits a family or buyer wanting an immediately habitable Victorian terrace with room to add value through modest external and garden improvements, or an investor targeting a well-located rental in the Medway towns.

Property Details

Brochure Descriptions

Image Descriptions

Floorplan Description

Rooms

Textual Property Features

Target Audience

AI Tags

Detected Visual Features

EPC Details

Nearby Schools

Nearest Bars And Restaurants

,,,,}

Nearest General Shops

,,}

Nearest Grocery shops

,,}

Nearest Supermarkets

,,}

Nearest Religious buildings

,,}

Nearest Medical buildings

,,,}

Nearest Airports

,}

Nearest Leisure Facilities

,,,,}

Nearest Tourist attractions

,,}

Nearest Train stations

,,,,}

Nearest Bus stations and stops

,,,,}

Nearest Hotels

,,}

Tags

Local Market Stats

AirBnB Data

Similar Properties

Meta

High Res Images

Compatible Images

Low res Images

Thumbnails

Raw Images

High Res Floorplan Images

Compatible Floorplan Images

Low res Floorplan Images

FloorplanImages Thumbnail

Raw Floorplan Images