**Standout Features:**
- Prime location on Kilburn High Road, NW6
- Available immediately with new 15-year lease terms
- Excellent transport links (Kilburn Jubilee Line, Brondesbury Overground)
- Fast broadband and excellent mobile signal
- Diverse local amenities and vibrant urban atmosphere
**Concerns:**
- Leasehold tenure with only 15 years remaining
- Very high crime rate in the area
- Potential mortgage lending challenges due to lease length
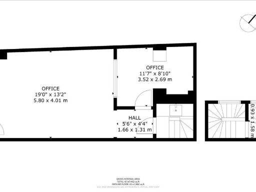
Discover a unique opportunity with this versatile commercial office space located in the heart of Kilburn on the bustling High Road, NW6. Spanning 462 square feet, this well-designed property allows immediate occupancy and caters to a multitude of businesses looking to thrive in a central urban setting. With its attractive rental price of £26,000 per year and no VAT payable, this spot not only provides an accessible location but also comes with excellent transport links and a dynamic atmosphere that ensures high foot traffic.
However, potential buyers should note the leasehold status with only 15 years remaining, which may complicate financing options with mortgage lenders. The area has a notably high crime rate, and some may consider it a concern, but the rich variety of nearby amenities—including cafes, retail, and healthcare—offers ample convenience for residential comfort and business operations alike. This property is perfect for savvy investors or entrepreneurial spirits seeking a prominent location in a vibrant community. Don’t miss out on this rare chance to secure a prime workspace in an ever-evolving area!
Shop for sale in Kilburn High Road, London, NW6 — £100,000 • 1 bed • 1 bath
Office for sale in West End Lane, London, NW6 — £180,000 • 1 bed • 1 bath
1 bedroom flat for sale in Kilburn High Road, London, NW6 — £315,000 • 1 bed • 1 bath • 436 ft²
6 bedroom house for sale in Kilburn High Road, Kilburn, NW6 — £999,950 • 6 bed • 2 bath
High street retail property for sale in 44 - 46 Birchington Road, Kilburn, NW6 4LJ, NW6 — £1,350,000 • 1 bed • 1 bath • 5477 ft²
2 bedroom flat for sale in St. Julians Road, Brondesbury, NW6 — £350,000 • 2 bed • 1 bath • 417 ft²


























