**Standout Features:**
- Freehold investment opportunity with commercial and residential space
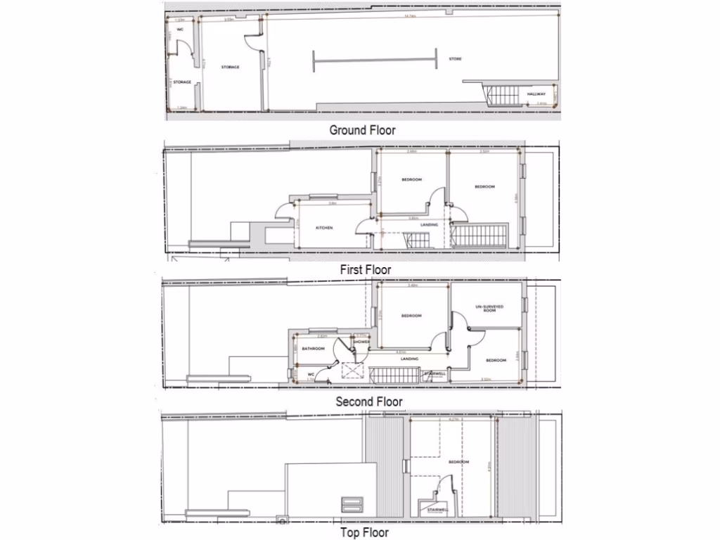
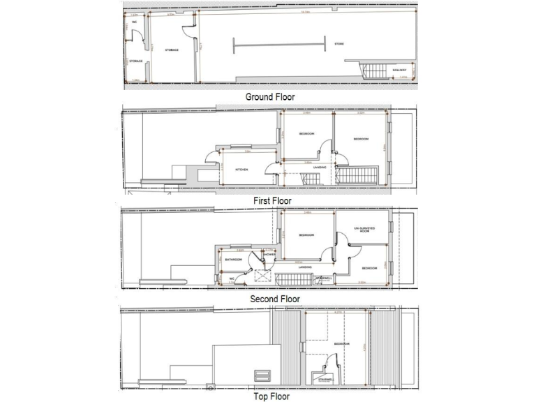
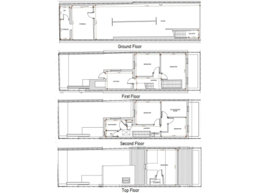
- Six bedrooms, two bathrooms, and separate kitchen
- Excellent location on Kilburn High Road
- Close to transport links and amenities
- Scope to develop subject to planning approval
**Key Considerations:**
- Notable crime rate in the area
- Small plot size could limit garden space or additional developments
This versatile freehold property presents a prime investment opportunity in the bustling area of NW6. Featuring a commercial space alongside a spacious three-floor apartment with six bedrooms, two bathrooms, and a kitchen, this property offers immense potential for both rental income or personal use. Located on Kilburn High Road, with easy access to local shops, eateries, and Kilburn Grange Park, residents can take full advantage of the vibrant amenities and quick transport links, including Kilburn Underground Station.
While the property requires some renovation and has a small plot size, its prime location and layout present superb development possibilities. Nearby schools boast commendable ratings, catering to family needs. With a lucrative rental market and the potential for future expansion, this is not an opportunity to overlook. Act quickly to seize this property with untapped possibilities in a growing community!
5 bedroom terraced house for sale in Kilburn Lane, London, W9 — £850,000 • 5 bed • 2 bath • 2077 ft²
5 bedroom terraced house for sale in Finchley Road, London, NW2 — £999,999 • 5 bed • 3 bath
5 bedroom apartment for sale in Kilburn Lane, London, W9 — £650,000 • 5 bed • 2 bath • 2077 ft²
High street retail property for sale in High Road, Willesden, NW10 — £750,000 • 2 bed • 2 bath • 1575 ft²
6 bedroom house for sale in Cricklewood Broadway, Cricklewood, NW2 — £2,350,000 • 6 bed • 6 bath • 3500 ft²
High street retail property for sale in 44 - 46 Birchington Road, Kilburn, NW6 4LJ, NW6 — £1,350,000 • 1 bed • 1 bath • 5477 ft²










