SW14 8PT - 3 bed edwardian threebed maisonette in Avondale Road, SW14…

View on Property Piper

3 bedroom flat for sale in Avondale Road, London, SW14

Summary - 30 AVONDALE ROAD LONDON SW14 8PT

3 bed 2 bath Flat

Quiet riverside location with strong schools and transport links.
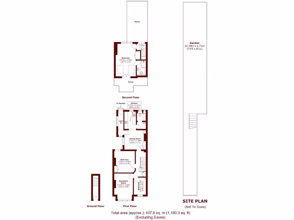
Three bedrooms and two bathrooms across first and second floors
Private west-facing garden, rare for an upper maisonette
Approximately 1,160 sq ft of internal living space
Period features: sash windows, original fireplace, built-in shelving
Share of freehold tenure offers ownership stability
Solid-brick walls likely uninsulated — energy upgrade potential
Double glazing present; installation date unknown
Council tax band above average, ongoing cost to consider
Light-filled and well-proportioned, this Edwardian upper maisonette offers three bedrooms, two bathrooms and a private west-facing garden just moments from the River Thames. The layout across the first and second floors preserves period features — sash windows, a feature fireplace and built-in shelving — while providing a comfortable family footprint of about 1,160 sq ft.

The location is a major selling point: tree-lined Avondale Road sits within a very affluent, inner-city cosmopolitan area with excellent schools nearby and direct rail links to London Waterloo from Barnes Bridge and Mortlake stations. Outdoor life by the Thames and local high-street amenities are within easy walking distance.

The property is share of freehold and sits in solid-brick construction typical of its era. Practical considerations include above-average council tax and assumed uninsulated solid walls; the glazing is double but the installation date is unknown. The maisonette would benefit from targeted updating to maximise energy performance and modern finishes.

Overall this is a spacious, characterful home suited to growing families seeking proximity to riverside amenities and strong schooling options, or buyers prepared to invest modestly to refresh and improve energy efficiency.

Property Details

Brochure Descriptions

Image Descriptions

Floorplan Description

Rooms

Textual Property Features

Target Audience

AI Tags

Detected Visual Features

EPC Details

Nearby Schools

Nearest Bars And Restaurants

,,,,}

Nearest General Shops

,,}

Nearest Grocery shops

,,}

Nearest Supermarkets

,,}

Nearest Religious buildings

,,}

Nearest Medical buildings

,,,}

Nearest Airports

,,}

Nearest Leisure Facilities

,,,,}

Nearest Tourist attractions

,,}

Nearest Train stations

,,,,}

Nearest Bus stations and stops

,,,,}

Nearest Hotels

,,}

Tags

Local Market Stats

AirBnB Data

Similar Properties

Meta

High Res Images

Compatible Images

Low res Images

Thumbnails

Raw Images

High Res Floorplan Images

Compatible Floorplan Images

Low res Floorplan Images

FloorplanImages Thumbnail

Raw Floorplan Images