TN26 3SG - 5 bed reimagined village home in Lower Road, TN26 3SG

View on Property Piper

5 bedroom detached house for sale in Lower Road, Woodchurch, TN26 3SG, TN26

Summary - 44 LOWER ROAD WOODCHURCH ASHFORD TN26 3SG

5 bed 4 bath Detached

Perfect for growing families seeking space, school proximity and commuter links..
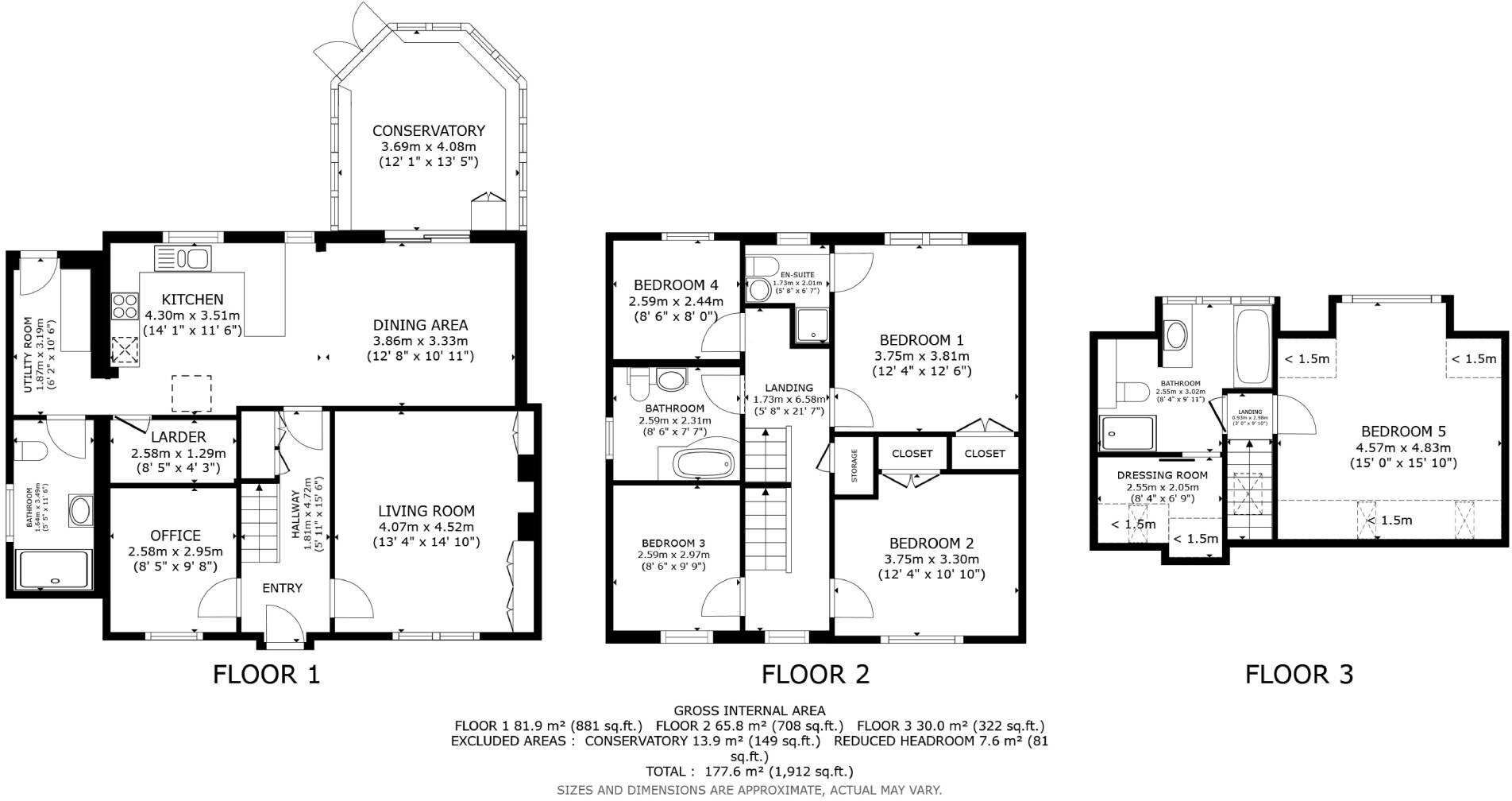
Third-floor master suite added three years ago with ensuite and dressing room.
Recently reconfigured and extended, this five-bedroom detached house offers a modern, versatile family layout in the heart of Woodchurch. The top-floor master suite added three years ago creates a private retreat with ensuite and dressing room, while the open-plan ground floor, contemporary kitchen and conservatory provide generous space for everyday life and entertaining.

Practical conveniences include a utility room, ground-floor shower room, a study easily used as an extra bedroom, and a detached double garage with potential for annexe conversion subject to planning permission. The driveway provides ample off-street parking and the low-maintenance rear garden suits busy family life.

Location is a clear strength: a short walk to a Good-rated primary school, village amenities and countryside walks, with Ashford International within easy reach for fast rail links to London. Note a few practical considerations — council tax is high, broadband speeds are average, and the double glazing was installed before 2002 — all factual points to factor into your decision.

Overall this is a stylish, move-ready family home on a large plot, offering immediate comfort plus scope for future value through the garage conversion (STPP). Buyers seeking spacious village living with commuter links will find considerable appeal here.

Property Details

Image Descriptions

Floorplan Description

Rooms

Textual Property Features

Target Audience

AI Tags

Detected Visual Features

EPC Details

Nearby Schools

Nearest Bars And Restaurants

,,,,}

Nearest General Shops

,,}

Nearest Grocery shops

,,}

Nearest Supermarkets

,,}

Nearest Religious buildings

,,}

Nearest Medical buildings

,,,}

Nearest Leisure Facilities

,,,,}

Nearest Tourist attractions

,,}

Nearest Train stations

,,,,}

Nearest Bus stations and stops

,,,,}

Nearest Hotels

,,}

Tags

Local Market Stats

Similar Properties

Meta

High Res Images

Compatible Images

Low res Images

Thumbnails

Raw Images

High Res Floorplan Images

Compatible Floorplan Images

Low res Floorplan Images

FloorplanImages Thumbnail

Raw Floorplan Images