Approved plans for a practical family home near transport links and top schools.
Planning permission passed for four-bedroom detached (ref 25/00173/FUL)
Decent plot size with private garden and mature boundary trees
Excellent mobile signal; slow local broadband speeds
1.4 miles to Brentwood station; 0.5 miles to M25/A12 junction
Medium flood risk — may affect insurance and drainage design
Tenure currently unknown; legal checks required before exchange
No confirmed utility connections or council tax band noted
Near outstanding and good-rated primary and secondary schools
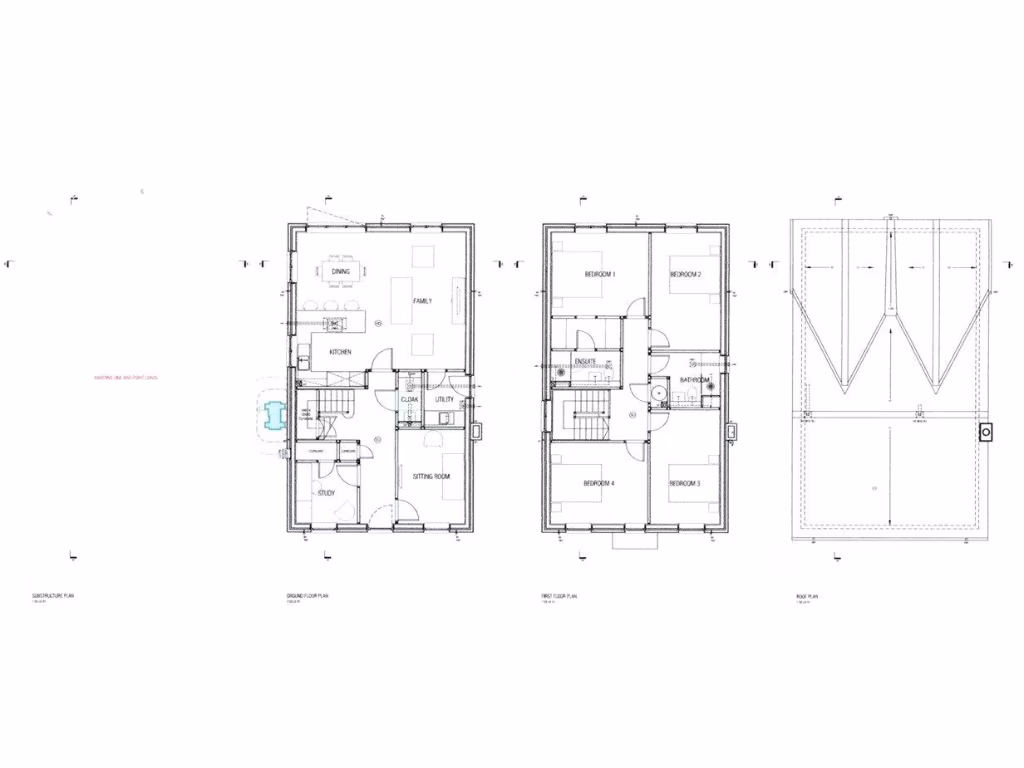
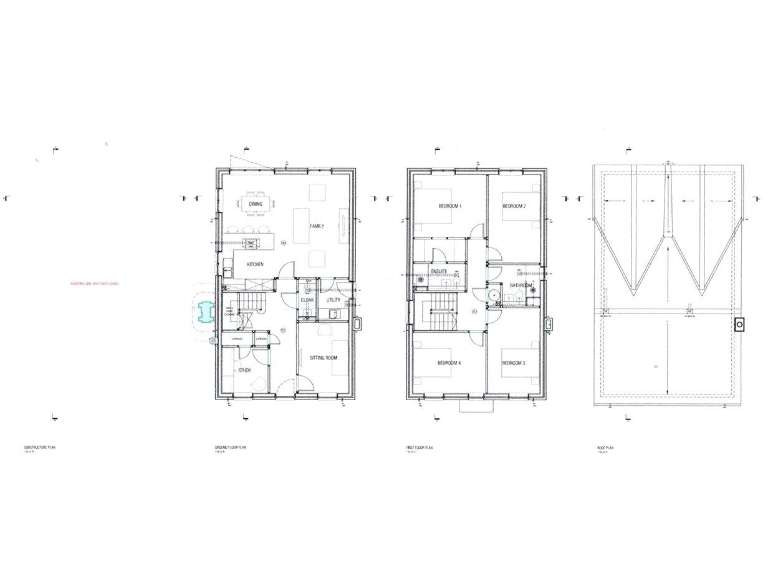
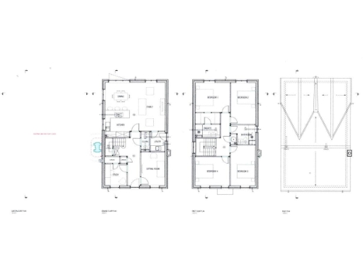
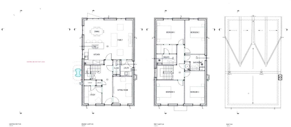
This is a cleared building plot with planning approved (ref: 25/00173/FUL) for a two-storey, four-bedroom detached family house. The approved drawings show conventional masonry construction, pitched roofs and a practical layout with ground-floor utility and an open-plan kitchen/family/dining area — a straightforward scheme for a family home on a decent-sized plot in Brentwood’s popular west side.
Location is a strong practical selling point: 1.4 miles from Brentwood station and 0.5 miles from the M25/A12 junction, offering easy commuter access. Several well-regarded schools are within reach, including two rated Outstanding, making the site suitable for growing families. Mobile signal is excellent on site, and the plot includes an outdoor garden area as shown in the landscape drawings.
Buyers should note key drawbacks plainly. Tenure is unknown and must be confirmed before exchange. The site sits in a medium flood-risk zone, which may affect insurance and drainage requirements. Local broadband speeds are reported slow, which could be a consideration for remote working plans. There is no confirmed council tax band or completed drainage/utility connections in the paperwork supplied.
For developers or self-build buyers this plot represents clear value: planning permission is in place and the design is family-focused, reducing pre-application risk and enabling quicker progression to build. However, purchasers should budget for standard on-site works (connections, potential flood mitigation, landscaping) and complete legal/title checks on tenure and services prior to completion.
Plot for sale in Coxtie Green Road, Pilgrims Hatch, Brentwood, Essex, CM14 — £1,000,000 • 1 bed • 1 bath • 6634 ft²
Land for sale in Horseman Side, Brentwood, CM14 — £850,000 • 1 bed • 1 bath
Land for sale in Thoby Lane, Brentwood, CM15 — £200,000 • 1 bed • 1 bath • 691 ft²
Land for sale in Hunter Chase, Hutton, Brentwood, CM13 — £450,000 • 2 bed • 1 bath • 1498 ft²
3 bedroom detached house for sale in Hanging Hill Lane, Hutton, Brentwood CM13 — £850,000 • 3 bed • 1 bath • 2056 ft²
4 bedroom detached house for sale in Hatch Road, Brentwood, CM15 — £1,200,000 • 4 bed • 1 bath • 1917 ft²


































