Rare 0.36-acre plot with planning consent to create a 380sqm five-bedroom family home..
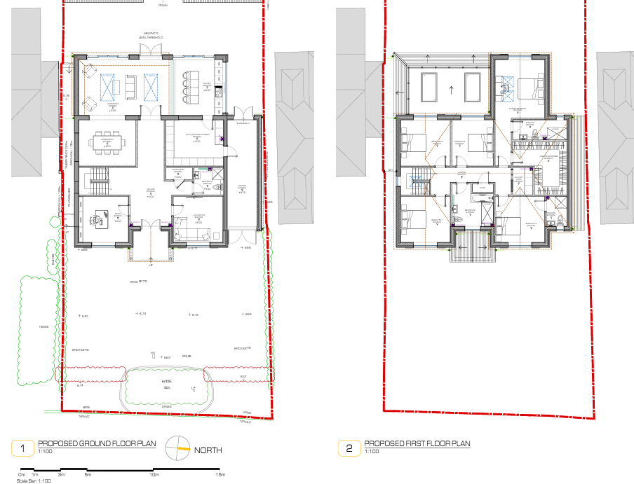
Planning consent granted for 380 sqm five-bedroom home (Ref 23/01515/HHA)
Large 0.36-acre plot with approx. 200ft west-facing garden
Existing three-bedroom chalet with garage and driveway parking
Walkable to Shenfield main line station and St Martin's School
Mid-century brick home — will need works for conversions/extensions
Council tax level described as expensive; budget accordingly
Local crime level above average — consider insurance and security
Excellent mobile signal and fast broadband; good transport links
Set on an established 0.36-acre plot, this three-bedroom chalet offers immediate family living with exceptional extension potential. The existing home features bright reception rooms, a fitted kitchen, utility, ground-floor cloakroom and a newly fitted first-floor family bathroom. A long, west-facing garden of about 200ft, mature fruit trees, patio and generous driveway with integral garage are key lifestyle assets.
The principal value here is the planning consent (Brentwood Borough Council ref 23/01515/HHA) to create a 380 sqm five-bedroom house. Consent covers two-storey front and rear extensions, single-storey additions, a side extension with integral garage and roof-lights. For families wanting a larger long-term home, or developers seeking a residential uplift, the approvals materially reduce risk and accelerate delivery.
Practical points to note: the current house is a mid-20th-century brick property with double glazing and gas central heating; the interior will require works to realise the approved scheme or significant refurbishment if retained. Council tax is described as expensive and local crime levels are above average — factors to consider for budgeting and insurance. Connectivity is strong: walkable to Shenfield main line station (Elizabeth Line services), close to St Martin’s senior school and local shops.
This is a plot-and-potential opportunity rather than a turnkey extension. Buyers should budget for construction, design and party-wall considerations tied to the approved works. For those looking to create a substantial family residence in a very affluent area with fast links to London, the property presents a rare, deliverable canvas.
5 bedroom detached house for sale in Tennyson Road, Hutton, Brentwood, Essex, CM13 — £850,000 • 5 bed • 2 bath • 2740 ft²
5 bedroom detached house for sale in Hanging Hill Lane, Hutton, CM13 — £1,175,000 • 5 bed • 2 bath • 2597 ft²
4 bedroom detached house for sale in The Cottage, Hillwood Close, CM13 — £1,525,000 • 4 bed • 3 bath • 1976 ft²
4 bedroom detached house for sale in Rayleigh Road, Brentwood, CM13 — £900,000 • 4 bed • 3 bath • 2178 ft²
5 bedroom detached house for sale in Brindles Close, Hutton, Brentwood, Essex, CM13 — £1,950,000 • 5 bed • 3 bath • 9389 ft²
4 bedroom detached house for sale in Chelmsford Road, Shenfield, Brentwood, CM15 — £1,185,000 • 4 bed • 2 bath • 1956 ft²


















































































































